|
|
|
||||||||||||||||||||
手になじむオフィス |
||||||||||||||||||||||
|
||||||||||||||||||||||
|
||||||||||||||||||||||
|
||||||||||||||||||||||
|
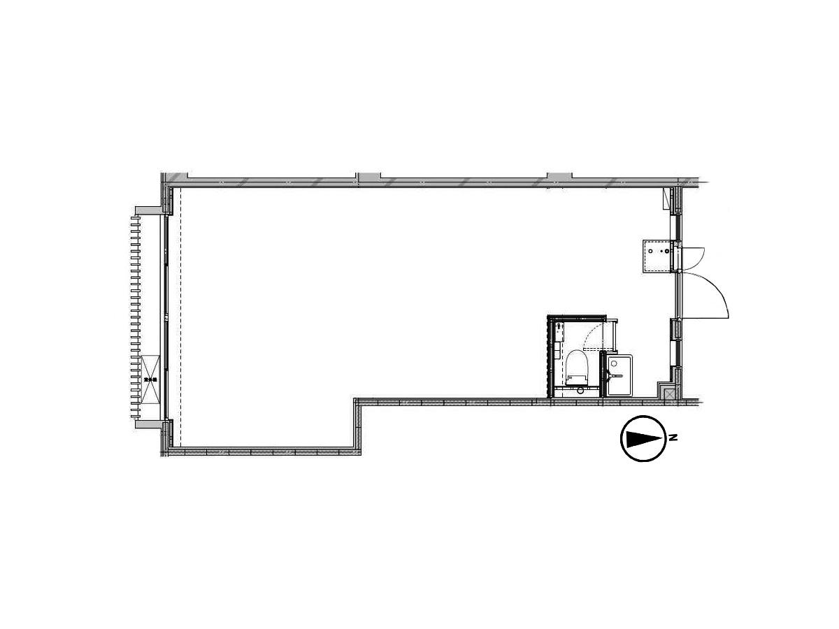
青山キラー通り沿いで、ひときわ存在感を放つレトロマンション。その佇まいに引けをとらない、オーナーが建築家と手を組み、丁寧に磨き上げたオフィス空間。 もともとは住宅仕様だった室内。そこから仕事に不要な水回りを整理し、用途をオフィスに絞ったシンプルなワンルームへと生まれ変わりました。 コンクリートの凹凸はあえて残し、壁は白く塗装。床には繊維質でありながら硬さがあり、汚れにくいフロテックスを採用。淡いブルーの色味も、モノクロの空間にほどよく個性を添えています。 一般的な玄関に見られる段差は設けず、なめらかな勾配をもたせたモルタル床に。人や荷物の出入りがスムーズにできる、実用性を備えたデザインです。 大通り沿いではありますが、サッシが新しくなったことで、思いのほか車の走行音は気になりませんでした。音への配慮はトイレにも及び、音姫がいらないほどの防音性。使い手に寄り添った、細やかなこだわりを感じます。 駅近ではありませんが、最寄りの外苑前駅をはじめ、徒歩15分圏内に6駅の選択肢がある立地。分かりやすい場所と外観なので、クライアントが道に迷うことも無さそうです。 使い勝手、雰囲気、立地。どれも妥協なく決めたい。そんな期待にもきっと応えてくれる物件だと思います。 |
![]() |
|
| 南側の掃き出し窓。日中はたっぷり光が差し込みます |
|
| 不要な水回りを排し、オフィスとして使いやすいシンプルなワンルームに |
|
| 玄関周りはモルタル土間。玄関の段差がないため、スムーズな出入りが可能 |
|
| 青山キラー通り沿いに立つレトロマンション |
|
|
| 賃料 | 20万9,000円(税込) | 専有面積 | 40.35㎡ |
| 敷金 | 3ヶ月 | 礼金 | なし |
| 償却 | なし | 管理費 | 24,750円(税込) |
| 所在地 | 渋谷区神宮前 | ||
| 交通 |
銀座線「外苑前」駅 徒歩8分 銀座線・半蔵門線・千代田線「表参道」駅 徒歩12分 山手線「原宿」駅 徒歩15分 |
||
| 建物構造 | 鉄筋コンクリート造 8階建て | 所在階 | 4階 |
| 築年 | 1967年 | 取引態様 | 媒介 |
| 設備 | エアコン/ウォシュレット/宅配ボックス/オートロック/エレベーター | ||
| 備考 | ペット不可/連帯保証人必須/要火災保険契約 | ||
| 情報修正日時 | 2026年2月13日 | 情報更新予定日 | 2026年2月28日 |
あなたにおすすめの物件


