|
|
|||||||||||||||||||||
三島への移住準備 |
||||||||||||||||||||||
|
||||||||||||||||||||||
|
||||||||||||||||||||||
|
||||||||||||||||||||||
|
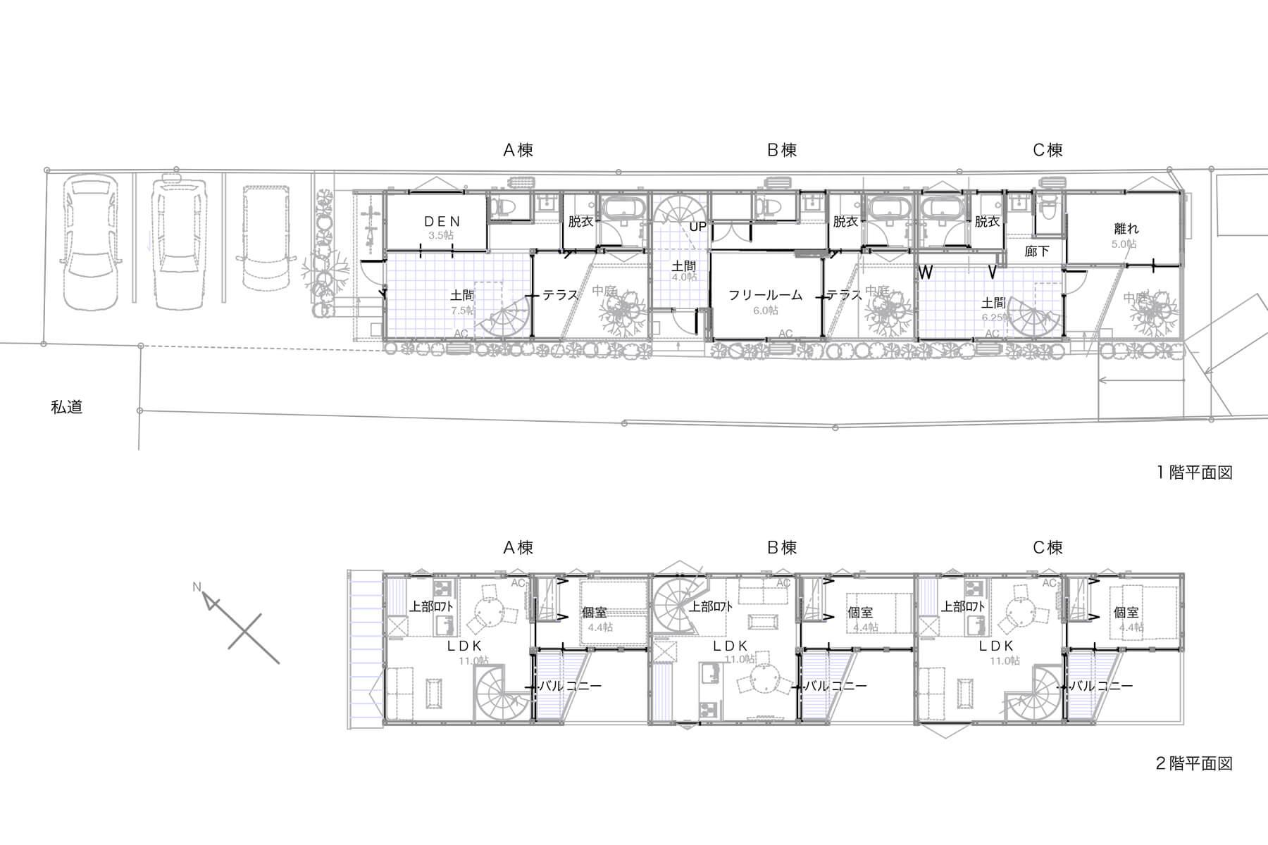
移住を検討するにあたり、「その街がどんなところか」を知るにはそれなりの時間を要しますよね。 何度も足を運んだり、宿泊してみたりと色々方法はありますが、どれも短時間の滞在で、実際に住んだりしてみた時の見え方とはやっぱり違う感じがすると思います。 となると一度試しに住んでみて、街の特徴や日常生活のしやすさなどポイントを把握するのが良いですよね。 今回ご紹介する物件は、三島や三島周辺に移住等を検討している方におすすめしたい、賃貸住宅です。 場所は三島駅にも近い、「三島広小路」エリア。三島駅近くにある「三島市立公園楽寿園」や川の中を歩ける「源兵衛川」といった自然が多く、かつての宿場町の様相や昔ながらの商店街が特徴です。特に商店街は昔からの個人商店やカフェ等の新しいお店が混在し、観光でも日常生活でも楽しめるのがポイントです。 そんな街にある物件は、2階建テラスハウス。全部で3区画の募集です。間取りはどれも2LDK、面積は約56㎡~約58㎡。 間取りは少しずつ異なりますが、いずれも1階が住居以外の事務所やお店の用途(業種は要相談)としても使える土間、2階がリビング+個室(寝室)+ロフトになっています。 土間は事務所やお店といった用途でも良いでしょうし、書斎的な使い方も良さそう。なんにせよ、様々な住みこなし方が可能な間取りになっています。 特徴は、土間の奥にある専用の石庭のある中庭とテラス。土間の空間もあってか、昔ながらの長屋のような雰囲気があります。収納や子どもの遊び場といった使い方ができる「DEN」「フリールーム」「離れ」が区画ごとにあるのもポイント。1階をどう使うかで区画を選んでも良さそうです。 さて、2階のLDKはどの区画も約11帖程。天井高があるおかげで面積以上に広く感じるのではないかと思います。中庭の上部はテラスになっているので、LDKにはしっかり日の光が入ってきて、空間は爽やか。フローリングは無垢材を使用しているので、肌触り等も良い感じです。 加えて、断熱等もちゃんと考慮された設計が施されています。窓はペアガラスで、過半の窓には高断熱・高遮熱のLow-Eペアガラスが使用され、「断熱等級4」の性能になっています。 各区画(敷地内及び近隣)に1台の駐車スペースがあるのも、地方には嬉しいポイントではないでしょうか。 三島市は沼津・伊豆・熱海に近く、各所への観光の拠点にもなり得る場所。ここを拠点に毎日東京や横浜に通勤等をするとなると大変かもしれませんが、週に1、2回などの頻度なら十分通勤圏内かと。 移住も検討しているけどなかなか進まない方に、一度賃貸で住んでみるのをおすすめしたくなる物件です。 ※ 現在以下の区画を募集中です。 A棟 面積56.30㎡ 賃料150,000円 B棟 面積57.13㎡ 募集終了 C棟 面積57.96㎡ 賃料150,000円 全区画別途管理費5,000円がかかります。 ※ 物件紹介動画を作成しました。こちらからぜひご覧ください。 |
![]() |
|
| B棟:2階のLDK。高い天井のおかげで開放的な空間となっています |
|
| テラスから中庭を見下ろすとこんな感じ |
|
| 土間には自転車を置くことも可能です |
|
| 落ち着いた雰囲気のテラスハウスです |
|
|
| 賃料 | 15万円 | 専有面積 | 56.30㎡~57.96㎡ |
| 敷金 | 1ヶ月 | 礼金 | なし |
| 償却 | なし | 管理費 | 5,000円 |
| 所在地 | 静岡県三島市西本町 | ||
| 交通 |
伊豆箱根鉄道駿豆線「三島広小路」駅 徒歩5分 東海道線・東海道新幹線・伊豆箱根鉄道駿豆線「三島」駅 徒歩18分 |
||
| 建物構造 | 木造 2階建て | 所在階 | |
| 築年 | 2025年 | 取引態様 | 媒介 |
| 設備 | エアコン(各階に1台、2階個室にコンセント及びスリーブ有)/ガスコンロ3口/追いだき/浴室換気乾燥機/ウォシュレット/宅配BOX/インターホン | ||
| 備考 | ペット相談可/募集戸数:2戸/写真内の家具はお引渡し時に撤去されます/庭付き/駐車場あり(各区画に1台有(敷地内及び近隣)、使用料月額5,000円) | ||
| 情報修正日時 | 2026年2月5日 | 情報更新予定日 | 2026年4月29日 |
あなたにおすすめの物件


