|
|
|
||||||||||||||||||||
どんな時でもこの開放感【ガレージ付き】 |
||||||||||||||||||||||
|
||||||||||||||||||||||
|
||||||||||||||||||||||
|
||||||||||||||||||||||
|
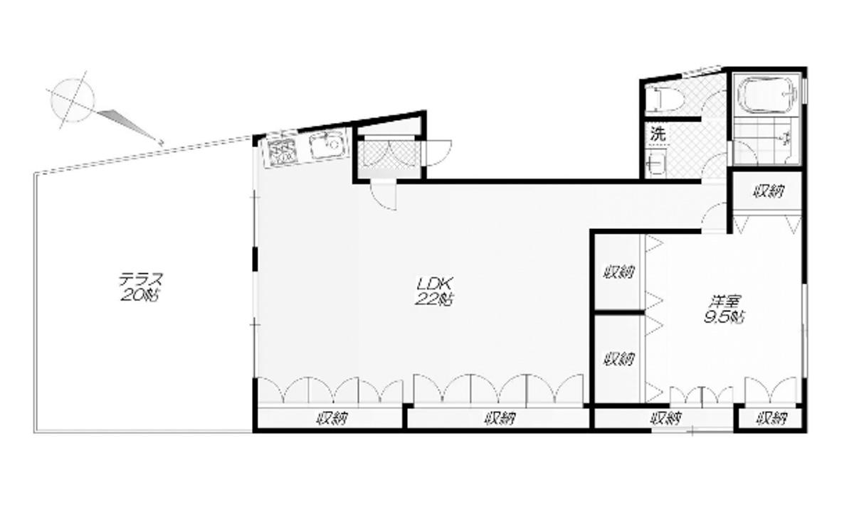
まばゆい光が差し込むルーフバルコニーと、壁一面の窓。これ程までの陽射しの恩恵を得ることができるのは、角部屋最上階の特権のようにも思えます。 バルコニーは20畳ほどの広さ。晴れた日にはもう一つのリビングとして捉えると、ここでの生活の幅も広がるはずです。デスクを敷いて外でランチをしたり、日中の読書スペースにしたりと。様々な生活のシーンにワクワクをプラスオンしてくれる空間です。 バルコニーだけでなく、室内もしっかりと日差しを受け取ることができるつくり。リビングと洋室それぞれ2面の窓がついていて、晴れた日は青空に包まれるような感覚になるほど。どの部屋にいても、開放感を持って過ごすことができます。 嬉しいことに、この物件にはガレージがついています。建物内のため、雨に打たれるようなこともありません。車幅、高さも比較的余裕がありますが、大型の車を持っている方は内見時にご確認ください。 室内はガレージから階段を登っていくようなつくり。エレベーターはないため、ご注意ください。 場所は「桜新町」駅から歩いて6分ほどのエリア。渋谷へも電車ですぐ行けちゃう立地ながら、生活感のある街並みが特徴的です。 きっとここでなら、日々陽気な気分で生活を送ることができると思います。 |
![]() |
|
| リビングは2面の窓がびっしりと。晴れた日は部屋中がすっきりとした雰囲気に |
|
| リビング別角度から |
|
| 洋室。2面の大きな窓がついています |
|
| バルコニー別角度から |
|
|
| 賃料 | 24万5,000円 | 専有面積 | 78.59㎡ |
| 敷金 | 2ヶ月 | 礼金 | 1ヶ月 |
| 償却 | なし | 管理費 | 5,000円 |
| 所在地 | 世田谷区弦巻 | ||
| 交通 |
東急田園都市線「桜新町」駅 徒歩6分 世田谷線「上町」駅 徒歩10分 |
||
| 建物構造 | 鉄骨鉄筋コンクリート造 3階建て | 所在階 | 3階 |
| 築年 | 1992年 | 取引態様 | 媒介 |
| 設備 | エアコン/ガスコンロ3口/追いだき/モニター付きインターホン/温水洗浄便座/浴室乾燥機 | ||
| 備考 | ペット不可/定期借家契約(期間:2年/再契約:相談)/宅配ボックスあり/保証会社加入必須(初回保証料:月支払い総額の50%〜)/24時間サポート(2年間):16,500円/除菌消臭代:22,000円/保証会社加入に加え連帯保証人も必須/要火災保険契約 | ||
| 情報修正日時 | 2026年2月4日 | 情報更新予定日 | 2026年2月18日 |
あなたにおすすめの物件


