|
|
|
||||||||||||||||||||
経年の美しさ |
||||||||||||||||||||||
|
||||||||||||||||||||||
|
||||||||||||||||||||||
|
||||||||||||||||||||||
|
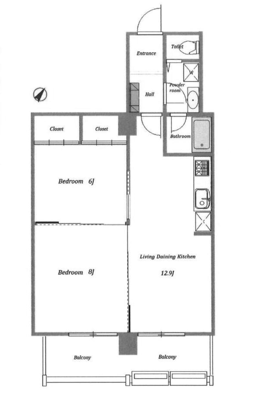
直線と曲線の使い方が印象的なレトロマンション。古くとも美しいマンションの魅力が、バリバリと音を出しているような物件です。 全体を見ても細部を見ても、醸し出される時代の空気感にうっとり。特に70年代のゴージャス感がぎゅっと凝縮されたエントランスに心を奪われます。 今回の部屋は5階部分。南向きの建物前にはスペースがあるので、日当たりも良好です。引き戸が多く使われた室内は全体が見渡せるので、開放感があります。 引き戸を開けたら広めのワンルームとして使えるのも嬉しいポイント。ふたり暮らしの場合、どちらかが寝ていてどちらかが作業している時など、さまざまな生活シーンに応じて部屋を使うことができます。 管理状態は良好で、愛されている建物だなと感じます。代々木駅から歩ける立地、というところも見逃せないポイントです。 ※写真は全て前回募集時のもの |
![]() |
|
| エントランスが広く、かっこいい |
|
| 引き戸が多く使われているので、大きなワンルーム的な使い方も可能かと |
|
| バルコニーから |
|
| 外観 |
|
|
| 賃料 | 19万5,000円 | 専有面積 | 57.29㎡ |
| 敷金 | 1ヶ月 | 礼金 | 1ヶ月 |
| 償却 | なし | 管理費 | 5,000円 |
| 所在地 | 渋谷区代々木 | ||
| 交通 |
小田急線「参宮橋」駅 徒歩5分 京王新線「初台」駅 徒歩7分 |
||
| 建物構造 | 鉄筋コンクリート造 7階建て | 所在階 | 5階 |
| 築年 | 1970年 | 取引態様 | 媒介 |
| 設備 | エレベーター/エアコン2基/ウォシュレット | ||
| 備考 | ペット不可/定期借家契約(期間:2年/再契約:相談)/利用必須(初回保証料:月支払い総額の50%)/宅配ボックスあり/夜間オートロック/要火災保険契約 | ||
| 情報修正日時 | 2026年1月30日 | 情報更新予定日 | 2026年2月13日 |
※掲載の情報が現状と異なる場合には、現状を優先するものとします。
あなたにおすすめの物件


