|
|
|
||||||||||||||||||||
多摩川リバーサイド |
||||||||||||||||||||||
|
||||||||||||||||||||||
|
||||||||||||||||||||||
|
||||||||||||||||||||||
|
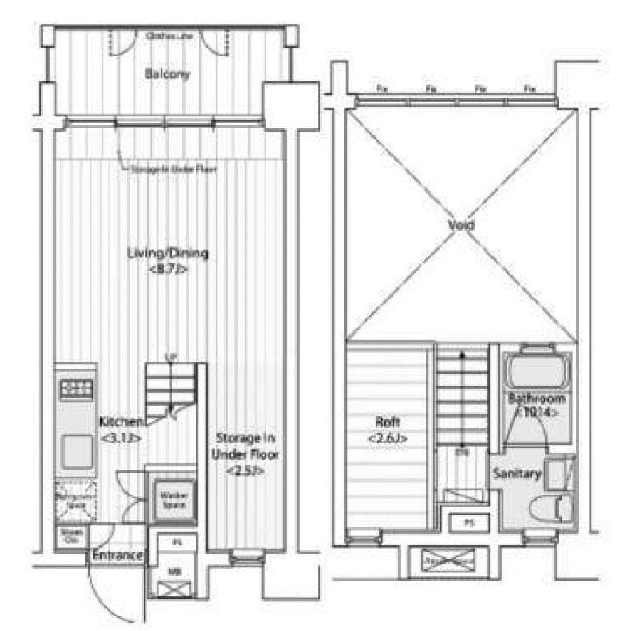
多摩川にかかる丸子橋のすぐかたわらに立つ、リバーサイド物件のご紹介です。住戸から多摩川が見えるのが特徴のひとつです。 間取りは広めのLDKにロフト付きで、LDは1.5層分くらいの吹抜けになっています。天井が高く、上から下まで一面の大きな窓になっているので、かなり気持ちがいいです。さらにその先はバルコニーになっています。 室内側にはバルコニーとフラットになるように棚が造作されていて、腰掛けるにもちょうど良い高さになっています。 ロフトは建築工事の足場のような床で作られていて、少しワイルドな感じです。寝る場所としてちょうど良いサイズ。浴室の室内側に窓があって、ここからリビングの窓越しに景色が見えるのも素敵な演出です。 洗面とトイレは同じ空間に配置されていますが、ゆったりとした広さと、細かいタイルの質感が良いです。建物沿いの道路が交通量多めなので、音に関しては現地でご確認ください。 リバーサイドの開放感とそれを生かした空間のデザイン。多摩川の大らかさを感じられる生活はいかがでしょうか。 |
![]() |
|
| 左上がロフト、右上の開口部がお風呂の窓です |
|
| バルコニーと一体感があります |
|
| 玄関入ると奥には大開口! |
|
| ロフト |
|
|
| 賃料 | 15万円 | 専有面積 | 24.68㎡ |
| 敷金 | 1ヶ月 | 礼金 | 1ヶ月 |
| 償却 | なし | 管理費 | 5,000円 |
| 所在地 | 川崎市中原区丸子通 | ||
| 交通 |
東急東横線「新丸子」駅 徒歩9分 南武線・東急東横線「武蔵小杉」駅 徒歩15分 |
||
| 建物構造 | 鉄筋コンクリート造 8階建て | 所在階 | 4階 |
| 築年 | 2006年 | 取引態様 | 媒介 |
| 設備 | エアコン/追いだき/ウォッシュレット | ||
| 備考 | ペット不可/保証会社利用必須(初回保証料:月支払い総額の50%、月額保証料:月支払い総額の1%)/鍵発行手数料:18,150円/清掃代:50,638円/エアコン清掃代:16,500円/写真は前回募集時の反転プランのものです/要火災保険契約 | ||
| 情報修正日時 | 2026年1月30日 | 情報更新予定日 | 2026年2月13日 |
あなたにおすすめの物件


