|
|
|||||||||||||||||||||
吉祥寺の要塞 |
||||||||||||||||||||||
|
||||||||||||||||||||||
|
||||||||||||||||||||||
|
||||||||||||||||||||||
|
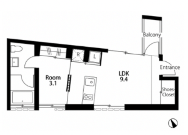
存在感ある外観と、建物吹き抜けに橋のように伸びるバルコニーが特徴の建物です。 吉祥寺駅前の喧騒を抜けた閑静な住宅街に現れる、赤レンガの建物。通行人が不思議そうに眺めている光景をよく見かけます。 エントランスを入ると、建物中央には吹き抜けの共用廊下が広がり、各住戸から石畳のバルコニーが突き出すように設けられています。まるで異国の要塞に迷い込んだかのような、独特の空間です。 重厚な外観に呼応するように、室内もノスタルジックで落ち着いた印象。無垢フローリングや色に深みのある木材が多く使われぬくもりを感じる一方、ステンレスキッチンや浴室のモルタル床など、無機質でひんやりとした要素も組み合わされています。 ベランダは共用部分に張り出しており、入居者同士の様子が見える構造です。角度によっては他の入居者とお互いが見えてしまう距離感となるため、あらかじめご理解ください。カーテンを取り付ける場合は、原色や柄物は避け、建物の雰囲気に配慮してほしいとのことです。 自転車置き場や駐車場はなく、必要に応じて近隣の月極スペースをご利用いただく形になりますが、日常の買い物であれば徒歩約8分の吉祥寺駅周辺で十分にまかなえます。 日本でありながら、日本にはないような空間。約30㎡を細かく区切った1LDKのため、住まい方としてはひとり暮らし向きと言えそうです。 ※ 写真はすべて同様間取り・同様内装の別部屋 |
![]() |
|
| 赤レンガの存在感ある集合住宅 |
|
| 建物エントランス。地下階にはセレクトショップと宝飾店が入居しています |
|
| ベランダから建物吹抜けを見下ろすと、異国の要塞に迷い込んだような光景です |
|
| キッチンから玄関を眺めたところ。靴棚上の格子奥にはエアコンが設置されています |
|
|
| 賃料 | 13万4,000円 | 専有面積 | 30.45㎡ |
| 敷金 | 1ヶ月 | 礼金 | なし |
| 償却 | 1ヶ月 | 管理費 | 5,000円 |
| 所在地 | 武蔵野市吉祥寺南町 | ||
| 交通 |
中央線・井の頭線「吉祥寺」駅 徒歩8分 井の頭線「井の頭公園」駅 徒歩8分 |
||
| 建物構造 | 鉄筋コンクリート造 3階建て | 所在階 | 2階 |
| 築年 | 2013年 | 取引態様 | 媒介 |
| 設備 | エアコン2基(リビング1基、寝室1基)/追いだき/浴室暖房乾燥機/ウォシュレット | ||
| 備考 | ペット不可/募集戸数:2戸/保証会社利用必須/カーテン色指定あり(原色、柄物NG)/ベランダへの洗濯物干し不可/特殊な建築のため、貸主指定の引越業者があります/住居兼事務所可(登記は不可)/要火災保険契約 | ||
| 情報修正日時 | 2026年1月25日 | 情報更新予定日 | 2026年3月31日 |
あなたにおすすめの物件


