町田市山崎町の売買物件/大谷石×タイル×ラワン材と素材にこだわったキッチンが、この家のアイデンティティ。97㎡のゆとりある広さをフルリノベーションしたマンションの一室です
町田市山崎町の売買物件/作業スペースが広く、回遊動線のあるキッチン。見た目だけでなく、使い勝手もしっかり考えられています
町田市山崎町の売買物件/約23.5帖のLDK。家族が同時に過ごしても余白を感じられる広さ。木毛セメント板の天井がラフで雰囲気がある
町田市山崎町の売買物件/7連のワイドな窓から光が差し込む、心地よいリビング。暖かくなると敷地の木々が茂り、窓に緑が広がる
町田市山崎町の売買物件/南面のバルコニーからの景色。左手には雑木林の木々が茂る。棟間にゆとりがあり、緑が挟まる配置に
町田市山崎町の売買物件/今回のお部屋があるF棟の外観
町田市山崎町の売買物件/玄関。フローリングと白い壁に、上品なタイルの床と木毛セメントの天井がこなれた雰囲気を演出します
町田市山崎町の売買物件/お手洗い
町田市山崎町の売買物件/洗面
町田市山崎町の売買物件/洋室は追いだき、浴室乾燥機つき
町田市山崎町の売買物件/ウォークスルークローゼット。左手には洋服がかけられ、右手はワークスペースにもできるようなデスクが
町田市山崎町の売買物件/北側の5帖の洋室。壁一面にはクローゼット
町田市山崎町の売買物件/しっかり大容量のクローゼット
町田市山崎町の売買物件/こちらは北東側の8帖の洋室
町田市山崎町の売買物件/8帖の洋室からでられる北側のバルコニー
町田市山崎町の売買物件/正面からのアングル。右手にある緑が茂る場所は山崎公園
町田市山崎町の売買物件/4.72帖の洋室。東側のバルコニーに面していて気持ちいい
町田市山崎町の売買物件/東側のバルコニーからは一面緑の景色が楽しめる
町田市山崎町の売買物件/南側のバルコニーにワイドに面する窓が圧巻。天井高は2.3mとやや低め
町田市山崎町の売買物件/南側バルコニー。東側に大きな雑木林があり、緑がこんもりしているのが嬉しい
町田市山崎町の売買物件/南側バルコニーを別のアングルから
町田市山崎町の売買物件/全体的にシンプルで、キッチンが引き立つリビング。空間にゆとりがあるのも魅力です
町田市山崎町の売買物件/大谷石をあしらったカウンターとラワンのキッチン。異素材の組み合わせが美しいです。コンロは3口、グリル付き
町田市山崎町の売買物件/キッチンには食洗機もついています。
町田市山崎町の売買物件/キッチンを別のアングルで。床のタイルもかっこいい
町田市山崎町の売買物件/外観
町田市山崎町の売買物件/エレベーター
町田市山崎町の売買物件/エントランス。オートロックやホールはなく、階段室ごとに出入りする団地のようなつくりです
町田市山崎町の売買物件/駐車場
町田市山崎町の売買物件/自転車置き場
町田市山崎町の売買物件/敷地内には、広場のような小さな公園があります
町田市山崎町の売買物件/バスロータリー脇にスーパーがあるのが便利

sale   NEW 住宅

質感も楽しむ、ゆとりの97㎡

 
価格:
3,180万円 (税込)
面積:
97.77㎡
所在地: 町田市山崎町
交通: 小田急線・横浜線「町田」駅 バス23分 「下山崎」バス停 徒歩3分
管理費 11,400円
修繕積立金: 17,100円

リビングにはどっしりと構えるキッチン。大谷石をあしらったカウンターに、白い細かなタイルの壁面と、渋いラワンの面材。思わず料理がしたくなる、絵になる佇まいです。


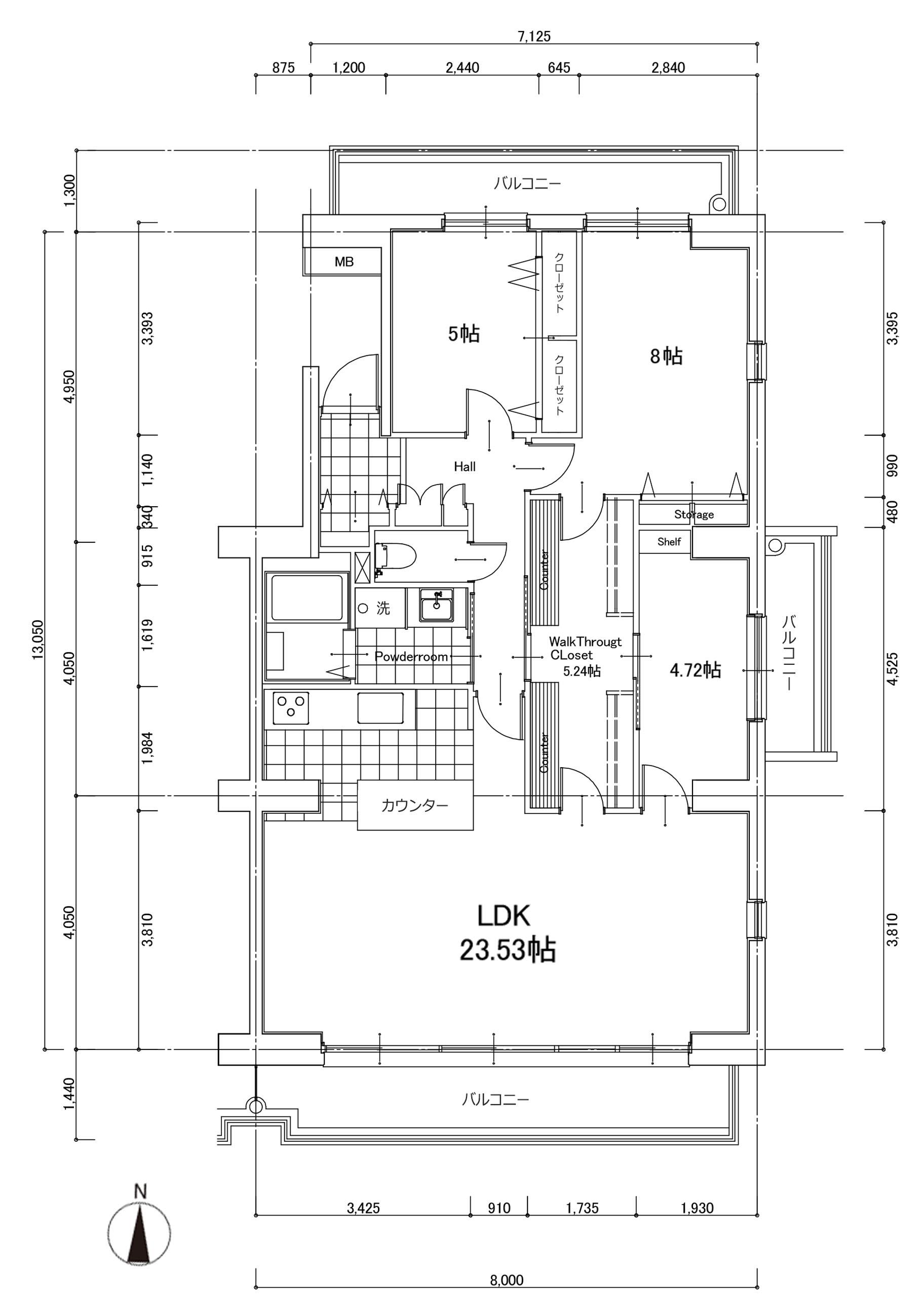
このキッチンを囲むように広がるのが、専有面積97㎡というゆとりのある空間。


広いリビングを確保しながらも、個室が3つ。そしてワークスペースを兼ねられる大型のウォークスルークローゼット。約100㎡の面積をフラットに使えると、こんなに広々とするのか、と実感できる住まいです。


LDKは約23.5帖。家族が同時に集合しても、どこかに余白が残るスケール感があります。南向きにワイドに開く窓からは光がたっぷり入り、明るく開放的なリビングになっています。


ウォークスルークローゼットは、各部屋からのアクセスしやすいようになっていてファミリークローゼットとして、とても使いやすそう。さらに、造作の木のデスクも設けられていて、在宅ワークや家族共有のスタディスペースとしても活躍しそうな空間です。


室内はフルリノベーション済み。玄関やリビングは、白い壁と木のフローリングを基調に、木毛セメント板の天井がラフで雰囲気のある空間をつくり出しています。そしてキッチンは、素材にしっかりとこだわりながら丁寧につくり込まれた、この家のアイデンティティともいえる存在。一方、各個室は白を基調としたプレーンな仕上げで、すっきりとシンプルに。空間ごとの表情の緩急が、この住まいに上品なバランスを生み出しています。


お部屋は角部屋で、窓が多いのも大きな魅力。南・東・北の三方向にバルコニーがあり、光と風がしっかり抜けていきます。東側には大きな木々が茂る山崎公園が広がり、緑の借景を楽しめます。南側も敷地内の植栽が豊かで、夏には青々とした葉が窓いっぱいに広がります。


マンション全体は、全部で12棟・総戸数約992戸の大規模レジデンス。棟と棟のあいだには駐車場や駐輪場、豊かな植栽がゆったり配置され、空が広く感じられる環境です。


駐車場は月額6,000〜10,000円。駅までは車、もしくはバスアクセスとなるため、毎日電車通勤という方には少しハードルがあるかもしれません。ただ、車やバスでの生活に馴染む方や、日常の拠点が街中ほど混み合わない環境を求める方にとっては、この落ち着きは大きな魅力です。


最寄りのバス停は「下山崎」。このマンションのためにつくられたような位置にあり、終点・始発のバス停になっています。バスロータリーのすぐ横にはスーパーもあり、バスを降りてそのまま買い物をして帰る、というスムーズな生活動線が成り立っています。


敷地の外周をぐるっと走るだけでも気持ちのいい環境。さらに周辺には、四季を楽しめる自然スポットが点在しています。「新東京百景」にも選ばれた薬師池公園をはじめ、町田リス園、町田ぼたん園、町田ダリア園など、のどかで魅力的な場所が近場に数多くあり、遠出をしなくても、ちゃんと季節を感じられる暮らしがここにはあります。


子どもが大きくなってきて、今の家が少しずつ手狭に感じるようになった。都心では物件が高くて、なかなか手が届かない。そして、せっかく買うなら、毎日をご機嫌に暮らせるような素敵な空間を選びたい。そんな家族にとって、この広さと、この質感の両立は、ひとつの現実的な選択肢になるかもしれません。


※こちらの物件は仲介手数料が発生いたしません。


価格 3,180万円(税込) 専有面積 97.77㎡
管理費 11,400円 修繕積立金 17,100円
所在地 町田市山崎町
交通 小田急線・横浜線「町田」駅 バス23分 「下山崎」バス停 徒歩3分
建物構造 鉄筋コンクリート造 15階建て 所在階 4階
築年 1986年 土地権利 所有権
敷地面積 100,758.77㎡ 都市計画 市街化区域
用途地域 第一種中高層住居専用地域 建蔽率/容積率
その他費用 取引態様 該当せず
設備 エレベーター
備考 ペット可(犬または猫いずれか1頭まで。犬の場合は 中型犬まで(体重15kgまで))/分譲会社:伊藤忠商事株式会社/施工会社:株式会社竹中工務店/管理会社:伊藤忠アーバンコミュニティー株式会社/管理形態:全部委託(日勤)/総戸数:992戸/バルコニー面積:22.09㎡/現況:空室/引渡時期:即可/組合費:月額500円/自転車置き場あり(月額50円・空きあり)/バイク置場あり(月額500〜1,500円・空きあり)/駐車場あり(月額6,000〜10,000円・空きあり)
情報修正日時 2026年2月3日 情報更新予定日 2026年2月17日
※掲載の情報が現状と異なる場合には、現状を優先するものとします。