|
|
|
||||||||||||||||||
暮らしに寄り添う、開放的な住まい |
||||||||||||||||||||
|
||||||||||||||||||||
|
||||||||||||||||||||
|
||||||||||||||||||||
|
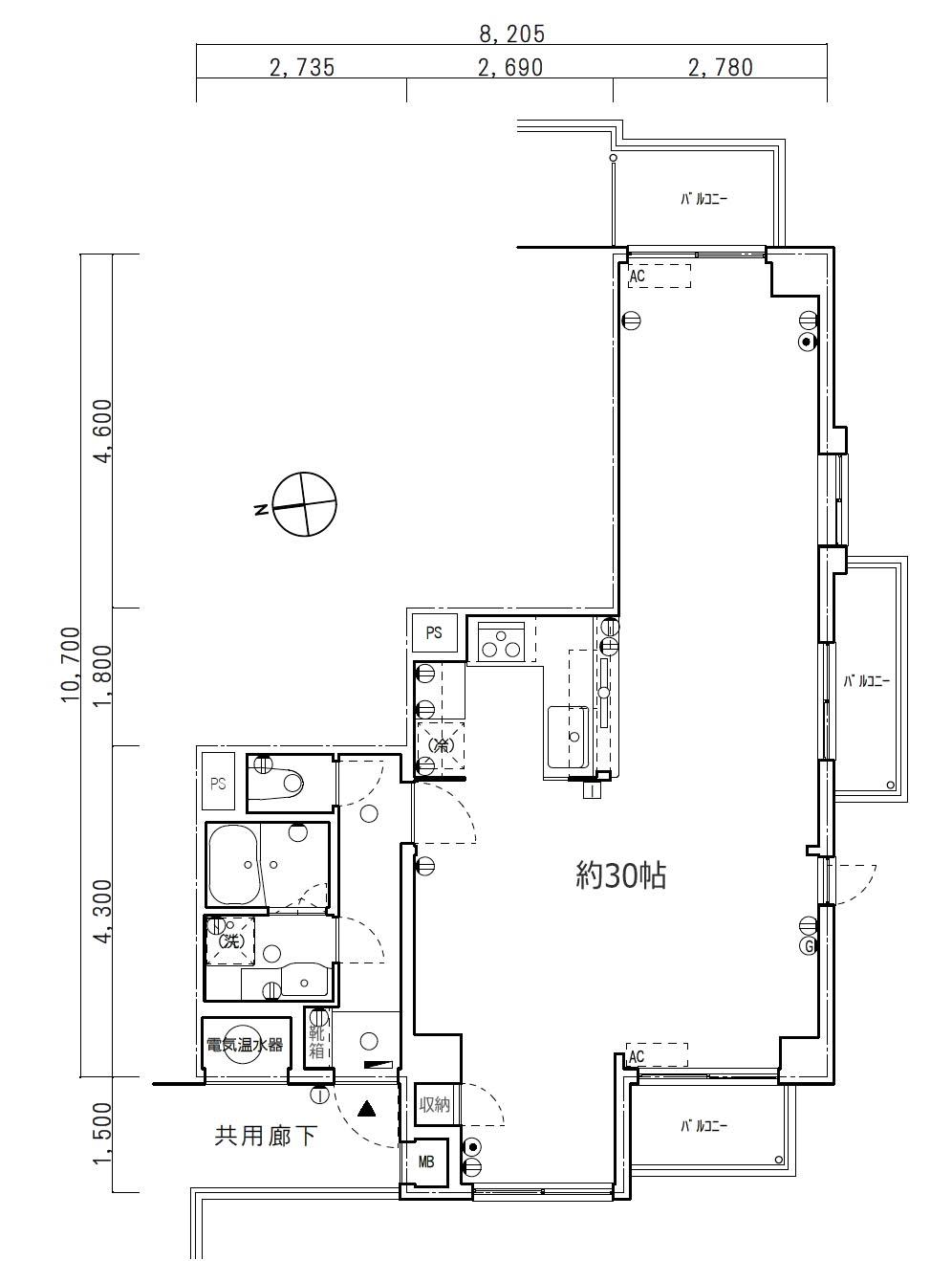
★価格を変更しました★ 2025年、建築士である売主さん自身の手によってリノベーションされた一室です。もともとはご自身の住まいとして使われていた場所を、売却にあたって丁寧に整えてくれました。 居室はあえて間仕切りを設けず、ワンフロアのオープンな構成に。中央に居室の入口とキッチンが配置され、家具の置き方や使い方で自然とゾーニングができる形です。気分に合わせて、家具レイアウトをガラッと変えて遊ぶこともできます。 床には幅広の無垢フローリング。モルタル左官の壁の質感も素敵で空間のアクセントになっています。 キッチンは作業性の高いコの字型。ワークトップや収納もしっかり確保されていて、程よく籠れるつくりです。調理道具が出しっぱなしでも、不思議と散らかった印象にならないのが嬉しいところ。 トイレや浴室、洗面は玄関から居室へのアプローチ部分にまとめて配置。浴室・洗面は今回新たに交換、トイレもまだ新しく、きれいな水回りで気持ちよく生活ができそう。 三面に窓があり、一日中通して光が入り、室内が明るいのは大きな魅力です。世帯数の多いマンションですが、その中でも南向き住戸は限られた区画となっています。 窓はペアガラスの断熱サッシに交換されています。また、マンションの大規模修繕が2026年に実施予定で、玄関ドアの交換はじめ共用部がきれいになります。 徒歩圏内に複数駅があり、アクセス面も良好。品川・大崎エリアへはタクシー移動もしやすく、通勤時間をぐっと短縮できそうな立地です。 |
![]() |
|
| 間仕切りを設けずに仕上げられた、余白のあるオープンフロア。家具レイアウトの自由度が高いです |
|
| 木製の扉がナチュラルで可愛いキッチンは作業性と収納量をしっかり確保。コの字型で調理導線もいい |
|
| 幅広の無垢フローリング × モルタル壁が絵になる |
|
| 東側のバルコニー越しの眺望。抜けが気持ちいい |
|
|
| 価格 | 6,480万円 | 専有面積 | 62.04㎡ |
| 管理費 | 9,900円 | 修繕積立金 | 11,470円 |
| 所在地 | 品川区東品川 | ||
| 交通 |
京急本線「新馬場」駅 徒歩5分 京急本線「青物横丁」駅 徒歩8分 りんかい線「品川シーサイド」駅 徒歩13分 りんかい線「天王洲アイル」駅 徒歩14分 |
||
| 建物構造 | 鉄骨鉄筋コンクリート・鉄筋コンクリート 11階建て | 所在階 | 8階 |
| 築年 | 1980年 | 土地権利 | 所有権 |
| 敷地面積 | 3,729.32㎡ | 都市計画 | 市街化区域 |
| 用途地域 | 準工業地域 | 建蔽率/容積率 | |
| その他費用 | 取引態様 | 媒介 | |
| 設備 | エレベーター(2基) | ||
| 備考 | ペット可(犬・猫の場合、1住戸1匹 ※体長70cm以内・体高30cm以内・体重10kg以内)/分譲会社:大京観光株式会社/施工会社:清水建設株式会社/管理会社:三井不動産レジデンシャルサービス株式会社/管理形態:全部委託(日勤)/総戸数:166戸/バルコニー面積:8.16㎡/現況:空室/引渡時期:即可/駐輪場あり(空きあり・年額3,600円)/バイク置場あり(空きあり・年額12,000〜24,000円)/駐車場あり(空きなし・月額20,000〜25,000円)/楽器演奏可 | ||
| 情報修正日時 | 2026年3月11日 | 情報更新予定日 | 2026年3月31日 |
あなたにおすすめの物件


