|
|
|
||||||||||||||||||||
階段の先に待つ特等席 |
||||||||||||||||||||||
|
||||||||||||||||||||||
|
||||||||||||||||||||||
|
||||||||||||||||||||||
|
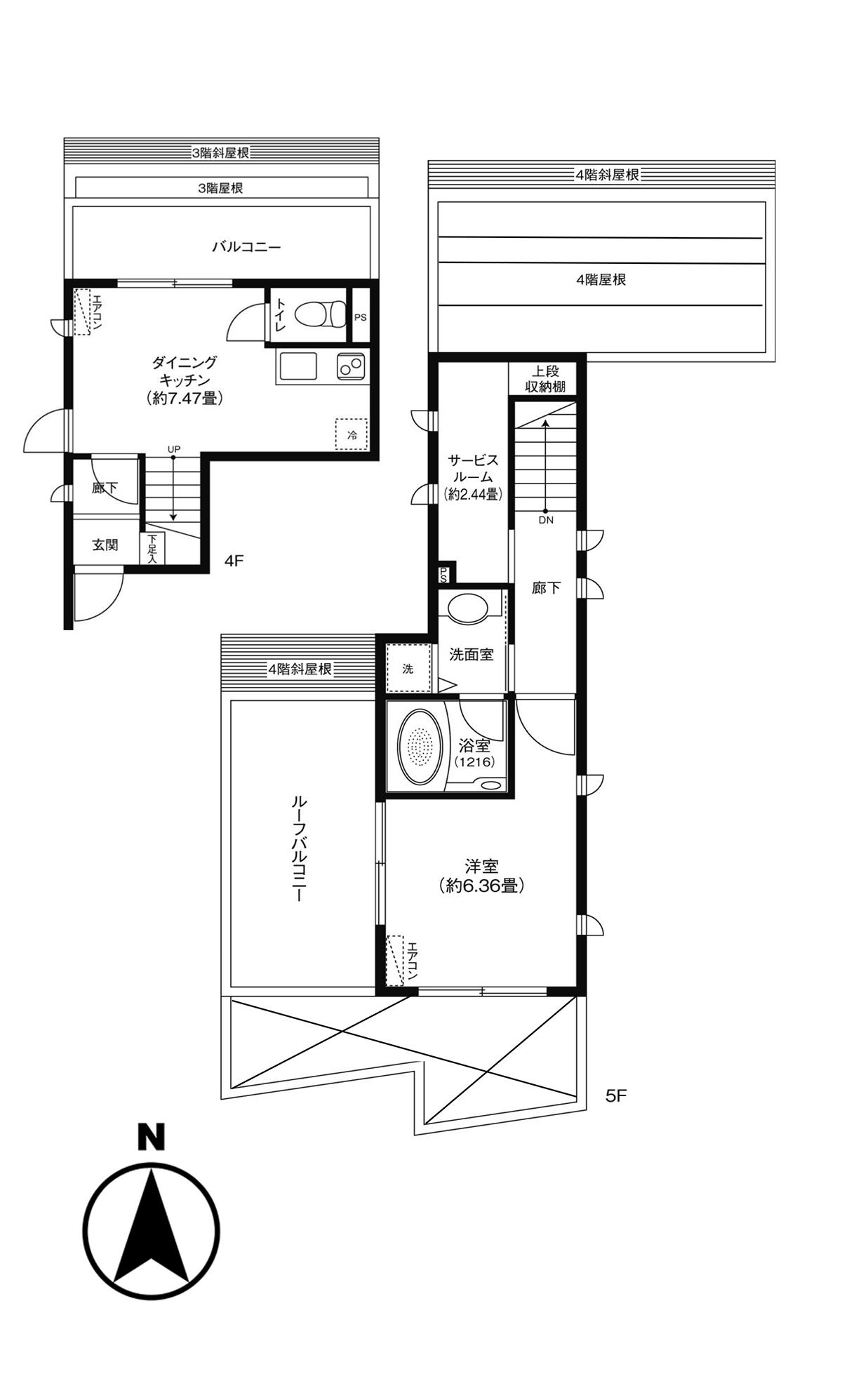
三軒茶屋という街はどこか迷路のようで、その雑多さが心地よかったりする。 そんな街の喧騒から少し離れた太子堂の住宅街に、この部屋はあります。 ドアを開けると、まず目に飛び込んでくるのはコンパクトながらも潔いメゾネット空間。まずお伝えしますと、エレベーターはありません。4階まで自分の足で一生懸命に登る必要があります。 けれど、そんな懸念をすべて帳消しにしてくれる特等席が、上階の先に待っています。 ルーフバルコニーに一歩踏み出せば、視界を遮るもののない三軒茶屋のパノラマが広がります。遠くにはランドマークのキャロットタワー。 ここでコーヒーを片手にぼんやりと街を眺める時間は、何物にも代えがたい贅沢。 光と風が心地よく通り抜けるシンプルな内装で、コンパクトなサイズの部屋。 収納は上階のウォークインクローゼットに集約して、居住スペースはミニマルにまとめます。 そしてこの場所。三茶の駅が近いのはもちろんですが、バスを使えば茶沢通りをスーっと北上して、下北沢駅までもすぐ。世田谷の人気エリアを庭のように使いこなせる立地です。 便利すぎる世の中で、あえて階段を登るという手間を選んだ人だけが手に入れられる、この開放感。 三茶の空を自分の庭にしたい。そんな方に、ぜひ。 |
![]() |
|
| コーヒー片手に、三軒茶屋の街をぼんやり眺める時間を |
|
| 三軒茶屋駅前のキャロットタワーまで視界が抜ける、気持ちのいい景色 |
|
| 上階:光と風が心地よく通り抜ける、開放感のある空間 |
|
| 上階:ルーフバルコニーへ出る窓 |
|
|
| 賃料 | 15万円 | 専有面積 | 44.39㎡ |
| 敷金 | 1ヶ月 | 礼金 | 1ヶ月 |
| 償却 | なし | 管理費 | 5,000円 |
| 所在地 | 世田谷区太子堂 | ||
| 交通 | 東急田園都市線「三軒茶屋」 徒歩7分 | ||
| 建物構造 | 鉄筋コンクリート造 5階建て | 所在階 | 4-5階 |
| 築年 | 2010年 | 取引態様 | 媒介 |
| 設備 | エアコン2基/ウォシュレット/オートロック | ||
| 備考 | ペット不可/保証会社利用必須(初回保証料:月支払い総額の50%、更新料:年額10,000円)/24時間サポート:16,500円(2年間)/要火災保険契約 | ||
| 情報修正日時 | 2026年1月22日 | 情報更新予定日 | 2026年2月5日 |
あなたにおすすめの物件


