|
|
|
||||||||||||||||||||
記憶のよりどころと、新しい風 |
||||||||||||||||||||||
|
||||||||||||||||||||||
|
||||||||||||||||||||||
|
||||||||||||||||||||||
|
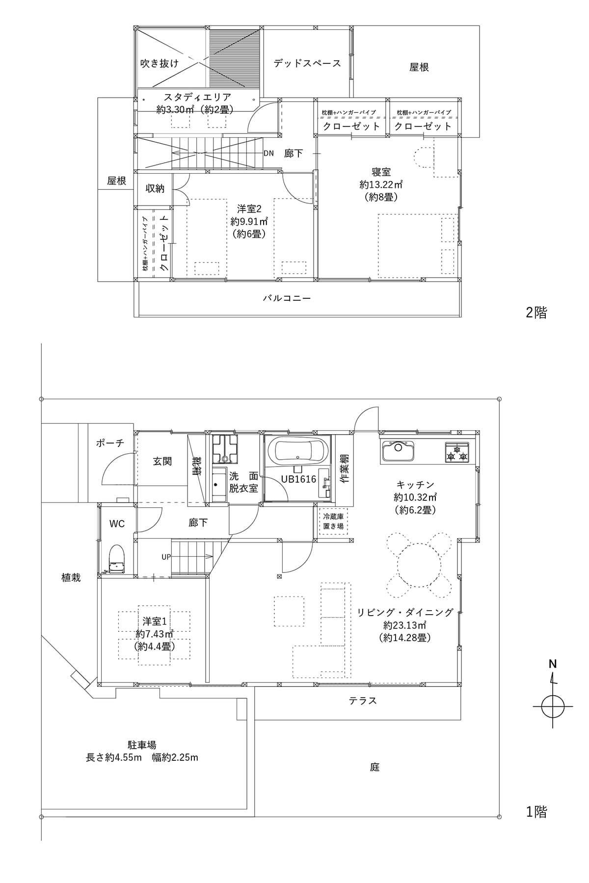
★ 賃料が下がりました! ★ 築53年の古き良き注文住宅をリノベーション。丁寧に作られた注文住宅の良さを残しながら、それに馴染むような工事をしたからか、新築では作りえないデザインの家に生まれ変わりました。 この家のハイライトは、この家のストーリーとリノベーションの設計。 オーナーさんのお父さんがお住まいだった家を引き継いだのが数年前。既に別の場所で生活していたオーナーさんの「父が暮らした家をパッと売ってしまうのも忍びない。大事に残す方法はないか」という思いから、今回リノベーションし、賃貸住宅として募集することになりました。 設計は「山野井靖建築事務所」さん。スピーク(東京R不動産)の設計チームに在籍していた元同僚です。 リノベーション工事で大事にしたのは、「元々の家に馴染ませる」ということ。この家は注文住宅として建てられたためか細部までこだわりが感じられ、残して使いたいと思うところが多々ありました。もちろん、今の生活とズレているところもあったので、間取りや部屋の広さを変えたり設備の交換をしたのですが、その工事が元のデザインとケンカしないように気をつけた設計となっているのが、ポイントです。 さて、この家の詳細はというと、面積は約94㎡で間取りは3LDK。駐車場と庭が付いた戸建てです。今回の工事で1階に約20.48畳の広々としたLDK、仕事部屋などにぴったりの洋室1と水回り。2階には2部屋の個室とスタディエリアという構成にしました。 まず目を引くのが玄関。あえて床を抜いて吹き抜けにし、2階のスタディエリアと繋げています。また、洗面脱衣室の天井部分が吹き抜けにあるので、その天井がルーバーになのもポイント。時間によってルーバーの隙間から日の光が洗面脱衣室に落ちてきて、いい雰囲気を演出してくれています。 1階の奥にあるLDKは、元和室(洋室1)の一部を使って元より広くし、約20.48畳の広い空間に。天高は高いところで約2.8mあります。 LDKは広くしたおかげで、大きなダイニングテーブルやソファを置くなど家具の配置がしやすくなりました。 また、LDKには2階にあった本棚や古い照明をリペアして作った冷蔵庫隣の作業棚やダイニングの照明があって、元の家の名残りが感じられるデザインになっています。 そんな細部へのこだわりと馴染むように、内装仕上げも工夫をしています。 壁は少しグレーが入った塗装調のクロス、床はちょっとだけ赤みのある濃い茶色のラワン合板、天井は構造の現しです。クロスと木材の見切り、照明やスイッチなど他にも話したいポイントはあるのですが、それは内見の際にでも。 1階はどちらかというと落ち着いたトーンに仕上げていますが、2階は日の入り方もあって明るめの雰囲気。洋室2はほぼ元の内装で、照明をダウンライトにするなど細かな調整をしただけの部屋。子ども部屋などにちょうどいいお部屋です。 寝室は元和室。この部屋は和の雰囲気が強かったので、それに馴染むように壁に木材を貼ったり、襖紙をシンプルなデザインにしています。収納はどれも元押入れなので、奥行きがあります。中段を撤去し、ハンガーバーをつけたので、衣類の収納はしやすくなっていると思います。 この家の特徴でもある玄関の吹き抜け上部に作ったスタディエリアは、既視感のない雰囲気。並んで勉強や仕事ができる約3m幅の机が備え付けられています。「ここで勉強や仕事していたら、帰ってきた家族におかえりとすぐ言える」なんて生活のシーンが目に浮かびます。 ここは中野区上高田。東中野駅から徒歩12分の静かな住宅街です。近くには「にじいろ保育園上高田」、妙正寺川沿いに「落合公園」などの公園があり、子育てや息抜きに重宝しそうです。また、東中野駅周辺にはスーパーが数件、個人が営む飲食店などもあり、生活がしやすそうなのも嬉しいポイントですね。 実はこの家のオーナーさんと私を繋いでいただいたのは、近くにお住まいの私の知り合いのオーナーさん。 その方の家の新築時にこの家の駐車場をお貸ししたのがきっかけで、「父から引き継いだこの家をどうするか」という世間話になり、私を紹介していただいたという訳です。そんな出会いがあったのが2025年の春。そして今回の工事と賃貸募集となったのです。 そんな昔ながらのご近所の方との関係も残る、古き良き住宅街にあるこのお家は、住居だけではなく住居兼事務所または住居兼店舗として利用するのも相談可能。 玄関の脇にトイレと部屋があったので、1階の洋室はそんな使い方も想定して面積を約4.4畳に調整しました。ちなみに、細かい条件はありますが、法人登記の相談が可能です。 最後に外構や庭。玄関前のスペースの植栽を「北中植物商店」さんに整えてもらいました。アカマツやウメモドキ、ミツバツツジなど花が咲く木々を植え、元々庭や玄関先にあった石を再利用したり、塀を壊してできた穴に花を植えるなど工夫していただいたおかげで、これからの成長が楽しみになりました(日々の水やりは入居者さんにてお願いいたします)。 また、庭は入居者さんにて自由に使っていただいてOK。耕して畑にしたり、テーブルを出してくつろぐ場所にするなど、楽しく使っていただければ嬉しいです。 昔の家を思い出す記憶のよりどころにもなるように、昔の家の痕跡を感じられる工事をしたこの家を、気に入っていただける方にぜひ。 |
![]() |
|
| キッチンは機能的なレイアウト。調理の動線が考えられた設計で、大きなダイニングテーブルも置くことが可能です |
|
| 作業棚は古い本棚をリメイクして作ったもの。電子レンジやコーヒーグッズを並べたくなります。上から降りてくる照明の光がいい演出になっていますね |
|
| 写真左上の照明は廊下にあったものをリメイクしたもの。ダイニングテーブルを置くであろう場所に垂らしています |
|
| 築53年の古い戸建てですが、大事にされてきたおかげでまだまだ元気です |
|
|
| 賃料 | 32万円 | 専有面積 | 94.60㎡ |
| 敷金 | 1ヶ月 (住居兼事務所又は住居兼店舗の場合は賃料の3ヶ月) | 礼金 | 1ヶ月 |
| 償却 | なし | 管理費 | なし |
| 所在地 | 中野区上高田 | ||
| 交通 |
中央線・都営大江戸線「東中野」駅 徒歩12分 東西線「落合」駅 徒歩11分 |
||
| 建物構造 | 木造 2階建て | 所在階 | |
| 築年 | 1972年 | 取引態様 | 媒介 |
| 設備 | エアコン(LDK・洋室2・寝室にあり。洋室1・スタディエリアに設置可能)/ガスコンロ3口/グリル/ウォシュレット/追いだき機能/ガスストーブ使用可能/モニター付きインターホン | ||
| 備考 | ペット不可/定期借家契約(期間:2年間/再契約:相談)/保証会社利用必須(初回保証料:月支払い総額の50%、更新料:年額10,000円〜)/1年未満の解約の場合は月支払額1ヶ月分の違約金がかかります/禁煙/2階デッドスペースは利用できません/庭付き/バイク置場あり(駐車場に駐輪可能。使用料は賃料に含みます)/駐車場あり(長さ約4.55m、幅約2.25m。使用料は賃料に含みます)/住居兼事務所可(住居兼事務所又は住居兼店舗の場合は敷金3ヶ月、登記可)/楽器演奏可/要火災保険契約 | ||
| 情報修正日時 | 2026年3月10日 | 情報更新予定日 | 2026年3月31日 |
あなたにおすすめの物件


