|
|
|||||||||||||||||||||
竹林を望むデザイナーズ |
||||||||||||||||||||||
|
||||||||||||||||||||||
|
||||||||||||||||||||||
|
||||||||||||||||||||||
|
竹がたくさん覆いしげり日陰で涼しげな魅惑の中庭。鳥の鳴き声や川のせせらぎが聴こえてきそうな心地よいデザイナーズ。 緑に囲まれた空間は、のんびりと1人暮らしで、特に在宅ワークの方にちょうど良さそう。とにかく静かで、集中できそうな環境です。 一応ワンルームという形に属する部屋ですが、取り外しができる可動式の戸でゆるく区切れば、1LDKのようにも使える、自由さを備えた物件です。同じく可動式の収納を使い自分好みの空間にゾーニングしていただけたら。 壁の少ない空間は視界が開け、実際の面積よりも広く感じます。そして何より大きな窓に囲まれる開放感がたまりません。ほぼ窓といってもいいくらいの割合なので、これでもかと自然光で満たされます。 内装は白く塗装された壁や柱でクリーンな印象に仕上げつつ、一部に打ち放しのコンクリートの壁面を組み合わせたデザイン。 駅前はスーパーにパン屋、クリーニング屋と必要不可欠な店はあるものの、かなり静か。にぎやかさはありませんが、のんびりとした雰囲気が好きな方には気に入ってもらえそうな街かなと思います。 穏やかな住宅街に突如現れる、見事な中庭を望むデザイナーズ。自由な使い方を想像したくなる空間で暮らしてみませんか? ※写真は全て前回募集時のもの ※可動式の収納以外の家具は付きません |
![]() |
|
| 家具選びが楽しくなっちゃうシンプルな空間 |
|
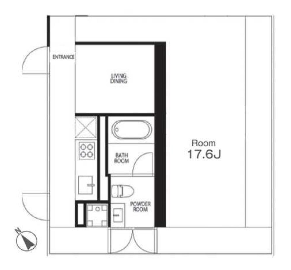
| 図面ではLDと記載されていますがサイズ的にはコンパクトなベッドルームに良さそう |
|
| 日々中庭の竹林を抜ける |
|
| ガラス×コンクリート打ち放し×メッシュのシャープな外観 |
|
|
| 賃料 | 24万1,000円 | 専有面積 | 51.84㎡ |
| 敷金 | なし | 礼金 | なし |
| 償却 | なし | 共益費 | 10,000円 |
| 所在地 | 大田区北千束 | ||
| 交通 |
東急目黒線「洗足」駅 徒歩2分 東急大井町線「北千束」駅 徒歩7分 |
||
| 建物構造 | 鉄筋コンクリート造 5階建て | 所在階 | 2階 |
| 築年 | 2006年 | 取引態様 | 媒介 |
| 設備 | エアコン/ガスコンロ4口/ウォシュレット/インターネット(無料)/オートロック/宅配ボックス | ||
| 備考 | ペット可((小型犬または猫1匹まで、敷金1ヶ月))/保証会社利用必須(初回保証料:月支払い総額の50%~、月額保証料:月額賃料等の1%)/駐車場空きなし(月額38,500円)/駐輪場空きあり(月額550円)/バイク置き場空きなし(月額5,500円)/鍵交換費用22,000円/解約予告2ヶ月/1年未満の短期解約の場合、違約金賃料の1ヶ月/法人契約の場合、礼金1ヶ月/要火災保険契約 | ||
| 情報修正日時 | 2026年1月19日 | 情報更新予定日 | 2026年3月31日 |
あなたにおすすめの物件


