|
|
|
||||||||||||||||||||
さらっと気持ちを整えて |
||||||||||||||||||||||
|
||||||||||||||||||||||
|
||||||||||||||||||||||
|
||||||||||||||||||||||
|
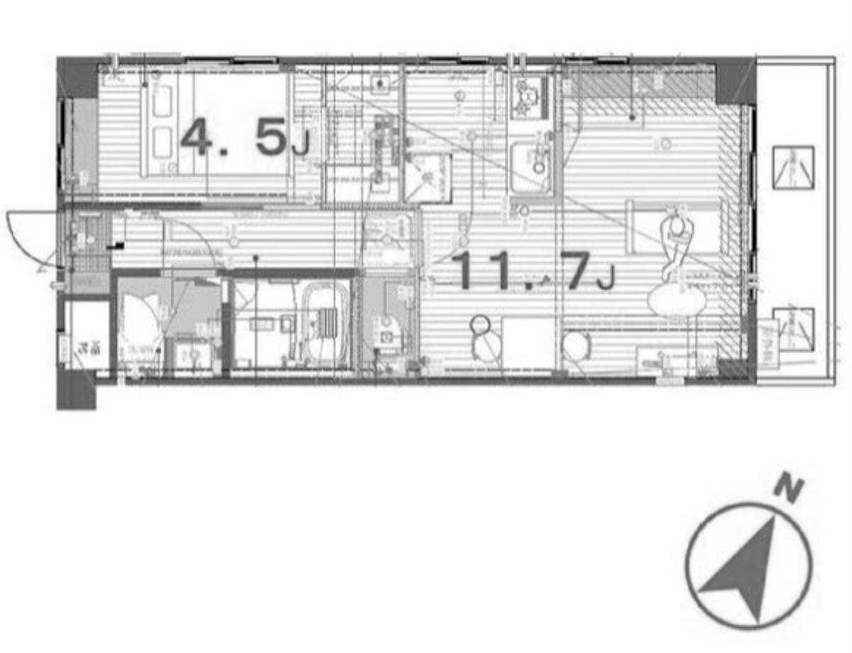
さらっとしたフローリングにより、日々の気分も整った状態で生活することができそうな一室。 家の床は、室内で生活する際に、一番身体が触れる箇所と考えると、想定以上に重要視すべき要素に感じます。さらっとしつつも、冷たさをあまり感じないこの床なら、冬も裸足で過ごすことができそうです。 内装は全体的に木材基調でつくられており、優しいテイストです。1階のため、そこまで日差しが入ってくるわけではないですが、内装のテイストにより、そこまで暗い印象は受けませんでした。ただ、日々しっかりと自然光を浴びて生活したいという人には少々物足りないと思うので、ご注意を。 特徴的なポイントは、床材以外にも。すでにリビングと洋室に備え付けのデスクが付いています。シンプルな作りのため、リビング部分のデスクについてはちょっとした棚としても使うことができそうです。 カウンターキッチンも嬉しいポイント。水回りはリフォームによって綺麗に整っています。 ひとり暮らし、ふたり暮らし両方にフィットするような間取りと広さでした。 立地は「三軒茶屋」駅から少し歩いた住宅街。駅前の華やかな雰囲気から少し距離がある分、落ち着いて過ごせる環境です。 マンションの隣の隣には昔ながらの銭湯「八幡湯」があり、徒歩2分ほどで御神木が有名な「太子堂八幡神社」があったりと、周囲の環境含めて落ち着いた生活をイメージすることができます。 |
![]() |
|
| リビング別角度から |
|
| リビング別角度から。備え付けのデスクが付いています |
|
| リビング別角度から |
|
| リビング別角度から |
|
|
| 賃料 | 18万1,000円 | 専有面積 | 42.75㎡ |
| 敷金 | 189,000円 | 礼金 | 189,000円 |
| 償却 | なし | 管理費 | 8,000円 |
| 所在地 | 世田谷区太子堂 | ||
| 交通 | 東急田園都市線「三軒茶屋」駅/世田谷線「三軒茶屋」駅 徒歩8分 | ||
| 建物構造 | 鉄筋コンクリート造 3階建て | 所在階 | 1階 |
| 築年 | 1988年 | 取引態様 | 媒介 |
| 設備 | ガスコンロ3口/エアコン/追いだき/浴室乾燥機/宅配ボックス | ||
| 備考 | ペット不可/保証会社利用必須(初回保証料:月支払い総額の50%、月額保証料:月支払い総額の1.2%)/鍵交換費用:27,500円/ルームクリーニング費用(契約時):47,300円/要火災保険契約 | ||
| 情報修正日時 | 2026年1月19日 | 情報更新予定日 | 2026年2月2日 |
あなたにおすすめの物件


