|
|
|
||||||||||||||||||||
暮らしを耕す、小さな村の話 |
||||||||||||||||||||||
|
||||||||||||||||||||||
|
||||||||||||||||||||||
|
||||||||||||||||||||||
|
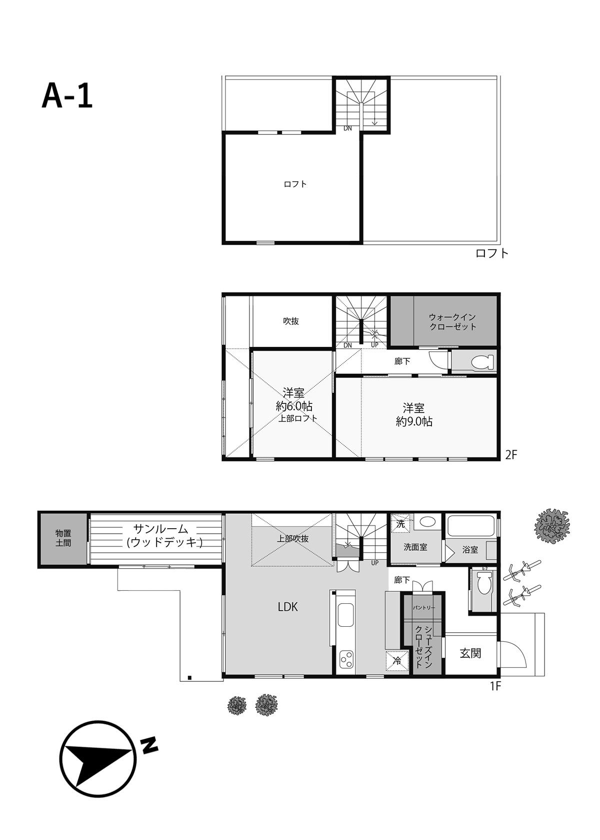
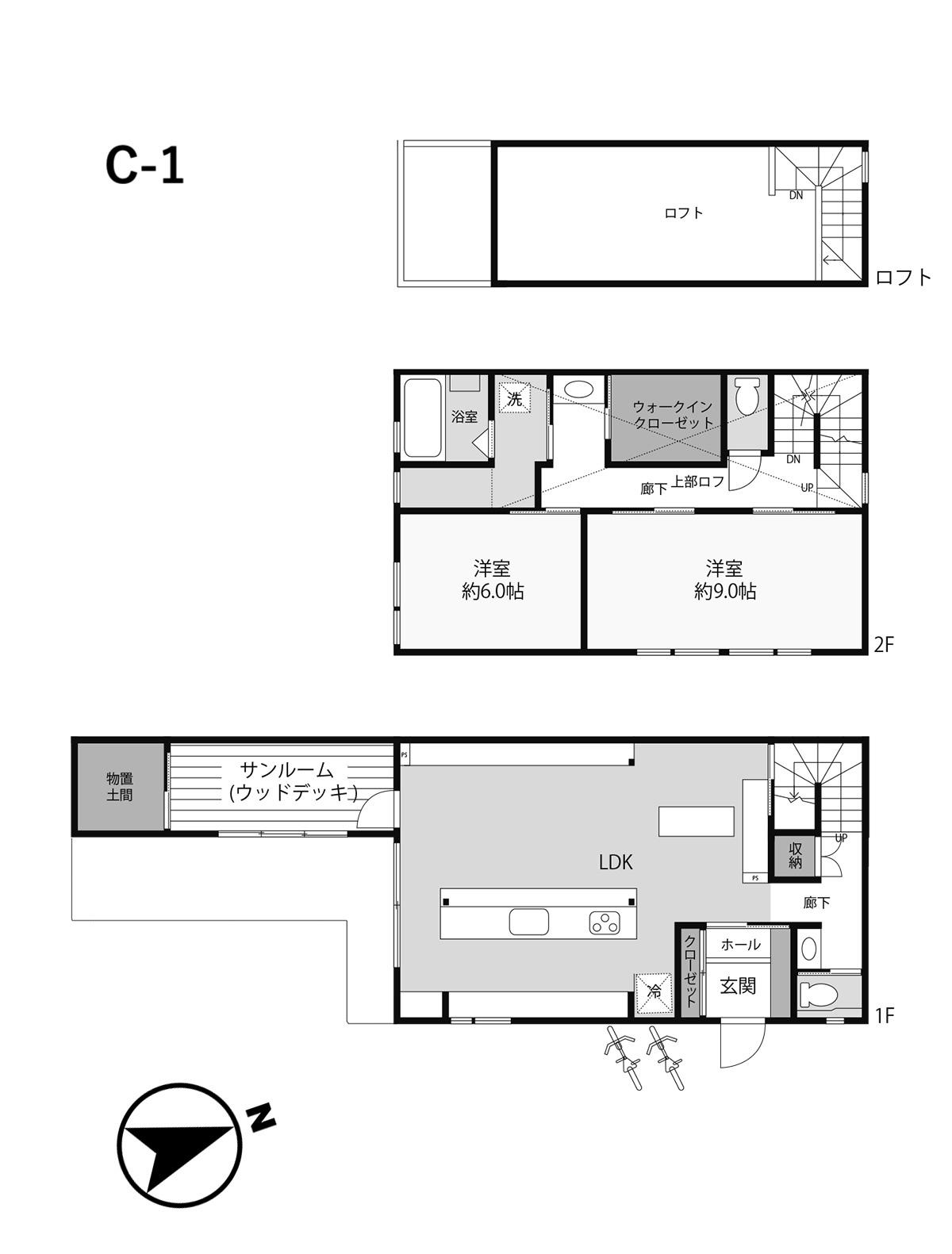
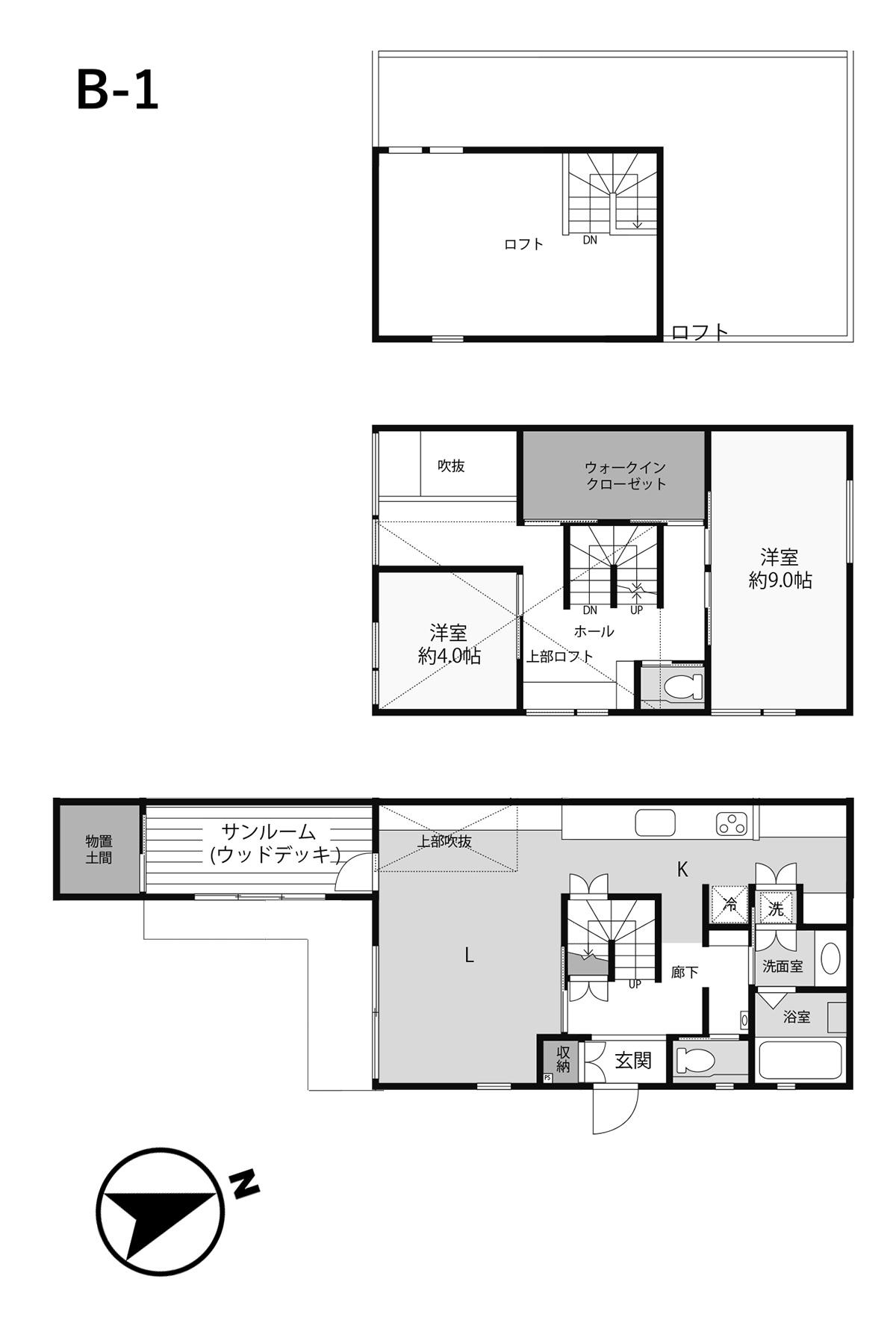
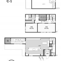
都心から電車に揺られ、西武池袋線秋津駅から歩くこと14分。少しずつ空が広くなり、土の匂いが混じり始めた頃、その広大な場所が現れます。 『kitoki所沢』と名付けられたこの場所は、単なる新築の賃貸住宅ではありません。豊かな植栽の間に、ゆとりを持たせて配置された6つの棟 。それはまるで、ひとつの村のような風景です。 建物にふんだんに使われた無垢材。江戸時代の梁までもが空間に組み込まれています。古材が持つ力強い存在感と、新しい木の香りが混ざり合う空間はどこか懐かしく、同時にとても新鮮。 なによりの特徴は、L字のコンクリートテラスと、その内側に用意された専用の庭。リビングとサンルームからそのまま庭へ出て、その日の食事に使う野菜と果物を摘む。週末には友人を招いてBBQを楽しんだり、お子様の遊び場になったり、土に触れることが日常になる生活が待っています。 それぞれの違いや特徴もあって、住み手の個性を引き出すようでおもしろい。 キッチン・洗面・室内干しスペースを効率的に配置したA棟は、良好な家事動線と吹き抜けが生む開放感が魅力。 階段を中心とした回遊動線が特徴的なB棟は、コンクリートの土間リビングが個性を放ち、ラフでアクティブな使い方がよく似合う造り。 そして、特に食を愛する方に選んでいただきたいのがC棟。幅3mにも及ぶ巨大なキッチンが、庭の収穫物を一皿のごちそうに仕上げます。 さらに全棟、最高天高1.85mというもはや部屋と呼べるレベルの広いロフトが備わっていて、9畳の洋室は貸主のほうで2部屋に分けることも可能。100㎡超という広がりを、書斎や秘密基地など、想像力を膨らませて使いこなしていただけます。 便利さやタイムパフォーマンスといった現代的な物差しを一度手放し、土をいじり、木の匂いに包まれて暮らす。そんな、生き物としての根源的な心地よさを取り戻したいと思う方にこそ、この村の扉を叩いてみていただきたいところです。 ちなみに、敷金・礼金・仲介手数料がかかりません。これを機に引っ越しのイメージを膨らませてみてください。 ◯賃貸条件◯ 全6区画(A-1,2、B-1,2、C-1,2) 一律、管理費:10,000円、駐車場代:6,000円 ▪︎A-1,2 賃料:204,000円 面積:107.66㎡ +別途ロフト:19.87㎡、庭(畑):約19㎡、コンクリート部分:約7.5㎡ ▪︎B-1,2 賃料:209,000円 面積:110.14㎡ +別途ロフト:19.87㎡、庭(畑):約19㎡、コンクリート部分:約7.5㎡ ▪︎C-1 賃料:249,000円 面積:112.63㎡ +別途ロフト:19.87㎡、庭(畑):約52.5㎡、庭(畑以外):約49.5㎡、コンクリート部分:約7.5㎡ ▪︎C-2 賃料:239,000円 面積:112.63㎡ +別途ロフト:19.87㎡、庭(畑):約41㎡、コンクリート部分:約13.5㎡ |
![]() |
|
| C-1:もちろんイスを出してくつろいだり、BBQを楽しむこともできます |
|
| C:収納がふんだんに用意されているリビング |
|
| C:今日の収穫物を思い切り並べて、ごちそうに仕上てます |
|
| B-2:真ん中の区画です |
|
|
| 賃料 | 20万4,000~24万9,000円 | 専有面積 | 107.66㎡~112.63㎡ |
| 敷金 | なし | 礼金 | なし |
| 償却 | なし | 管理費 | 10,000円 |
| 所在地 | 埼玉県所沢市上安松 | ||
| 交通 | 西武池袋線「秋津」駅 徒歩14分 | ||
| 建物構造 | 木造 2階建て | 所在階 | |
| 築年 | 2025年 | 取引態様 | 該当せず |
| 設備 | エアコン5基/浴室暖房乾燥機/ウォシュレット/宅配ボックス | ||
| 備考 | ペット不可/仲介手数料なし/無料インターネット/保証会社利用必須(初回保証料:月支払い総額の50%)/庭付き/バイク置場あり/駐車場あり(一世帯一台利用必須・月額6,000円)/住居兼事務所可/新築/要火災保険契約 | ||
| 情報修正日時 | 2026年1月18日 | 情報更新予定日 | 2026年2月3日 |
あなたにおすすめの物件


