|
|
|
||||||||||||||||||||
育むいえ |
||||||||||||||||||||||
|
||||||||||||||||||||||
|
||||||||||||||||||||||
|
||||||||||||||||||||||
|
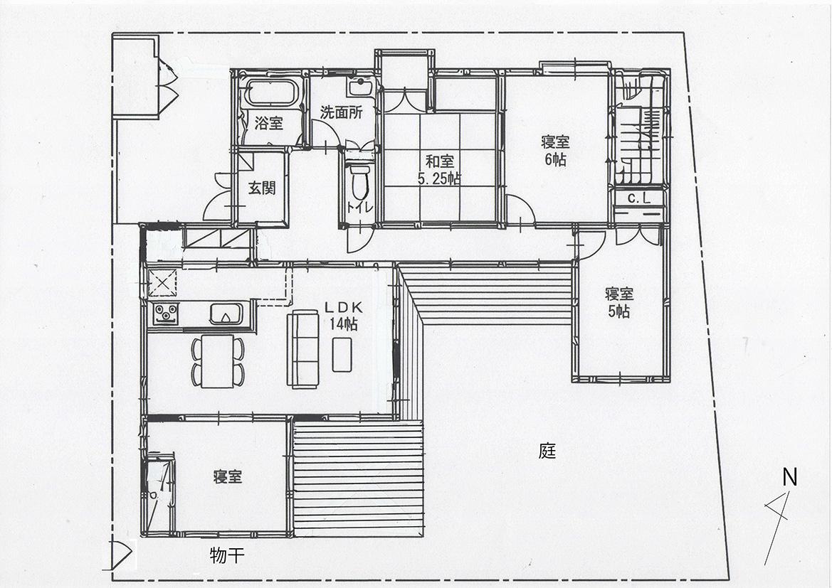
庭付き平屋への憧れ。 あまり大きな声では言えないけれど、古民家を受け入れられる耐性は持ち合わせていない私。 でも、大きな庭とか縁側とか、階段のない快適さとか、上下階を気にしなくてよい子育てとかは魅力ですよね。 このあたりで「そうそう!」とうなずき始めているそこの貴方、綺麗にリフォームされ設備も整った平屋の戸建てはいかがでしょう? 部屋数も多いので大家族も受け入れ可能。 マスオさん、仕事部屋として個室も持てますよ! 庭で子供プール、家庭菜園、ペット放庭、デッキにハンモック、縁側で愛猫が日向ぼっこする幸せな光景などなど楽しみ方はそれぞれ。 色々育ちそうですね。 西武新宿線に馴染みのない方、高田馬場駅から鷺ノ宮駅は急行で1駅なので7分(各停でも13分)。 鷺ノ宮駅から物件までの道程は、ほどよく商店と住宅街。 コンビニまで3分、オーケーストアまで5分。 阿佐ヶ谷駅行きのバスも頻繁に走っていますので、中央線に御用の方は是非バスで。 ・大家さんの冷蔵庫・ソファ・ダイニングテーブル・チェア・ダイニングチェスト・テレビボード・リビング照明はご希望により撤去しますのでお申し付けください。 ・前面道路がかなり狭いです。最後の写真でご確認ください。 ・駐車場はありませんが、自転車は複数台、屋根付きで玄関前に駐輪可能。 |
![]() |
|
| リビング前のデッキは広めなので外用のイスやテーブルを置きたい |
|
| サルスベリがシンボルツリー |
|
| 庭の照明で夜も楽しめそう |
|
| 家具はご希望に応じて撤去可能 |
|
|
| 賃料 | 22万円 | 専有面積 | 92.74㎡ |
| 敷金 | 1ヶ月 ペット飼育は2ヶ月 | 礼金 | 1ヶ月 |
| 償却 | なし | 管理費 | なし |
| 所在地 | 中野区鷺宮 | ||
| 交通 | 西武新宿線「鷺ノ宮」駅 徒歩6分 | ||
| 建物構造 | 木造 1階建て | 所在階 | |
| 築年 | 築年不詳 | 取引態様 | 媒介 |
| 設備 | エアコン5台/3口ガスコンロ/グリル/食洗器/ウォシュレット | ||
| 備考 | ペット可(敷金2ヶ月)/定期借家契約(期間:2年/再契約:相談)/リビングの床暖房は残置物/冷蔵庫・ソファ・ダイニングテーブル・チェア・テレビボード・ダイニングチェスト・リビング照明はご希望により撤去可能/自転車・バイク複数台駐車可/庭師の手配と費用は貸主負担(年1回)/光ファイバーの引込工事は行っておりませんので、借主負担で電柱から引込工事が必要(貸主承諾します)/庭付き/バイク置場あり/1階・路面/要火災保険契約 | ||
| 情報修正日時 | 2026年1月6日 | 情報更新予定日 | 2026年1月22日 |
あなたにおすすめの物件


