|
|
|
||||||||||||||||||||
富ヶ谷の原石 |
||||||||||||||||||||||
|
||||||||||||||||||||||
|
||||||||||||||||||||||
|
||||||||||||||||||||||
|
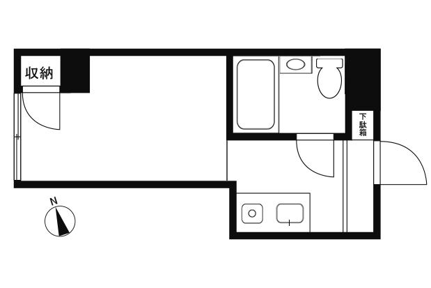
代々木八幡の商店街から一本路地に入った場所にある、ちいさなマンションの一室。 同じ建物には人気のベーグル屋やミシュランの星付きのレストラン、サロンや事務所が入っています。人気の飲食店が並ぶ路地に建ち、事業用としては魅力的な立地になります。 専有部分は、モルタル敷きの床に、白い壁天井内装にリノベーションされ、すっきりシャープな印象。ミニマルな事務所として使いやすい広さです。 物販店舗やサロンとして使用も可能。ひっそりとマンションの2階にある感じが隠れ家的でそそります。また、モルタル床など内装に雰囲気があるのが嬉しいところ。玄関や窓周り、ミニキッチン・ユニットバスは、既存のものなのでやや古めですが、カーテンで隠してあげたりなど、工夫をしてうまく使うことはできそうです。 洗濯機置き場はないですが、住居として使うことも可能です。住居の場合、賃料に消費税がかからず11.3万円となります。 なお、敷地の一角はシェアサイクルのLUUPの拠点になっていて、渋谷方面に出る場合など、便利に活用できそうです。 きゅっとコンパクトな空間ではありますが、この立地を生かして、面白く使っていただけたら。 ※写真は前回募集時のもの |
![]() |
|
| 数年前に床壁天井をリノベーションしていてきれいです |
|
| 天井にはライティングレール。入口側は床が少しあがっています |
|
| 壁面が多いので、レイアウトがしやすい間取り |
|
| ミニキッチンが手前に |
|
|
| 賃料 | 12万4,300円(税込) | 専有面積 | 20㎡ |
| 保証金 | 3ヶ月 | 礼金 | 1ヶ月 |
| 償却 | 保証金の20% | 管理費 | なし |
| 所在地 | 渋谷区富ヶ谷 | ||
| 交通 |
千代田線「代々木公園」駅 徒歩1分 小田急線「代々木八幡」駅 徒歩2分 |
||
| 建物構造 | 鉄筋コンクリート造 4階建て | 所在階 | 2階 |
| 築年 | 1975年 | 取引態様 | 媒介 |
| 設備 | エアコン/ガスコンロ1口/ユニットバス /モニター付きインターホン/洗濯機置き場なし | ||
| 備考 | ペット不可/定期借家契約(期間:2年/再契約:相談)/保証金:住居利用時1ヶ月、事務所利用時3ヶ月、店舗利用時6ヶ月/保証会社利用必須(初回保証料:賃料50〜100%、年間保証料:10,000円)/看板使用料(月額3,300円税込)/住居兼事務所可/要火災保険契約 | ||
| 情報修正日時 | 2026年1月7日 | 情報更新予定日 | 2026年1月22日 |
あなたにおすすめの物件


