|
|
|
||||||||||||||||||||
ひっそりと佇む、創作の小屋 |
||||||||||||||||||||||
|
||||||||||||||||||||||
|
||||||||||||||||||||||
|
||||||||||||||||||||||
|
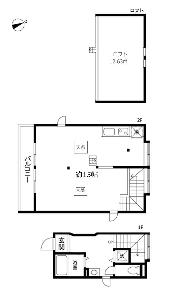
四季折々の自然と、野生の生き物たちが息づく井の頭公園から、歩いてわずか1分。緑と大地に溶け込むような渋みのある日本家屋の佇まい。その建物の中に、ひっそりと今回のお部屋が待っています。 設計を手がけたのは、川口通正建築研究所。建築家が関わったからこその、細部まで配慮の行き届いた設えや、創造性を感じられる建物。 建物前に生い茂る植物の小径を抜け、貸主さんの住居と共用のエントランスホールを進んだ先が、この部屋の玄関。外の緑から内部空間へと移り変わる、そのアプローチも印象的です。 メゾネットになった構造で、2階が暮らしのメインとなる空間。天井は屋根勾配いっぱいまで吹き抜け、もっとも高いところで3.5mほど。2ヶ所の天窓からは、時間帯を問わずやわらかな光が降り注ぎ、室内を明るく満たしてくれます。 内装は、木の温もりをしっかり感じられる落ち着いた雰囲気。床には杉の無垢材、柱や屋根裏の構造材もあらわしに。壁は落ち着いた風合いの壁紙で、趣を感じる空間に自然に溶け込むようなかたち。 キッチン、リビング、ベッドスペース、ワークスペースが、ワンフロアの中でバランスよくレイアウトできるゆとりのある広さ。 木で造作された可動式のクローゼットBOXは、好きな位置に移動できるつくりです。さらに、専有面積とは別に約12㎡のロフト付き。くつろぎの小さな隠れ場所にしたり、収納スペースとして活用したり、暮らしにプラスの余白を加えてくれます。 玄関のある1階には、浴室・トイレ・洗面といった水まわりがひと続きに配置されています。朝の身支度の動線がすっきり集約されていて、日常の使い勝手がよいつくり。 先住の米国人作家さんは、「仕事に深く集中できる場所だった」と語り、この空間で静かに筆を進め、結果として5冊の書籍を世に送り出したようです。 ちいさな小屋に籠るような感覚で内に向かうことができ、窓の外にちらつく緑の気配が静かに癒しを与えてくれます。外にでれば井の頭公園がすぐ近くにあり、緑に囲まれてリフレッシュをすることもできます。 ※写真は原状回復前のもの。ここから清掃、壁紙の張り替えがされます。 ※1 /24から内見可能 ※床面積42.23㎡+別途ロフト12.63㎡ |
![]() |
|
| 2階にメインの空間。屋根まで吹き抜けた開放感のあるつくりで、天井高は一番高いところで約3.5mあります |
|
| 木の温もりと、優しい日の光。静かで落ち着いた環境が、集中して何かに打ち込むのによい空間のよう |
|
| 茂る植物を抜けた先に、共用のエントランス |
|
| 共用エントランスを開けると、ロビーのような空間が待っていて、その先に専有部の玄関があるつくりです |
|
|
| 賃料 | 19万5,000円 | 専有面積 | 42.23㎡ |
| 敷金 | 1ヶ月 | 礼金 | 1ヶ月 |
| 償却 | なし | 管理費 | なし |
| 所在地 | 三鷹市井の頭 | ||
| 交通 |
井の頭線「井の頭公園」駅 徒歩3分 中央線・井の頭線「吉祥寺」駅 徒歩10分 |
||
| 建物構造 | RC地下1階付き木造2階建 | 所在階 | 1-2階 |
| 築年 | 2016年 | 取引態様 | 媒介 |
| 設備 | エアコン2基/ガス2口コンロ/モニター付インターホン | ||
| 備考 | ペット不可/ロフトつき(12.63㎡)/住居兼事務所可/要火災保険契約 | ||
| 情報修正日時 | 2026年1月16日 | 情報更新予定日 | 2026年1月30日 |
あなたにおすすめの物件


