武蔵野市境南町の賃貸物件/コンクリート打ちっぱなしのマンション外観
武蔵野市境南町の賃貸物件/どんな家具も馴染みそうな、シンプルな内装のワンルーム
武蔵野市境南町の賃貸物件/大きな窓から光が気持ちよく入ります
武蔵野市境南町の賃貸物件/窓からの眺望。手前の敷地は工事計画が数年ストップしており、現時点では再開の目処が立っていないそう
武蔵野市境南町の賃貸物件/玄関周辺はこんな感じ
武蔵野市境南町の賃貸物件/玄関にはシュークローゼットもあります
武蔵野市境南町の賃貸物件/賃貸ワンルームには珍しく、キッチンにもゆとりがある印象
武蔵野市境南町の賃貸物件/IHコンロ。収納棚も用意されています
武蔵野市境南町の賃貸物件/採光は一面に設けた大きな窓から十分に確保されており、そのぶん壁面を広くとっています。家具の配置場所の選択肢が多いのは嬉しいポイント
武蔵野市境南町の賃貸物件/ささやかなベランダも
武蔵野市境南町の賃貸物件/足触りの良い無垢フローリング
武蔵野市境南町の賃貸物件/浴室。追いだきと浴室乾燥機付き
武蔵野市境南町の賃貸物件/脱衣洗面所とトイレが一緒になっています
武蔵野市境南町の賃貸物件/敷地に植えられた多様な植栽たち

rent   NEW 住宅

光の満ちる暮らし

 
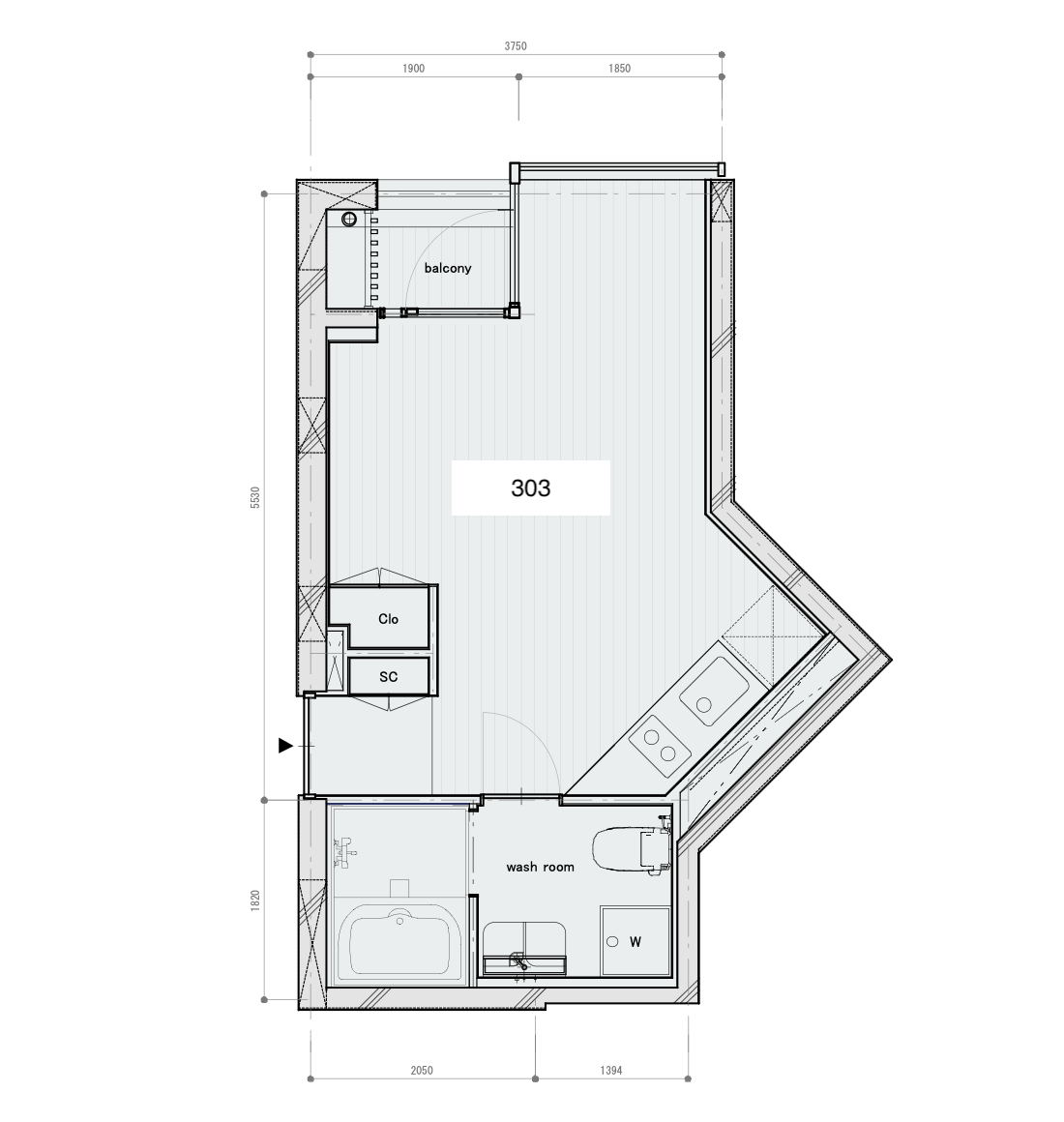
賃料:
10万2,000円
面積:
26.93㎡
所在地: 武蔵野市境南町
交通: 中央線「武蔵境」駅 徒歩15分
共益費 5,000円
敷 金 1ヶ月  礼金: 1ヶ月

気持ちよく光が差し込むワンルーム。ダイナミックに大きな窓があり、カクカクした窓辺がお気に入りの空間になりそう。収納や間取りから考えて、ひとり暮らしが最適だと思います。


内装は癖がなく、ナチュラルな色味の無垢フローリングが部屋の雰囲気に馴染んでいます。


水まわりも築浅なのでまだまだ新しく、キッチンもお風呂もゆったり。リモートワークなどで在宅時間が長かったり、おうち時間を大切にしたい人もリラックスして過ごせそうです。


建物外観はコンクリート打ちっぱなし。共用部もゆとりある設計で、吹き抜けのあるエントランスや共用階段も存在感がありました。


最寄りの武蔵境駅からは約15分と少し歩きますが、平坦な道なのでそれほど苦ではありません。自転車があれば行動範囲もグッと広がりそう。


駅前の商業施設で帰り際に買い物をするのも楽ですし、徒歩数分の場所に24時間スーパーがあるのも何かと便利だと思います。


都会の騒がしさから少し離れ、肩肘張らない暮らしをしたい方にぜひ。



※2月上旬より入居可能予定




賃料 10万2,000円 専有面積 26.93㎡
敷金 1ヶ月 礼金 1ヶ月
償却 なし 共益費 5,000円
所在地 武蔵野市境南町
交通 中央線「武蔵境」駅 徒歩15分
建物構造 鉄筋コンクリート造 5階建て 所在階 3階
築年 2022年 取引態様 媒介
設備 エアコン/IHコンロ/ウォシュレット/浴室乾燥機/追いだき/オートロック
備考 ペット不可/連帯保証人の設定および保証会社利用必須(初回保証料:月支払い総額の50%〜、更新料:10,000円)/1年未満の解約時、月支払い総額1ヶ月の違約金/解約予告2ヶ月前/置き配不可/駐輪場あり(空き要確認、1台につき月額500円)/要火災保険契約
情報修正日時 2026年1月13日 情報更新予定日 2026年1月27日
※掲載の情報が現状と異なる場合には、現状を優先するものとします。