|
|
|
||||||||||||||||||||
憧れの集合住宅 |
||||||||||||||||||||||
|
||||||||||||||||||||||
|
||||||||||||||||||||||
|
||||||||||||||||||||||
|
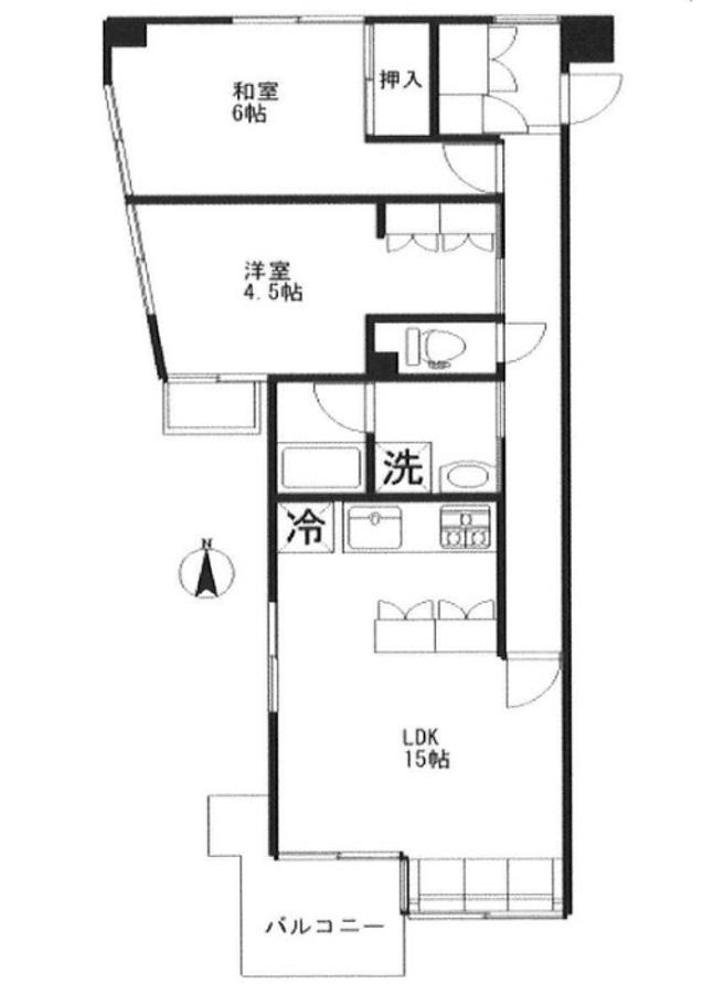
人の記憶に残り続ける強烈な魅力、そして流行りやオシャレといったものをすべて超越する力を持つ建物は、そうそうありません。 目黒区東が丘の閑静な住宅街に、「泰山館」はあります。その敷地全体に広がる圧倒的な豊かさ、人間的な空間、そして世界観は、写真でも言葉でも伝えきれません。人間のためにモノをつくることを知る建築家と人の心を豊かにするものを知る地主さんとの出会い。 どんな季節も、どんな時間も、どんな天気でも、いつ行ってもややはりいい物件です。 今回募集となる区画は2階の部屋。室内の写真は同様の間取りの上階の写真となります。内装のテイストは同じです。リビングからの眺望が竹林という点がこの部屋の特徴です。 お風呂が小さいので、お風呂重視の方は難しいかもしれません。 ※1月8日から内見開始となります ※写真は前回募集時のもの ※室内写真は同じ間取りの3階のものです |
![]() |
|
| 2階共用廊下から |
|
| 共用廊下は異国感漂う |
|
| リビング。光が静かに差し込んできます。※写真は同じ間取りの3階のもの |
|
| 共用廊下は様々な意匠がミックスされ、独特な調和を見てとることができます |
|
|
| 賃料 | 29万円 | 専有面積 | 69.30㎡ |
| 敷金 | 2ヶ月 (ペット飼育は3ヶ月) | 礼金 | 1ヶ月 |
| 償却 | なし | 管理費 | なし |
| 所在地 | 目黒区東が丘 | ||
| 交通 | 東急田園都市線「駒沢大学」駅 徒歩12分 | ||
| 建物構造 | 鉄筋コンクリート造 地下1階付き 3階建て | 所在階 | 2階 |
| 築年 | 1989年 | 取引態様 | 媒介 |
| 設備 | オートロック/ウォシュレット/食器洗浄機/エアコン(全室)/駐輪場/モニター付きインターホン | ||
| 備考 | ペット相談可(小型犬一頭(5kg以下)まで(敷金1ヶ月追加・1ヶ月償却))/保証会社利用可能(初回保証料:月支払い総額の50%、更新料:年額10,000円)/要火災保険契約 | ||
| 情報修正日時 | 2025年12月23日 | 情報更新予定日 | 2026年1月6日 |
※掲載の情報が現状と異なる場合には、現状を優先するものとします。
あなたにおすすめの物件


