|
|
|
||||||||||||||||||||
素朴さに陰影を添えて |
||||||||||||||||||||||
|
||||||||||||||||||||||
|
||||||||||||||||||||||
|
||||||||||||||||||||||
|
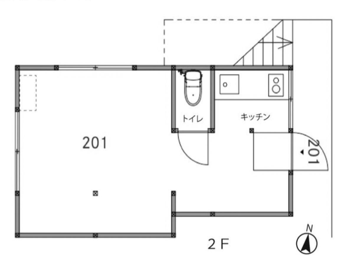
四谷の裏手にひっそりと佇むアパートの一室。レトロな風合いを残しつつ、リノベーションにより特徴的なテイストに仕上がっていました。 特徴的に感じたのは、床やところどころに潜む色。合板を淡い青色で塗装した床と白塗装された内壁が、どことなくシックな雰囲気を出しています。建物外観やドアの緑色は、悪目立ちすることなくアクセントとして捉えられるような絶妙な配色です。 部屋はコンパクトですが、ミニマルゆえにディティールや質感の良さが際立っていました。特徴的でありつつ好みにもフィットしてくれそうな素朴さがあります。 室内はオーナーの事前承認があれば改装も可能です。 アトリエや事務所としての使い方が想像できましたが、用途としては店舗としての利用も可能です。奥まっている場所にあるため、外からの視認性はそこまでありませんが、ひっそりとした店舗を持ちたい方にはいい候補になるかもしれません。 新宿御苑も徒歩6分ほどの距離。ギラギラとした環境というより、ちょっとした時に緑に触れ合えるような環境で、ひっそりとした空間を求めている方におすすめの部屋です。 ※店舗利用の場合は賃料が132,000円(税込)となります ※写真は全て原状回復前の状態です ※入居可能時期は2月以降の予定となっています |
![]() |
|
| 室内別角度から |
|
| 室内別角度から |
|
| 室内別角度から。窓は全て磨りガラス。 |
|
| 室内別角度から |
|
|
| 賃料 | 11万8,800円(税込) | 専有面積 | 21.94㎡ |
| 敷金 | 1ヶ月 | 礼金 | 1ヶ月 |
| 償却 | 賃料の1ヶ月分 | 管理費 | 16,500円(税込) |
| 所在地 | 新宿区四谷 | ||
| 交通 |
丸ノ内線「四谷三丁目」駅 徒歩6分 丸ノ内線「新宿御苑前」駅 徒歩9分 都営新宿線「曙橋」駅 徒歩8分 |
||
| 建物構造 | 木造 2階建て | 所在階 | 2階 |
| 築年 | 1975年 | 取引態様 | 媒介 |
| 設備 | IHコンロ/エアコン/トイレ | ||
| 備考 | ペット不可/定期借家契約(期間:2年/再契約:相談)/保証会社加入必須(初回保証料:月支払い総額の100%)/貸主への事前承認の上改装可能(現状回復前提)/要火災保険契約 | ||
| 情報修正日時 | 2026年1月9日 | 情報更新予定日 | 2026年1月27日 |
あなたにおすすめの物件


