|
|
|
||||||||||||||||||||
風格ある裏通りを拠点に |
||||||||||||||||||||||
|
||||||||||||||||||||||
|
||||||||||||||||||||||
|
||||||||||||||||||||||
|
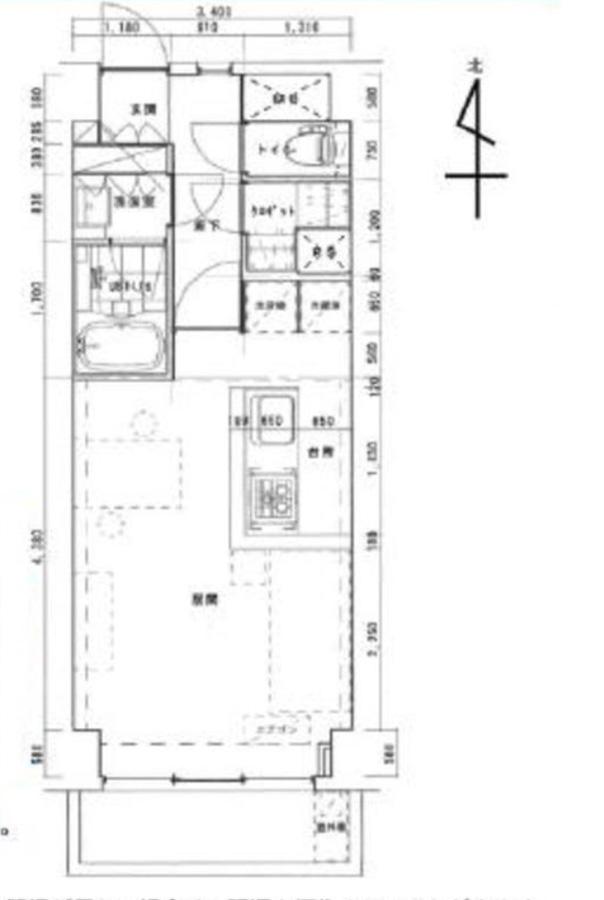
西麻布の交差点から一本裏手に入ったところ。レトロなマンションの一室が、リノベーションにより、一層クールに生まれ変わっていました。 大きなワンルームの天井は剥き出しで、内壁は塗装。この大胆さと落ち着きが両立している内装のテイストが、マンションの雰囲気と程よくマッチしています。フローリングもある程度経年を感じる質感があり、これもまたヴィンテージ心をくすぐるテイストに仕上がっています。 特徴的な点はカウンターキッチン。ワンルームの中でも一際存在感を放っています。たまに友人が遊びにきた時のちょっとした料理やお酒の振る舞いが、いつもよりもスタイリッシュに見えてくる予感がします。 室内のテイストはもちろん、機能性もこの物件のポイント。メインの居室は床暖房となっており、これからの寒い季節でも底冷えしないつくりになっています。 約55年前に建てられていることから、排水が若干弱まっています。都度メンテナンスは入りますが、トイレは2回流していただくことを推奨とのこと。 西麻布といえば華やかなイメージがありますが、メインの交差点から一本裏手に入っているため、周囲の環境は比較的穏やか。とは言いつつも、さすがは西麻布。物件前の通りには老舗のビストロ「BISTRO DE LA CITE」を代表格として、数多くの名店がひっそりと軒を連ねています。 事務所や住居兼事務所としての使用も、管理組合の承認が降りれば可能です。(別途賃料の課税あり) 洗練された裏通りを拠点に、自分なりの街の楽しみ方を作ってみてはいかがでしょうか。 ※写真は全てクリーニング前のもの |
![]() |
|
| 別角度から。窓は南向きです。 |
|
| 別角度から |
|
| 大胆なカウンターキッチンが特徴的 |
|
| マンション外観 |
|
|
| 賃料 | 14万5,000円 | 専有面積 | 30.06㎡ |
| 保証金 | 2ヶ月 | 礼金 | 1ヶ月 |
| 償却 | なし | 管理費 | なし |
| 所在地 | 港区西麻布 | ||
| 交通 |
日比谷線「広尾」駅 徒歩9分 日比谷線「六本木」駅 徒歩11分 都営大江戸線「六本木」駅 徒歩13分 |
||
| 建物構造 | 鉄筋コンクリート造 8階建て | 所在階 | 2階 |
| 築年 | 1970年 | 取引態様 | 媒介 |
| 設備 | エアコン/床暖房/ウォームレット/追いだき/IHコンロ/エレベーター/オートロック(夜間) | ||
| 備考 | ペット不可/保証会社加入必須(初回保証料:月支払い総額の40%〜)/駐輪場あり(年額7,200円)/住居兼事務所可(管理組合の承認必須/別途賃料課税あり)/要火災保険契約 | ||
| 情報修正日時 | 2025年12月23日 | 情報更新予定日 | 2026年1月6日 |
あなたにおすすめの物件


