|
|
|
||||||||||||||||||||
白くて静かな実験室 |
||||||||||||||||||||||
|
||||||||||||||||||||||
|
||||||||||||||||||||||
|
||||||||||||||||||||||
|
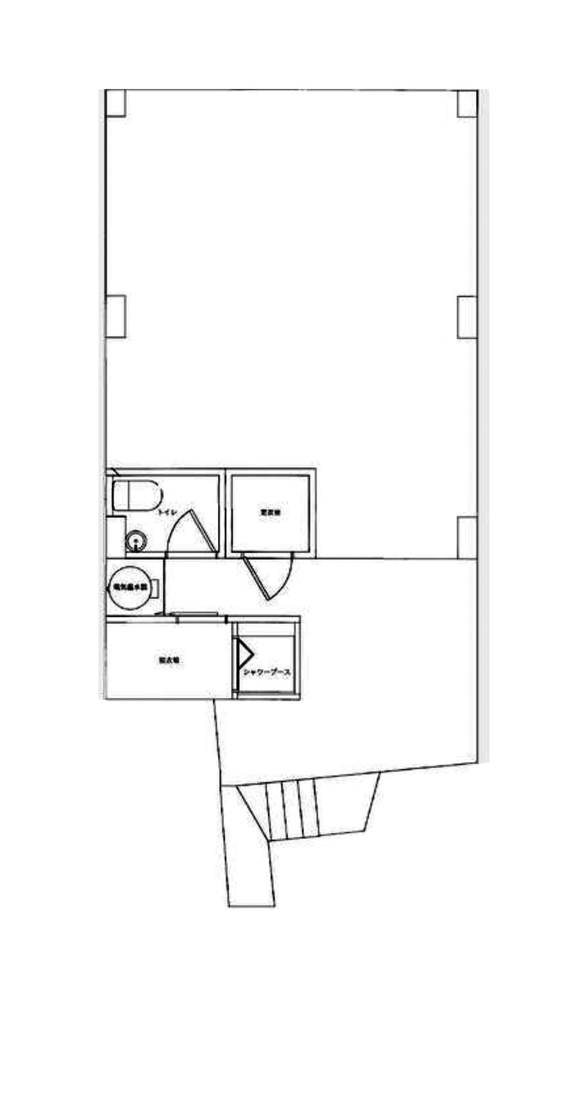
日比谷線「小伝馬町」駅のすぐそば、中央区の喧騒からほんの少しだけ距離を置いた場所。ここにあるのは、地下1階という非日常の白い空間です。 小さな階段を下りた先に広がるのは、地下1階の白い箱。モルタル床と白塗装の壁が続くワンフロアの部屋です。余計な装飾はなく、用途を限定しないフラットな余白が、そのまま魅力になっています。 キャンバスのような余白は、ジムやアトリエ、あるいはスタジオなど、用途を限定しない広さと静けさが魅力です。 階段幅の関係で、什器や大型機材の搬入には多少の工夫が必要になるかもしれません。ただ、それも含めて「どう使いこなすか」を考える余地が、この場所には残されています。 駅近という利便性と、地下という非日常。自分だけの世界をつくりたい人に向けた、少し変わった白い空間です。 ※重飲食は不可 |
![]() |
|
| 地下1階の白い空間。モルタル×白塗装で、質感がすでに出来上がっています |
|
| ジムやスタジオなどに向いてそうです |
|
| 階段は幅が狭いため、大きな什器は通らない可能性があります |
|
| トイレ |
|
|
| 賃料 | 27万5,000円(税込) | 専有面積 | 68.67㎡ |
| 保証金 | 6ヶ月 | 礼金 | なし |
| 償却 | なし | 管理費 | 74,800円(税込) |
| 所在地 | 中央区日本橋小伝馬町 | ||
| 交通 |
日比谷線「小伝馬町」駅 徒歩2分 都営新宿線「馬喰横山」駅 徒歩5分 総武快速線「新日本橋」駅 徒歩7分 |
||
| 建物構造 | 鉄筋コンクリート造 地下1階付き 7階建て | 所在階 | B1階 |
| 築年 | 1982年 | 取引態様 | 媒介 |
| 設備 | |||
| 備考 | ペット不可/定期借家契約(期間:5年間/再契約:相談)/原状回復不要/保証会社利用必須(初回保証料:月支払い総額の100%)/要火災保険契約 | ||
| 情報修正日時 | 2025年12月15日 | 情報更新予定日 | 2025年12月30日 |
※掲載の情報が現状と異なる場合には、現状を優先するものとします。
あなたにおすすめの物件


