|
|
|
||||||||||||||||||||
ピースフルな日常 |
||||||||||||||||||||||
|
||||||||||||||||||||||
|
||||||||||||||||||||||
|
||||||||||||||||||||||
|
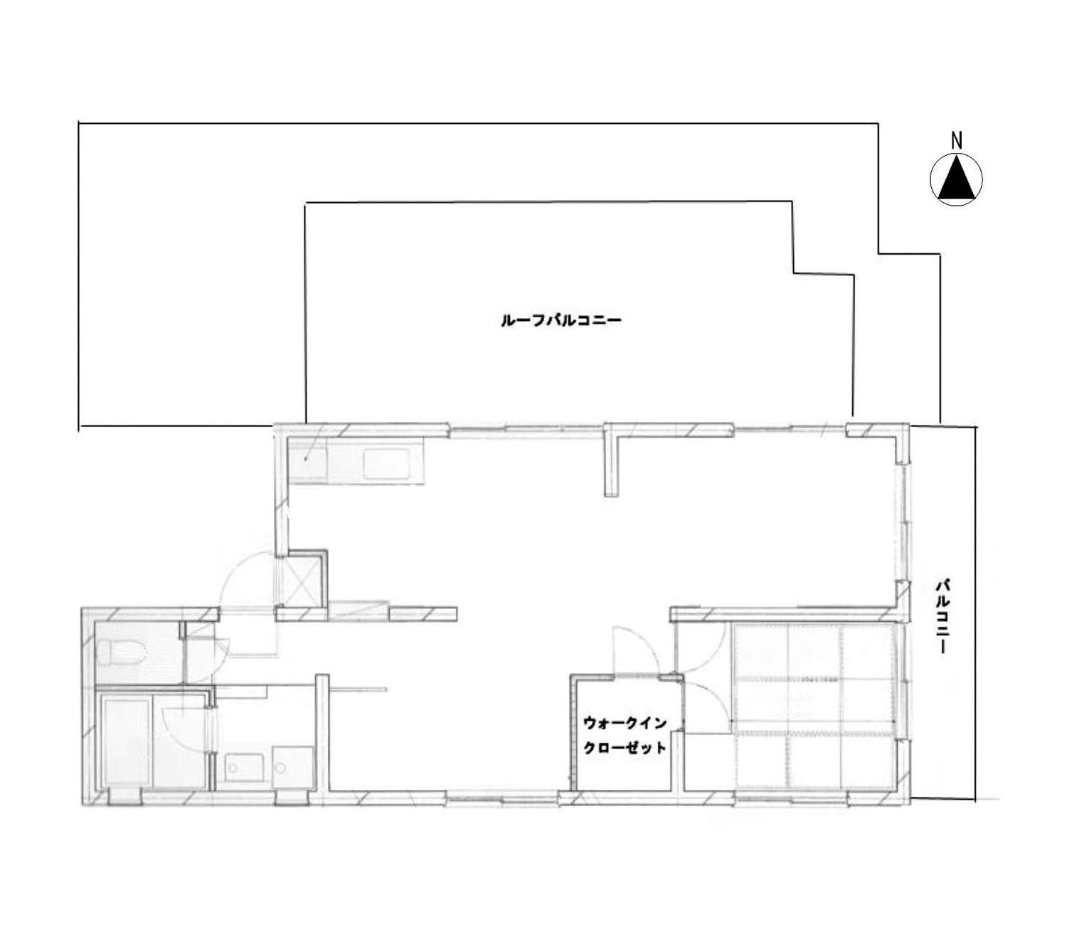
日常に彩りを添えてくれそうな、広くて見晴らしのいいルーフバルコニー。外からの視線も気にならない環境とあって、いつの間にか使わなくなったりせず、第2のリビングとして存分に活用できます。 この家でさらに伝えたいのが、「何はなくとも平和に過ごせそう」という確信めいた予感。健やかな暮らしに欠かせない日当たりと風通しがとてもよく、どこにいても明るく気分がいい上に、駅との行き来だけでも感じるこの町の穏やかな環境は、平和って言葉がぴったりです。 広いルーフバルコニーともう1つのバルコニーから望むのは、オーナーもお気に入りの公園の木々を見下ろす眺め。写真の紅葉から察する通り、1年を通して四季折々の景色を見せてくれると思います。 室内は開放的なつくりで、和室以外はゆるくひとつながりになっている1LDKに。どこで何をしていても互いに家族の気配を感じることができ、ワイドな窓のおかげで、ルーフバルコニーとの一体感も味わえます。 少し前に入れ替えたキッチンを除くと、全体的に経年変化はありますが、すぐ自分のものにしやすいざっくり感がかえって気楽だったり、ウォークインクローゼットと和室の小上がり収納も心強いです。 ハードルになりそうなことは主に2つ。 エレベーターがなく、4階まで(実質3.5階分)階段の上り下りが必要なことと、オーナーが使用していた家具家電等がそのまま付帯すること。テーブルとソファはうまく取り入れるとして、冷蔵庫/洗濯機/乾燥機あたりは、自分の物があると悩ましい選択かもしれません。 ちょうど買い替え予定だった人や、帰国したばかりで何も持ってないなんて人がいれば、お互いに好都合なんですけどいかがでしょう? 地に足ついたピースフルな日常をぜひ祖師ヶ谷大蔵で! 階段の先に楽しみが待っていますよ。 ※エレベーターなし・駐車場なし ※写真にある家具家電等は付帯します ※バルコニーの物置は使用できません |
![]() |
|
| 3方向に窓があり、日当たりと風通しはばっちりです |
|
| バルコニーとリビングは連続して一体的に使えます |
|
| 奥にあるオープンな洋室は2面ともにバルコニー |
|
| 公園の木々と遊び回る子どもたちを見渡す平和な眺め |
|
|
| 賃料 | 18万円 | 専有面積 | 60.30㎡ |
| 敷金 | 2ヶ月 | 礼金 | 1ヶ月 |
| 償却 | なし | 管理費 | 賃料に含む |
| 所在地 | 世田谷区砧 | ||
| 交通 | 小田急線「祖師ヶ谷大蔵」駅 徒歩7分 | ||
| 建物構造 | 鉄筋コンクリート造 4階建て | 所在階 | 4階 |
| 築年 | 1983年 | 取引態様 | 媒介 |
| 設備 | エアコン/床暖房/食洗機/ウォシュレット | ||
| 備考 | ペット不可/エレベーターなし/家具家電付き/保証会社利用必須/要火災保険契約 | ||
| 情報修正日時 | 2025年12月21日 | 情報更新予定日 | 2026年1月4日 |
あなたにおすすめの物件


