|
|
|
||||||||||||||||||||
つながりを生むリノベ団地 |
||||||||||||||||||||||
|
||||||||||||||||||||||
|
||||||||||||||||||||||
|
||||||||||||||||||||||
|
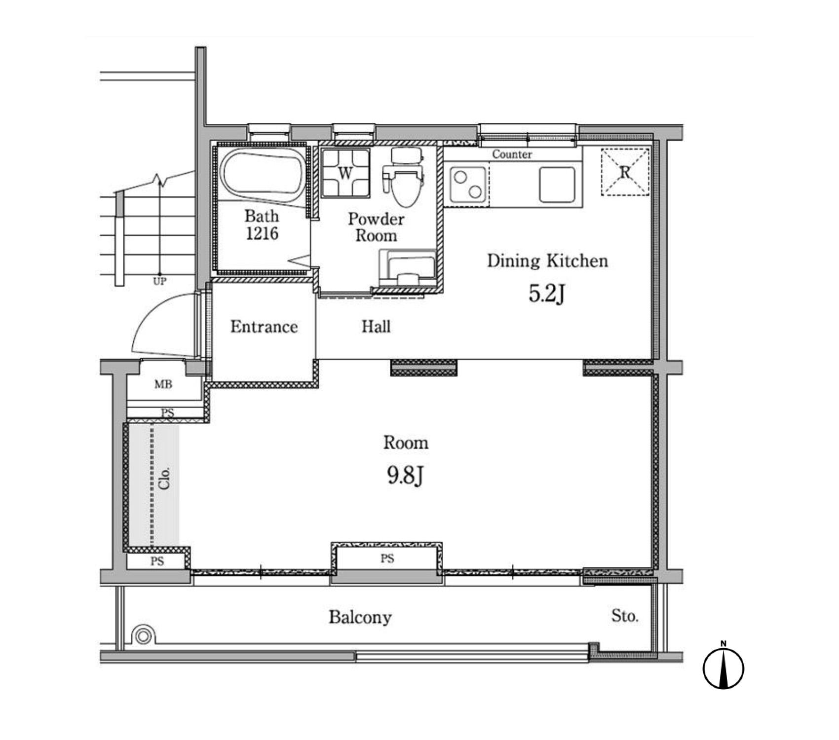
リノベーションによって生まれたのは、すてきな空間と、住人同士がゆるくつながれる環境でした。 ふたつ並んだ渋い団地を、まるごとリノベーション。コンクリートや合板をもちいた表情豊かな壁、無垢材のフローリングなど、素材同士がうまく調和した内装です。 合板と木毛セメント板の壁面は、DIYで手を加えることができます。事前に承諾を得ていれば、退去時に原状回復する必要はありません。好きな色に塗ったり棚をつけたりと、自分好みにアレンジできちゃいます。 そして普通のマンションとひと味違うのは、住人が広い敷地を面白く使っているところ。 例えば、友達を呼んでバーベキューしたり、ちいさな菜園で野菜を育てたり、建物の壁にプロジェクションマッピングして映画鑑賞を楽しんだり。暮らしにほどよい刺激を与えてくれそうです。 場所は足立区の東綾瀬。最寄りは北綾瀬駅ですが、バスや自転車を使えば綾瀬駅も利用可能です。新宿や渋谷まではおよそ40分と、都心へのアクセスは意外と悪くありません。さらに自転車で5分ほどの場所には、アートブックやレコードショップ、カフェが併設された「SKWAT」があって個人的にアツい立地です。 インターネットが無料で使えることや、ペットと暮らせる部屋があることなど、うれしい条件もそろっています。好奇心がくすぐられたなら、一度下見に行ってみませんか? ※2025年12月末までに申込の場合、礼金0円 ※募集区画一覧(いずれも同じ間取りで同じ面積) 306号室:賃料97,000円、ペット飼育相談可 412号室:賃料90,000円、ペット飼育不可 |
![]() |
|
| 306号室:ベランダからの景色 |
|
| 306号室:合板と木毛セメント板の部分は、事前の承諾を得ればDIYで手を加えられる |
|
| 306号室:ダイニングキッチン |
|
| 外観。ゆとりのある敷地を使って、住人同士のイベントが定期的に開かれている |
|
|
| 賃料 | 9万~9万7,000円 | 専有面積 | 37.35㎡ |
| 敷金 | 1ヶ月 | 礼金 | 1ヶ月 |
| 償却 | なし | 共益費 | 10,000円 |
| 所在地 | 足立区東綾瀬 | ||
| 交通 |
千代田線「北綾瀬」駅 徒歩13分 常磐線・千代田線「綾瀬」駅 徒歩18分 常磐線・千代田線「綾瀬」駅 バス5分 「東和一丁目」バス停 徒歩2分 |
||
| 建物構造 | 鉄筋コンクリート造 4階建て | 所在階 | 3~4階 |
| 築年 | 1964年 | 取引態様 | 媒介 |
| 設備 | エアコン/2口ガスコンロ/ウォシュレット/追いだき/宅配ボックス | ||
| 備考 | ペット相談可(種類は相談、412号室は不可)/定期借家契約(期間:2年/再契約:相談)/保証会社利用必須(初回保証料:月支払い総額の50%、継続保証料:月額1,000円~)/鍵交換費用:16,500円/半年未満の短期解約の場合、違約金1ヶ月/エレベーターなし/駐輪場あり(空きあり、無料~)/バイク置場あり(空きあり、月額1,100円~)/駐車場あり/シェア可/要火災保険契約 | ||
| 情報修正日時 | 2025年12月15日 | 情報更新予定日 | 2025年12月30日 |
あなたにおすすめの物件


