江戸川区篠崎町の賃貸物件/ゴルフ用の人工芝を敷き詰めた、ゆとりあるルーフバルコニー
江戸川区篠崎町の賃貸物件/最上階なので、上階からの視線を気にする必要はありません
江戸川区篠崎町の賃貸物件/ルーフバルコニーからは首都高が見えます
江戸川区篠崎町の賃貸物件/リビングを南に向かって
江戸川区篠崎町の賃貸物件/リビングは西側にも窓があって、午後も明るい。外にはベランダがあります
江戸川区篠崎町の賃貸物件/リビング西側にベランダ
江戸川区篠崎町の賃貸物件/ベランダからの眺めも抜けています
江戸川区篠崎町の賃貸物件/リビングを東に向かって。洋室をオープンにして広く使うこともできます
江戸川区篠崎町の賃貸物件/洋室①、4畳:こちらはエアコンがありません
江戸川区篠崎町の賃貸物件/洋室①、4畳:内側から
江戸川区篠崎町の賃貸物件/キッチンスペース。サイドにも窓があります
江戸川区篠崎町の賃貸物件/リビングを南に向かって
江戸川区篠崎町の賃貸物件/キッチン背面。真ん中が冷蔵庫置き場です
江戸川区篠崎町の賃貸物件/キッチン背面のパントリー内
江戸川区篠崎町の賃貸物件/IHコンロのキッチン
江戸川区篠崎町の賃貸物件/リビングを北に向かって
江戸川区篠崎町の賃貸物件/洋室②、6畳:エアコンが付いています
江戸川区篠崎町の賃貸物件/洋室②、6畳:収納はクローゼット
江戸川区篠崎町の賃貸物件/洋室③、5畳:こちらもエアコンあり
江戸川区篠崎町の賃貸物件/洋室③、5畳:収納はクローゼット
江戸川区篠崎町の賃貸物件/洗面所
江戸川区篠崎町の賃貸物件/浴室
江戸川区篠崎町の賃貸物件/トイレ
江戸川区篠崎町の賃貸物件/廊下
江戸川区篠崎町の賃貸物件/玄関
江戸川区篠崎町の賃貸物件/玄関外、共用部
江戸川区篠崎町の賃貸物件/外観

rent   NEW 住宅

空の下の芝生リビング

 
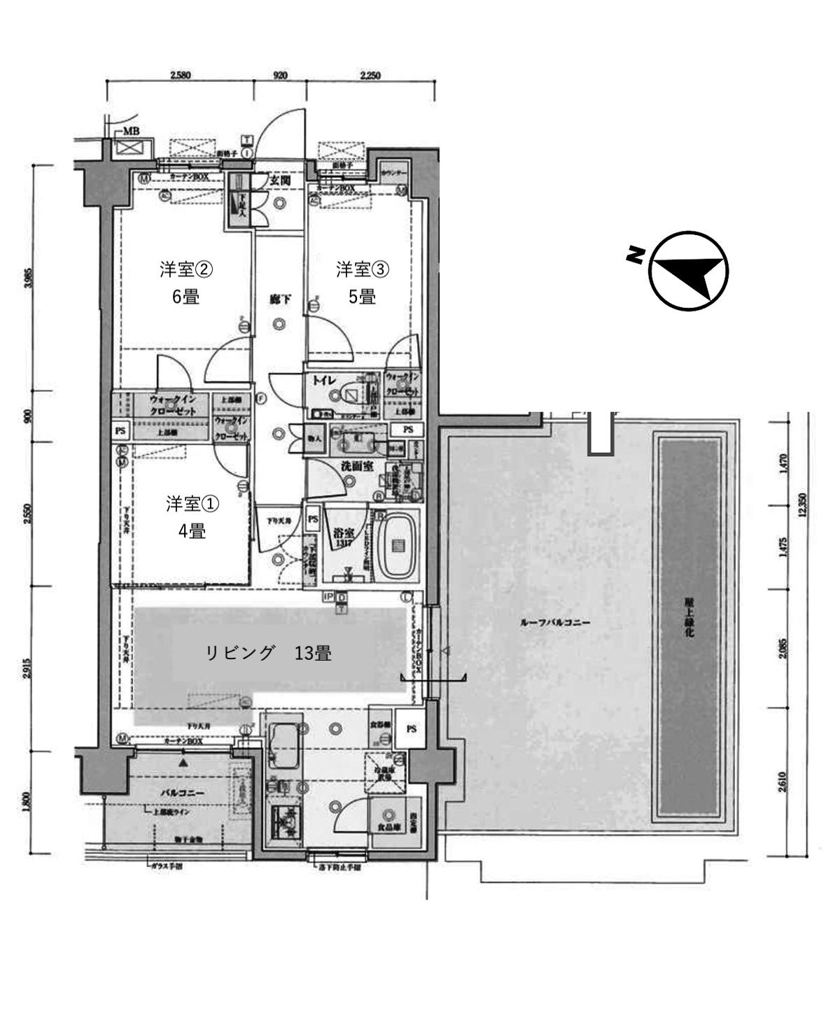
賃料:
20万円
面積:
65㎡
所在地: 江戸川区篠崎町
交通: 都営新宿線「篠崎」駅 徒歩9分
管理費 35,000円
敷 金 1ヶ月  礼金: 1ヶ月

青空の下に広がるのは、人工芝を敷いたルーフバルコニー。


このマンションの最上階の8階なので、上の階からの視線を気にせずにのびのび過ごせるのが魅力です。


晴れた日の日向ぼっこも、夕暮れを眺めながらの一杯も、ここなら気兼ねなく。


室内に入ると、リビングは南と西の2面採光。日中は電気いらずの明るさで、とても気持ちいい空間。


4畳の洋室は引き戸でつながっていて、開ければひとつの大きなリビングのような広がりに。シーンで形を変えられる間取りです。


内装は比較的新しく、水まわりの清潔感も十分。さらに、東側には個室が2部屋あり、それぞれにエアコン付き。ワークスペースや寝室など、用途に合わせてしっかり使えます。


ひとつ気になる点は、クローゼットがややコンパクトなところ。洋服が多い方は、ハンガーラックを置くなどの工夫が必要かもしれません。


そして最後に、大事な注意点も。首都高速が近いため、ルーフバルコニーでは走行音がしっかり聞こえます。室内は窓を閉めればだいぶ軽減されますが、静かな環境を求める方には向かない印象です。


それでも、最上階の開放感と光の良さ、そしてこのバルコニーの気持ちよさは、なかなか出会えない組み合わせ。外で過ごす時間が好きな人にはぐっと刺さる一部屋だと思います。

賃料 20万円 専有面積 65㎡
敷金 1ヶ月 礼金 1ヶ月
償却 なし 管理費 35,000円
所在地 江戸川区篠崎町
交通 都営新宿線「篠崎」駅 徒歩9分
建物構造 鉄筋コンクリート造 8階建て 所在階 8階
築年 2016年 取引態様 媒介
設備 エアコン3基/床暖房(リビング)/食洗機/追いだき/ウォシュレット/浴室乾燥機/エレベーター/オートロック/宅配ボックス
備考 ペット不可/駐輪場:月額200円/バイク駐輪場:月学1,200円/駐車場:月額13,000円/無料インターネット/保証会社利用必須(初回保証料:月支払い総額の50%、更新料:年額10,800円)/要火災保険契約
情報修正日時 2025年12月4日 情報更新予定日 2025年12月18日
※掲載の情報が現状と異なる場合には、現状を優先するものとします。