|
|
|||||||||||||||||||||
レトロな一棟をアジトに |
||||||||||||||||||||||
|
||||||||||||||||||||||
|
||||||||||||||||||||||
|
||||||||||||||||||||||
|
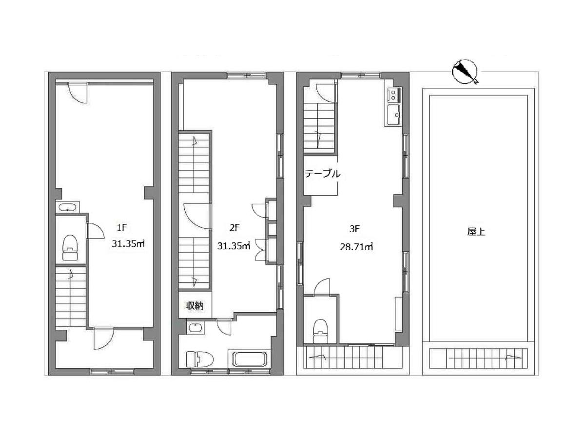
* キャンセルにつき再募集 * 自由気ままに使えるハコがほしいなら、こんなレトロな一棟ビルはいかがでしょう? 普段は制作に取り組むアトリエとして使いつつ、たまに1階で店を開いてみる。そんなマイペースな使い方が似合いそうなこの物件。 3階建ての室内には、サッと汗を流せる浴室や、ちょっとした料理ができるキッチンも付いています。設備類は基本的にすべて残置物で、現況のままの引き渡しになりますが、掃除さえすればすぐにでも使いはじめられそうな状態です。次の方に貸しやすい状態であれば、退去時の原状回復が免除されるのもうれしいところ。 手すりがやや心もとないですが、3階の外階段から屋上に上がることもできます。椅子に腰掛けてくつろいでいたら、ふと良いアイデアが浮かんでくるかもしれません。 東向島駅から徒歩7分ほどの立地。物件の近辺には、おいしい飲食店や自家製生ハムとナチュラルワインを扱う店があったりして、歩くほどに発見のある街です。 あまり費用はかけたくないけれど、気兼ねなく使えて、ある程度広さも欲しい。そんな願いをかなえるアジトを手に入れるチャンスです。 |
![]() |
|
| 店を始めるにはちょうどいい1階。トイレと洗面は出入口側にまとまっています |
|
| 作業場として使われていた3階。壁や床に残ったスプレー跡は、原状回復して引渡し予定 |
|
| 屋上。空が広くて気持ちいいです |
|
| 明治通り沿いに立つ、タイル張りのレトロビル |
|
|
| 賃料 | 19万8,000円(税込) | 専有面積 | 91.41㎡ |
| 敷金 | 2ヶ月 | 礼金 | 1ヶ月 |
| 償却 | 1ヶ月 | 管理費 | なし |
| 所在地 | 墨田区東向島 | ||
| 交通 |
東武伊勢崎線「東向島」駅 徒歩7分 京成押上線「京成曳舟」駅 徒歩14分 |
||
| 建物構造 | 鉄骨造 3階建て | 所在階 | |
| 築年 | 1981年 | 取引態様 | 媒介 |
| 設備 | |||
| 備考 | ペット不可/保証会社利用必須(初回保証料:月支払い総額の100%、更新料:年額10,000円~)/契約事務手数料:5,500円/現況引き渡し/設備類は全て残置物扱い/住居利用不可/1階・路面/要火災保険契約 | ||
| 情報修正日時 | 2025年11月29日 | 情報更新予定日 | 2026年3月22日 |
あなたにおすすめの物件


