|
|
|||||||||||||||||||||
ノイジーな交錯場【住居】 |
||||||||||||||||||||||
|
||||||||||||||||||||||
|
||||||||||||||||||||||
|
||||||||||||||||||||||
|
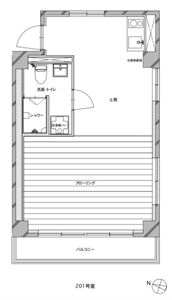
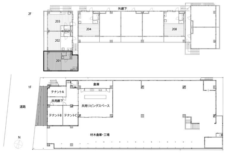
JR横浜線「鴨居」駅から少し歩いたところに立つ、建設会社の木材倉庫・加工場・共同住宅が5年前に大々的にリノベーションされました。この物件の立つ横浜市都筑区池辺町(いこのべちょう)は中原街道が通り、住宅街のほか、工場・倉庫が多く、物件の徒歩2分のところには「ららぽーと横浜」もあります。第三京浜港北ICも約2.4kmのところにあるので、車でのアクセスも良いです。 「創・職・住」をつなぐ新たなものづくり拠点として誕生した「THE GUILD IKONOBE NOISE(ザ・ギルド イコノベ ノイズ、以下「THE GUILD」)」は1階部分にテナント3つ・加工場・倉庫・キッチン付きの共用リビングスペース、2階部分に複合用途(オフィス、アトリエ等)使いできる住居が複数部屋(リノベーションされた住戸が7部屋、今回募集は1部屋)ある構成になっています。 THE GUILDの最大の特徴は共用リビングスペースと工房が使える点です。現地に到着すると建物から大胆に張り出した鉄骨フレームに目を奪われます。その無機質な鉄骨フレームとは対照的に1階のテナント前はウッドデッキと木ガラス戸で暖かい印象を受けます。そこから共用廊下(共用のトイレ・洗面器あり)を抜けて奥に進むと、共用リビングスペースと工房があります。 共用リビングスペースは壁一面に造作棚があり、その下にキッチン、その前に長いテーブルが設置されています。ワークスペース以外にワークショップやイベントも出来る様にデザインされた大きな空間は天井が高く、余白がたっぷりあるので、入居者と運営者で時間をかけて、素敵な空間に育ててもらいたいです。 DIY用工具(電動工具、木工道具など)も用意されているので、思い思いのモノを作ってください。細かい運用ルールがあるので、現地にてご説明させていただきます。 さて、2階の住戸(今回募集は201号室)はリノベーションされ、大きめのワンルームになります。住居以外にもワークスペースやアトリエなどにも使っていただけます。室内は駆体が露わになっているところや合板などのシンプルな素材で仕上げられています。キッチン以外の水回りは一箇所にまとまっていて、お風呂はなく、潔くシャワーブースのみです。 THE GUILDでは「創・職・住」が密接に関わり合い、入居者は自分だけでない他者と交わることで起こる化学反応を楽しめる気がします。個々の発するノイズが混じり合うことで生み出される新しい価値によって、THE GUILDだけでなく、この地域やこれからの働き方、住み方がより良い方向に向かうと思うので、良い意味で個性的でノイジーな方、お待ちしてます! |
![]() |
|
| 1階テナント部分は木ガラス戸とウッドデッキの組み合わせで、温かい印象です |
|
| 天井が高いキッチン付きの共用リビングスペースは広々としています |
|
| 長いテーブルはみんなで囲んで、いろんなことが出来そうです |
|
| 大きな造作の棚は長い時間をかけて、いろいろなモノをレイアウトしていって欲しいです |
|
|
| 賃料 | 9万円 | 専有面積 | 37.50㎡ |
| 敷金 | 1ヶ月 | 礼金 | 1ヶ月 |
| 償却 | なし | 共益費 | 5,000円 |
| 所在地 | 横浜市都筑区池辺町 | ||
| 交通 | 横浜線「鴨居」駅 徒歩9分 | ||
| 建物構造 | 鉄筋コンクリート造 2階建て | 所在階 | 2階 |
| 築年 | 1984年 | 取引態様 | 媒介 |
| 設備 | IHコンロ/洗面器/トイレ/シャワーブース/洗濯機置場/エアコン | ||
| 備考 | ペット不可/共益費に共⽤リビングスペース使⽤料及びWi-Fi使⽤料含む/住居以外の使用用途の場合は賃料等に消費税がかかります、また共益費は16,500円(税込)になります/写真は前回募集時のものです/要火災保険契約 | ||
| 情報修正日時 | 2025年12月4日 | 情報更新予定日 | 2026年3月19日 |
あなたにおすすめの物件


