|
|
|
||||||||||||||||||||
べランディング「も」楽しもう! |
||||||||||||||||||||||
|
||||||||||||||||||||||
|
||||||||||||||||||||||
|
||||||||||||||||||||||
|
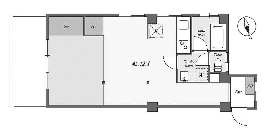
経年の味わいを残しつつ、ナチュラルな雰囲気にリノベーション。 大きなひとつの空間は、カーテンでゆるやかに分けることも可能。普段は開け放してのびやかに使い、落ち着きたいときは閉めてこもる。その日の気分やシーンに応じて使い分けることができます。 そしてちょっぴり広いベランダが、個人的なお気に入りスポット。奥行きがあるので、椅子やテーブルを出すことができます。夏はビール片手にべランディング、なんだか楽しげな予感がします。 建物は古いものの、外観や共用部はリニューアルされ、落ち着いた印象に。ちなみに耐震診断を行い、現行法の耐震基準を満たした建物という診断結果が出ています。 落合南長崎駅からは徒歩10分ですが、ここはバスが便利。建物近くのバス停と目白駅をつなぐバスが、比較的短いスパンで運行しています。 目白通り沿いにはスーパーや個人商店、いい雰囲気の飲食店が多く、生活がしやすそう。休日は自転車で近くを散策なんていかがでしょうか。 ※写真は全て前回募集時のもの |
![]() |
|
| 奥行きのあるベランダがうれしい |
|
| 窓側からの視点 |
|
| キッチンのタイルがかわいらしい。写真真ん中のドアは洗面室へ繋がります |
|
| 外観。白とブラウンの色合いがいい感じ。家族で入居している方もいるので、晴れた日は洗濯物が多めです。 |
|
|
| 賃料 | 12万5,000円 | 専有面積 | 46.12㎡ |
| 敷金 | 1ヶ月 | 礼金 | 1ヶ月 |
| 償却 | なし | 管理費 | 5,000円 |
| 所在地 | 豊島区南長崎 | ||
| 交通 |
都営大江戸線「落合南長崎」駅 徒歩10分 西武池袋線「椎名町」駅 徒歩10分 山手線「目白」駅 バス8分 「南長崎二丁目」バス停 徒歩2分 |
||
| 建物構造 | 鉄筋コンクリート造 5階建て | 所在階 | 2階 |
| 築年 | 1972年 | 取引態様 | 媒介 |
| 設備 | エアコン/ガスコンロ2口/ウォシュレット | ||
| 備考 | ペット不可/保証会社利用必須(初回保証料:月支払い総額の50%〜、更新料:年額10,000円~)/駐輪無料/エレベーターなし/要火災保険契約 | ||
| 情報修正日時 | 2025年11月18日 | 情報更新予定日 | 2025年12月3日 |
※掲載の情報が現状と異なる場合には、現状を優先するものとします。
あなたにおすすめの物件


