世田谷区世田谷の賃貸物件/ホームからも見える駅前立地、店の顔は北欧テイストの外観をうまく生かせそう
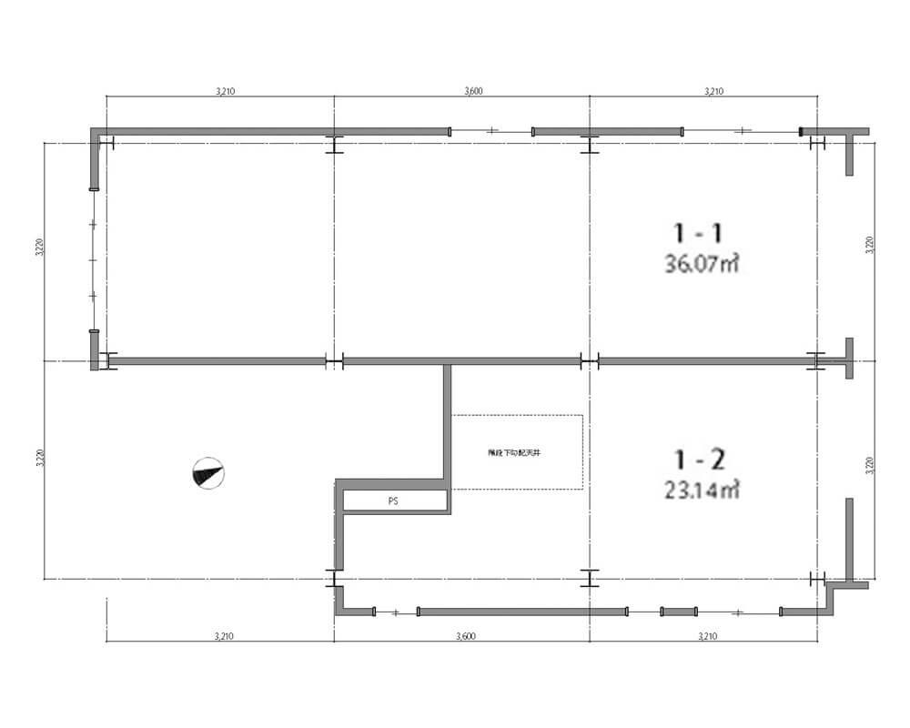
世田谷区世田谷の賃貸物件/1-2:小さく始めてみたいなら左側の区画がいい感じ
世田谷区世田谷の賃貸物件/1-2:奥の凹みはトイレ設置にちょうどいいサイズ
世田谷区世田谷の賃貸物件/1-2:入居時スケルトン渡し、退去時スケルトン返し
世田谷区世田谷の賃貸物件/1-2:倉庫感を生かして軽めの内装で済ませることも
世田谷区世田谷の賃貸物件/店を出ると目の前は世田谷線、電車を待つ人と目が合います
世田谷区世田谷の賃貸物件/おとなりは行列の絶えないパン屋さん、町の顔になるこの場所で暮らしに寄り添う店ができたらうれしいです
世田谷区世田谷の賃貸物件/1-1:右側は奥行のある区画、細長い空間をうまく使いこなせたら
世田谷区世田谷の賃貸物件/1-1:突き当たりの窓の先はおとなりの建物です
世田谷区世田谷の賃貸物件/1-1:天井高は約3m、少し床を上げたり天井を張ることも
世田谷区世田谷の賃貸物件/1-1:入口は全面ガラス張りにすると気持ちがよさそう
世田谷区世田谷の賃貸物件/店前のスペースの使い方はオーナーと相談しながら進めましょう
世田谷区世田谷の賃貸物件/赤い小屋とシンボルツリーが映えるキャッチーな外観です
世田谷区世田谷の賃貸物件/世田谷線ならではのほっこり感が漂う町、車通りは少なめで人や自転車が行き交う通りに面しています

rent   NEW 店舗・その他

車窓から見えるあの店で

 
賃料:
20万9,000円~33万円 (税込)
面積:
23.14㎡~36.07㎡
所在地: 世田谷区世田谷
交通: 世田谷線「松陰神社前」駅 徒歩1分
管理費 なし
保証金 6ヶ月  礼金: 1ヶ月

この町に長く暮らす大家さんの一番の願いは、

地域の人に愛され続けるような、暮らしに寄り添う店を迎えること。


北欧のデザインをヒントに改修したばかりの建物は、1階を住居から店舗に初めて転用し、新しい出会いをいまかいまかと待ち侘びます。


場所は松陰神社前。住宅街をゆっくりと進む世田谷線は、電車に揺られる時間がどこか懐かしく、車窓からの発見も楽しい路線です。


中でも松陰神社前は気になる店が年々増えていて、長く続く店と新しい店がいい具合に共存し、住宅地としても人気のある町。この店は駅の目の前で、ホームからも車窓からも目に入る好位置にあります。


おとなりにある行列の絶えないパン屋さんは、世田谷線ユーザーなら知らない人はいないのでは? 駅前というだけでなく、あの店のとなりと言えばすぐに伝わりそうなのも、開業の心強いポイントです。


小ぶりの店舗ではあるものの、スケルトンの引き渡しでトイレなど水まわりの設置から必要なため、工事費用はある程度の負担が見込まれますが、店づくりを一からこだわりたい人には自由の利く箱。倉庫のような雰囲気を生かして中はざっくりと仕上げ、入口だけ気合を入れ世界観を表現するスタイルでも成立するかもしれません。


カフェや古着屋さんなどは飽和気味の町なので、できればこの町に足りていない業態で、地域の人の暮らしに寄り添う店に入ってもらえたらというのが大家さんの希望。我こそはの提案を待っています!


※重飲食は不可

※2区画一括貸しも相談可


・1-1区画 36.07㎡(10.91坪)/賃料 330,000円(税込)

・1-2区画 23.14㎡(6.99坪)/賃料 209,000円(税込)



賃料 20万9,000~33万円(税込) 専有面積 23.14㎡~36.07㎡
保証金 6ヶ月 礼金 1ヶ月
償却 1.1ヶ月(退去時) 管理費 なし
所在地 世田谷区世田谷
交通 世田谷線「松陰神社前」駅 徒歩1分
建物構造 鉄骨造 3階建て 所在階 1階
築年 築年不詳 取引態様 媒介
設備 なし
備考 ペット不可/定期借家契約(期間:3年間/再契約:相談)/募集戸数:2戸/保証会社利用必須/退去時スケルトン返し/1階・路面/飲食店可(重飲食は不可)/要火災保険契約
情報修正日時 2025年11月21日 情報更新予定日 2025年12月5日
※掲載の情報が現状と異なる場合には、現状を優先するものとします。