|
|
|
||||||||||||||||||||
曲面の存在感 |
||||||||||||||||||||||
|
||||||||||||||||||||||
|
||||||||||||||||||||||
|
||||||||||||||||||||||
|
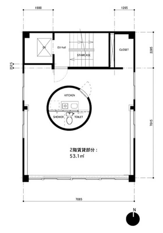
仕事柄、リノベーション的な事に関わることは多いんですが、曲面を使うのってなかなか勇気要りますよね。 平面的に考えると、どうしても使いにくいんじゃないか、とかデッドスペース増えちゃうんじゃないか、とか。空間的な面白さを考える一方で、効率も大事にしようとすると、曲面を使うのってなかなかできないんです。 今回ご紹介するのは、部屋の真ん中に巨大な木の柱みたいな、象徴的な壁が存在感を主張する物件です。自分だったらつくれないだろうな、と素直に思う空間。2階部分、ワンフロアの募集です。 部屋のドアを開けると、曲面の壁が目の前に登場し、その壁沿いに進むと、開けた空間が広がります。南側が大きな窓面になっているので明るく開放的で、部屋に入った瞬間の、少し閉じた印象とのギャップが楽しめます。 東西の壁は一面の棚。部屋の奥に物置スペースもあるので、収納には当分困ることがなさそうです。丸い壁の中に、ミニキッチン、トイレ、シャワーブースがあります。 この丸い空間はデザイン的なもの、というだけではなく、実は構造補強としての役割もあるとのこと。デッドスペースになってしまう部分もありますが、空間的な面白さもやっぱりあるんだなと思いました。長所、短所を理解した上で、楽しみながら使ってもらえたらと思います。 元々は建築家のオーナーさんが自分の事務所として使っていたお部屋です。リノベしてから20年近く経つので、空間や設備にそれなりの使用感があります。そもそも古い建物なので、その辺もご理解の上、使ってもらえたらと思います。 場所は東日本橋。僕もこの町に10年以上住んでいますが、ほんとに便利な場所です。路線も複数使えるし、浅草線を使えば、羽田も成田も電車一本。東京駅も自転車でストレスなく行けるような距離感。最近はスーパーも増えてちょっとした買い物も便利になりましたし、近所においしいパン屋さんやカフェもできました。 用途は原則事務所利用のみになります。ただ、シャワー、トイレがあるので、住もうと思えば住むこともできます。とは言え洗濯機置場がないので、事務所で使って時々寝泊まりする、くらいが現実的かも。便利な場所なので、東京進出の拠点として使うのもいいんじゃないかと思います。 |
![]() |
|
| 南向きの窓面が大きく明るい室内 |
|
| 黒い壁は左右にスライドします |
|
| 巨大な木の幹みたい |
|
| この中に水回りがあります |
|
|
| 賃料 | 22万円(税込) | 専有面積 | 53.10㎡ |
| 保証金 | 4ヶ月 | 礼金 | 1ヶ月 |
| 償却 | 1ヶ月 | 管理費 | 11,000円(税込) |
| 所在地 | 中央区東日本橋 | ||
| 交通 |
都営浅草線「東日本橋 」駅 徒歩2分 都営新宿線「馬喰横山」駅 徒歩2分 総武快速線「馬喰町」駅 徒歩4分 都営浅草線「浅草橋」駅/総武線「浅草橋」駅 徒歩9分 |
||
| 建物構造 | 鉄骨造 6階建て | 所在階 | 2階 |
| 築年 | 1970年 | 取引態様 | 媒介 |
| 設備 | エアコン/シャワー/トイレ/ミニキッチン/エレベーター | ||
| 備考 | ペット不可/募集戸数:1戸/禁煙/土足利用禁止/要火災保険契約/貸主インボイス登録済 | ||
| 情報修正日時 | 2025年11月14日 | 情報更新予定日 | 2025年11月28日 |
あなたにおすすめの物件


