|
|
|
||||||||||||||||||||
白の中のレトロな輪郭 |
||||||||||||||||||||||
|
||||||||||||||||||||||
|
||||||||||||||||||||||
|
||||||||||||||||||||||
|
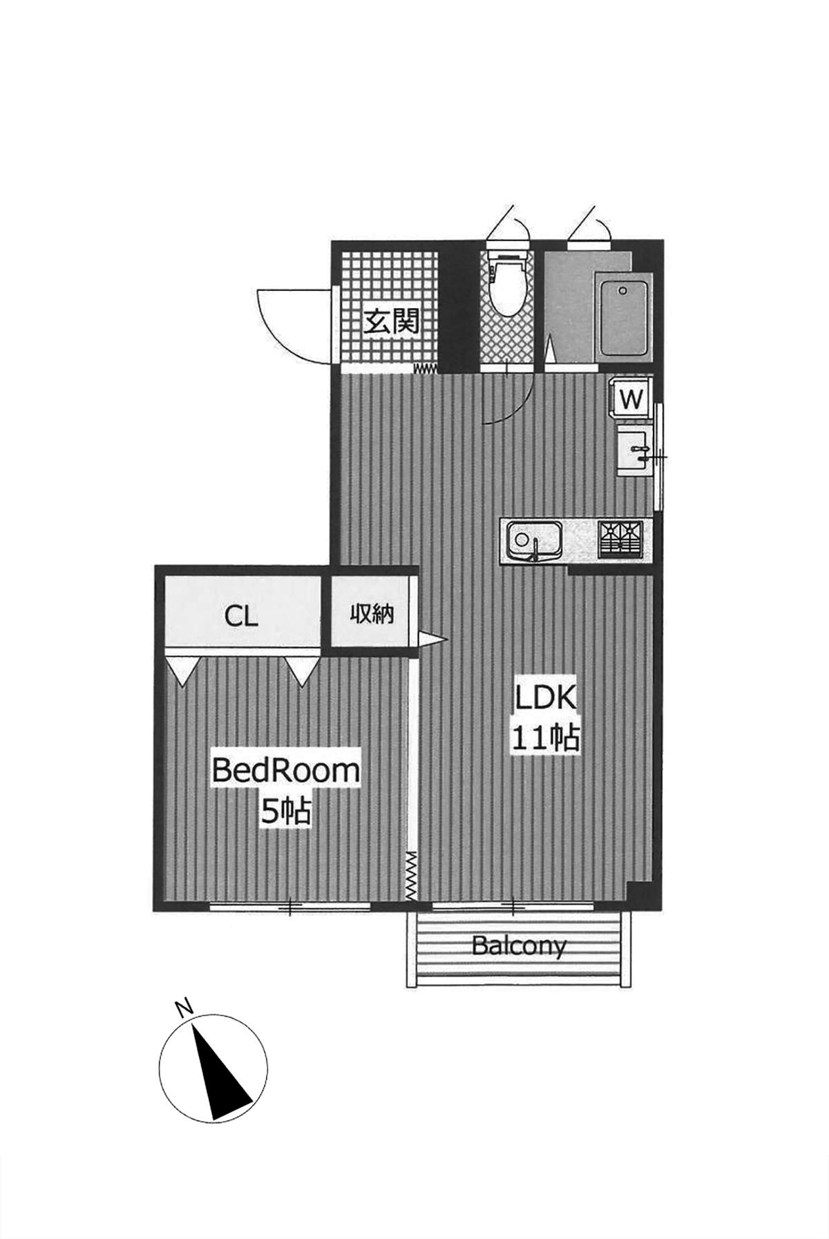
池尻大橋駅から歩いて5分。大通りから少し入った先、静かな住宅街の一角に、白くてレトロなマンションがあります。 今回ご紹介するのは、その2階のお部屋。外観こそ昔ながらの雰囲気ですが、中に入ると、長年の時間をいい具合に受け止めた“こなれ感”のある空間が広がっています。 少しずつ改装を重ねてきた室内は、白塗装で統一された爽やかな印象。壁も天井も、そして古い建具まで、まるっと白塗装。 そこに木目調のフロアタイルが加わって、やわらかい光が床に落ちる様子がなんとも心地いい。 浴室はリニューアル済みで、ちょっと丸っこい浴槽がかわいらしいポイント。古さを残しながらも、ちゃんと暮らしやすいバランスに仕上がっています。 細かい注意点を挙げるなら、リビングと寝室を仕切る建具の高さが約175cmと、かなり低め。背の高い方は、頭上に気をつけてお過ごしください。 一方で、しっかり気になるポイントが2つ。 ひとつは、南側の通りを挟んで向かいに墓地があること。どの部屋からも視界に入る位置なので、苦手な方には少し難しいかもしれません。もうひとつは、玄関ドアの上半分がすりガラスになっていること。気になる方は、目隠しをひと工夫するとよさそうです。 白く塗り直された空間に、昔ながらの素材の温かみが残るこの部屋には、ゆっくりとした時間が流れています。 写真では伝わらない“空気の柔らかさ”を、ぜひ現地で感じてみてください。 ※写真はすべて前回募集時のものです。 |
![]() |
|
| 南側の窓に向かって |
|
| ベランダからの眺め。墓地が見えます |
|
| リビングと寝室はアコーディオンカーテンで区切ることができます |
|
| 寝室の収納 |
|
|
| 賃料 | 13万5,000円 | 専有面積 | 35.48㎡ |
| 敷金 | 1ヶ月 | 礼金 | 1ヶ月 |
| 償却 | 1ヶ月 | 管理費 | なし |
| 所在地 | 世田谷区池尻 | ||
| 交通 | 東急田園都市線「池尻大橋」駅 徒歩5分 | ||
| 建物構造 | 鉄筋コンクリート造 3階建て | 所在階 | 2階 |
| 築年 | 1973年 | 取引態様 | 媒介 |
| 設備 | エアコン1基/ウォシュレット | ||
| 備考 | ペット可/保証会社利用必須(初回保証料:月支払い総額の50%、更新料:年額10,000円)/鍵交換代:実費/更新事務手数料:新賃料の50%/要火災保険契約 | ||
| 情報修正日時 | 2025年11月10日 | 情報更新予定日 | 2025年11月24日 |
あなたにおすすめの物件


