|
|
|
||||||||||||||||||||
神泉のシェアオフィスのソノサキ |
||||||||||||||||||||||
|
||||||||||||||||||||||
|
||||||||||||||||||||||
|
||||||||||||||||||||||
|
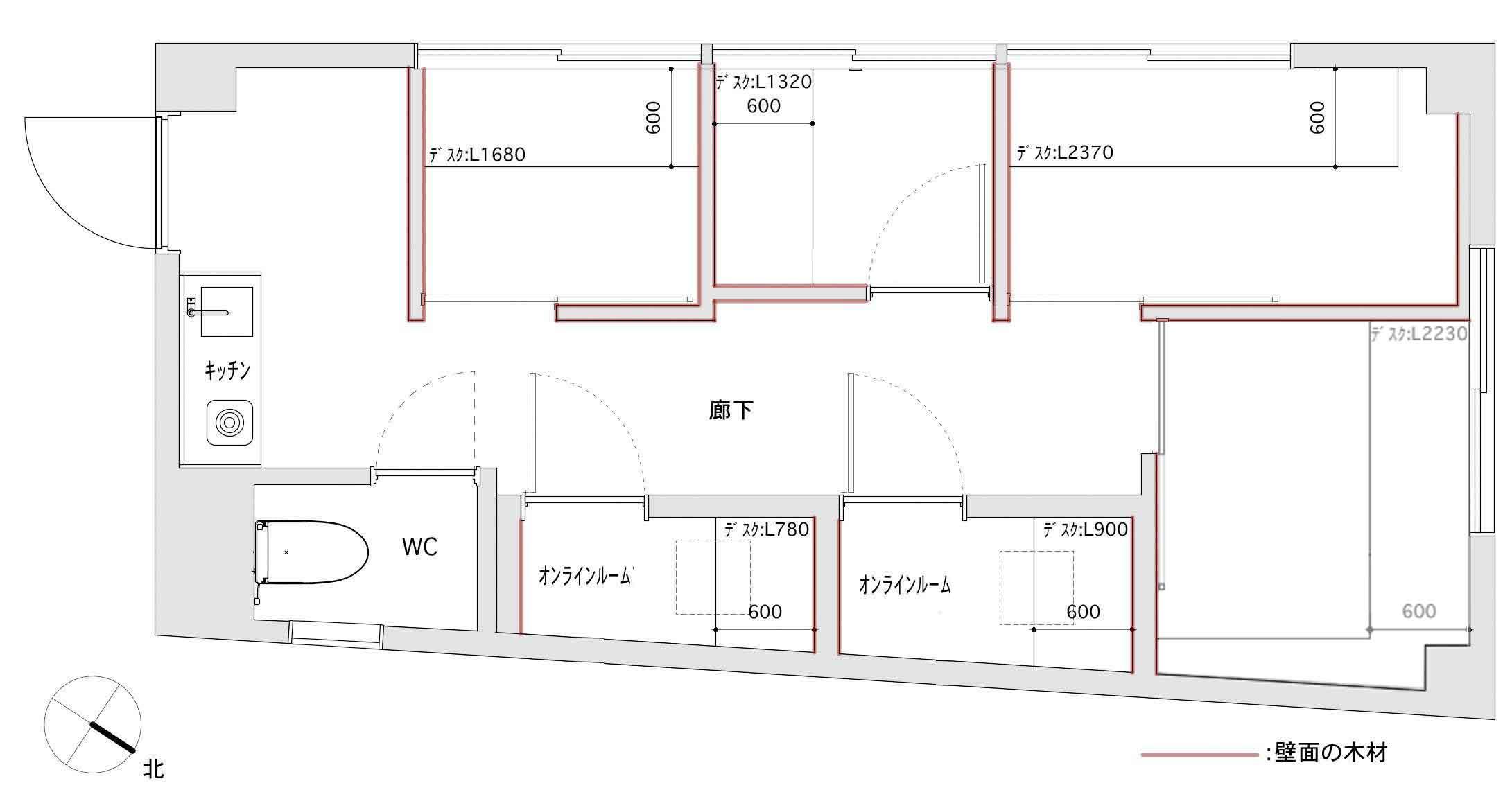
ビルのワンフロアを、コンパクトな個室に区分けしてつくったオフィスを居抜きで募集。 もともとは、設計事務所さんが、この場所をつくり、シェアオフィスとして運営していました。その営業を終えたあと、今の借主さんがその内装を引き継いで、自社オフィスとして利用していましたが、拠点を違うエリアに変えるため、次の借手として、この内装を引き継いでくれる方を募集します。 1フロア1区画のコンパクトビルの最上階、3階のワンフロア。渋谷に近い環境ながら、静かで、のどかな空気感を感じる場所です。 少人数でオフィスとして使うのに程よいスペースで、手頃な賃料。木の壁にモルタルの床など、カジュアルな内装になっているのも魅力的です。 この内装や細かい間仕切りは、新たな借主にて変えることは可能ですが、まずは現在の状態を説明しますね。 28㎡の中には、1〜2名でコンパクトにつかえる個室が4部屋に、防音工事をしてつくったオンラインルームが2つ。トイレとミニキッチンという構成。エアコンは中央に1基業務用のものが配置され、各個室は換気のファンによって、エアコンの冷気・暖気を回すようなつくりです。 エアコン・トイレ・ミニキッチン等は貸主さんの設備で、それ以外の間仕切り設置や内装仕上げは前の借主さんが行ったものになります。 この場所を新たに使うにあたっては、この個室を残して使うもよし、いくつか個室を繋げて広めの空間をとるのもいいかと思います。防音室以外の間仕切り壁は、撤去しやすい施工になっています。 退去時の原状回復は、前の借主さんが入居される前の状態(間仕切り撤去、床の長尺シートや壁紙の仕上げ直し、照明器具の復旧など)に原状回復をしていただく必要がありますので、その点はご理解を。ただ、設計士さんがつくった内装を、造作譲渡費用などなく、借りられるのは嬉しい部分では?また退去の際には、再度この場所を引き継いでくれる方を探すという手もありです。 今の借主さんのオフィス利用は継続中ですが、随時ご案内は可能です。なお、2026年1月頃には間仕切りの解体工事などの手配を進めてしまうため、この内装を引き継ぎしたい場合には、お早めにご検討を! ※契約開始は2026年2月上旬から可能 ※写真は以前撮影のもの |
![]() |
|
| 木のデスクが造作されているので、フットワーク軽く入居したい方に嬉しい |
|
| 廊下。左手と正面に個室が4部屋。右手にトイレと2つのオンラインルーム |
|
| 防音仕様につくられたオンラインルーム |
|
| ちいさなビルの3階部分 |
|
|
| 賃料 | 12万1,000円(税込) | 専有面積 | 28.60㎡ |
| 保証金 | 3ヶ月 | 礼金 | 1ヶ月 |
| 償却 | なし | 管理費 | なし |
| 所在地 | 渋谷区神泉町 | ||
| 交通 |
山手線「渋谷」駅 徒歩11分 井の頭線「神泉」駅 徒歩4分 |
||
| 建物構造 | 鉄骨鉄筋コンクリート造 3階建て | 所在階 | 3階 |
| 築年 | 1991年 | 取引態様 | 媒介 |
| 設備 | エアコン/トイレ/ミニキッチン(電気コンロ1口) | ||
| 備考 | エレベーターなし/保証会社利用必須(初回保証料:賃料の100%、年間保証料:10,000円)/シェア可/要火災保険契約/貸主インボイス登録済 | ||
| 情報修正日時 | 2025年11月13日 | 情報更新予定日 | 2025年11月27日 |
あなたにおすすめの物件


