|   |   |  住宅 | ||||||||||||||||||||
| 3年後のあなたへ | ||||||||||||||||||||||
| 
 | ||||||||||||||||||||||
| 
 | ||||||||||||||||||||||
| 
 | ||||||||||||||||||||||
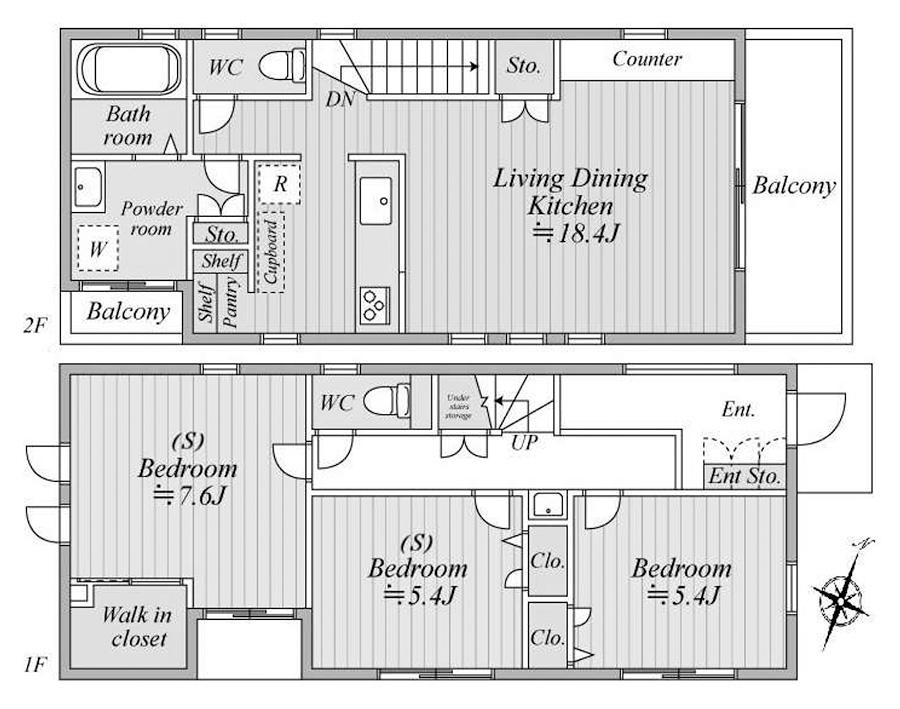
| 3年後、どこに住んでいますか? この問いに答えが出ていないなら、この物件は面白い選択肢になるかもしれません。田園調布と聞いて想像する「格式高い邸宅街」のイメージとは、ちょっと違う。この家が持つ魅力は、肩肘張らない居心地よさだと思います。 つくりは2階建ての1LDK+2S。メインのLDKは2階に配置され、勾配天井と化粧梁が目を引く開放的な空間。最大で約3m以上ある天井高と、高窓から差し込む自然光が気持ちいい。キッチンからリビング、そしてバルコニーへと視線が抜けるつくりで、家族の気配を感じながら過ごせる距離感がいいバランスだなと。 1階の寝室は7.6畳と5.4畳の2部屋。ウォークインクローゼットもあり収納力は十分。子ども部屋として、書斎として、趣味部屋として。家族と暮らしながらも、ちゃんと一人になれる空間があることの大切さを、実感してもらえるかなと。 全室に使われた無垢フローリングは、材特有の節が表情をつくり、裸足で歩くと思わずニヤけてしまう心地よさ。お子さんが駆け回るにも、在宅ワークで一日中過ごすにも、優しく受け止めてくれる床です。 キッチンは冷蔵庫などの調理家電の置き場にもゆとりがある対面式。シンプルで使いやすさ、収納も満足してもらえそう。水回りも使い勝手よく、浴室は追い焚きと浴室乾燥機完備で、梅雨時も安心です。トイレは各階にあり、忙しい朝の時間にも余裕が持てそうです。 周りに高い建物がない閑静な住宅街。徒歩圏には「せせらぎ公園」「多摩川台公園」、多摩川の水辺も近く、自然を感じやすい環境です。日々の買い物は徒歩4分の「まいばすけっと」で、週末のまとめ買いは徒歩10分の「オーケー」で。落ち着きと利便性、両方手に入る立地です。 定期借家契約3年で再契約は相談ですが、これから住宅購入を考えている方や、お子さんの進学までの期間をこの環境で過ごされたい方には、ちょうどいい選択肢。なお、貸主が海外在住のため、法人契約の場合は源泉徴収の手続きが必要となります。 自然と木の温もりに包まれる、田園調布の暮らし。気になる方はぜひ。 | 
|  | 
|   | 
| キッチン側から見たLDK。アクセントウォールのターコイズブルーが、木の温もりを引き立てる | 
|   | 
| 家族の気配を感じながら、それぞれの時間を過ごせる | 
|   | 
| 2階バルコニーからの眺め。高い建物がなく、空が広い。閑静な住宅街の落ち着いた雰囲気 | 
|   | 
| オフホワイトの外壁が落ち着いた印象の戸建て。駐車場1台分付き | 
|  | 
| 賃料 | 33万円 | 専有面積 | 91.18㎡ | 
| 敷金 | 2ヶ月 | 礼金 | 1ヶ月 | 
| 償却 | なし | 管理費 | なし | 
| 所在地 | 大田区田園調布 | ||
| 交通 | 東急東横線・東急多摩川線「多摩川」駅 徒歩8分 | ||
| 建物構造 | 木造 2階建て | 所在階 | |
| 築年 | 2017年 | 取引態様 | 媒介 | 
| 設備 | エアコン4基/IHコンロ3口/食器洗浄機/追いだき/ウォシュレット | ||
| 備考 | ペット不可/定期借家契約(期間:3年/再契約:相談)/保証会社利用必須(初回保証料:賃料の100%、月額保証料:賃料の1%、口座振替手数料:440円)/24時間サポート:16,500円(税込/2年分)/フローリングのワックスがけは不可/喫煙不可/ブラインドは残置物扱い(無断撤去不可)//駐車場あり/要火災保険契約 | ||
| 情報修正日時 | 2025年10月31日 | 情報更新予定日 | 2025年11月15日 | 
 あなたにおすすめの物件
 あなたにおすすめの物件
 
 
 
 
  
  
  
  
  
  
  
  
  
  
  
  
  
  
  
  
  
  
  
  
  
  
  
  
  
  
  
  
   
   
  
  
  
  
  
  
  
  
  
  
  
  
  
  
  
  
  
  
  
  
  
  
  
  
  
   
   
   
   
   
   
   
   
   
   
   
   
   
   
   
   
  
  
  
  
  
  
 
  
  
  
  
  
  
 ![[団地を楽しむ教科書] 暮らしと。](https://s3-ap-northeast-1.amazonaws.com/rincglobal/common/thmb_kurashito_book.png) 
  
  
  
  
  
  
  
  
  
  
  
  
  
  
  
  
  
  
  
  
  
  
  
  
  
  
  
  
  
  
  
  
  
  
 