|
|
|
||||||||||||||||||||
裏山ビュー? |
||||||||||||||||||||||
|
||||||||||||||||||||||
|
||||||||||||||||||||||
|
||||||||||||||||||||||
|
マンションの裏で、もさもさと生い茂る緑。都会的な大通り沿いでありながら、のどかな景色が堪能できる部屋。 室内はゆったりとしたワンルーム。白を基調とした空間に、無垢材を組み合わせたフローリングがぬくもりを添えます。窓越しに見える景色とあいまって、ほっと落ち着ける空気感がただよっています。 キッチンはミニマルで可愛らしいデザイン。収納スペースがしっかりと確保されているため、キッチン周りをすっきりと保てそうです。 大通りの反対側にある部屋ではあるものの、車の走行音は多少届きます。とはいえ、窓を閉めてちょっとBGMを流せば気にならない程度です。 収納量を考えると、ゆったりとしたひとり暮らしにちょうど良さそう。あるいは飛行機と新幹線のどちらも使いやすい立地を活かして、東京滞在の拠点となるセカンドハウス的な使い方にも良さそうです。 すぐ近くにある「高輪ゲートウェイシティ」は、2026年春に全面オープンを控えています。ますます賑わいを見せそうなこのエリアに身を置いてみるのはいかがでしょうか。 |
![]() |
|
| ベランダからの景色 |
|
| 白い空間にフローリングのシンプルな内装 |
|
| ゆったりと使えるワンルーム |
|
| 大通り沿いにふたつ並ぶ、赤い建物の左側 |
|
|
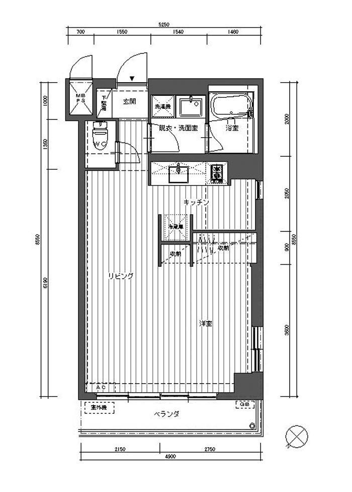
| 賃料 | 15万5,000円 | 専有面積 | 41.54㎡ |
| 敷金 | 1ヶ月 | 礼金 | 1ヶ月 |
| 償却 | なし | 管理費 | 10,000円 |
| 所在地 | 港区三田 | ||
| 交通 |
山手線・京浜東北線「田町」駅 徒歩9分 山手線・京浜東北線「高輪ゲートウェイ」駅 徒歩13分 都営浅草線「泉岳寺」駅 徒歩8分 都営浅草線・都営三田線「三田」駅 徒歩9分 |
||
| 建物構造 | 鉄筋コンクリート造 11階建て | 所在階 | 6階 |
| 築年 | 1980年 | 取引態様 | 媒介 |
| 設備 | エアコン/ウォシュレット/オートロック/エレベーター | ||
| 備考 | ペット不可/保証会社利用必須(初回保証料:月支払い総額の50%〜、更新料:年額10,000円)/鍵交換費用:22,000円~/喫煙不可/住居兼事務所可/要火災保険契約 | ||
| 情報修正日時 | 2025年10月30日 | 情報更新予定日 | 2025年11月13日 |
あなたにおすすめの物件


