|
|
|||||||||||||||||||||
三茶でゆるくワーキング |
||||||||||||||||||||||
|
||||||||||||||||||||||
|
||||||||||||||||||||||
|
||||||||||||||||||||||
|
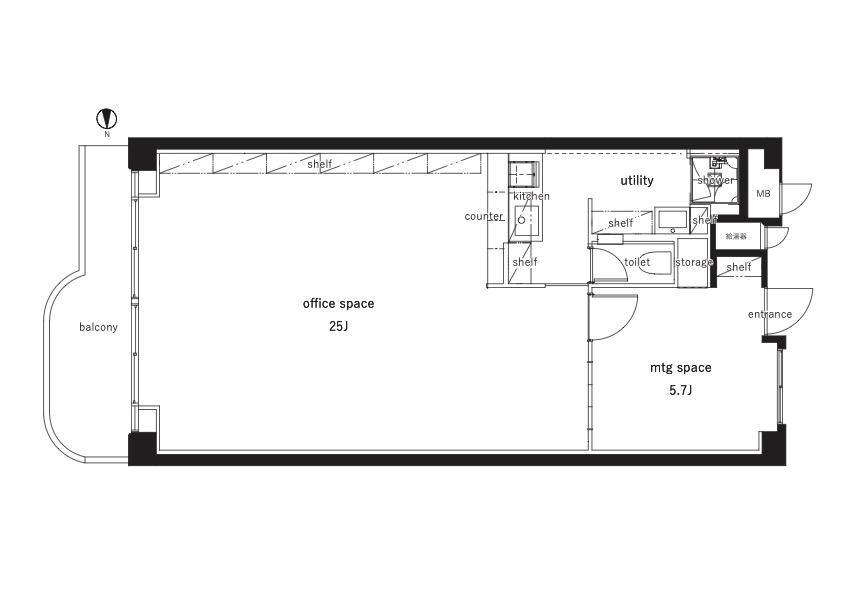
モルタル土間仕上げのミーティングスペースに、足場板が敷き詰められたワークスペース。 アパレルやグラフィックデザイン、フォトグラファーなど、クリエイティブな業種の方達が求めるような、やりすぎずにシンプルで気の利いた空間です。 決して決めつける訳ではありませんが、立地的にも空間的にも、毎日決まった時間に来て、決まった時間に帰るという規則正しい就業スタイルの会社のオフィスというよりは、時間帯が不規則でオフィスが家の延長線上のような、仕事とプライベートの境があいまいな会社向けのオフィスのように感じます。 そんな方達に寄り添うように、時間帯が遅くなってもさっぱり仕事ができるようシャワールームが設けられていたり、つまみを作ってダラダラと仲間と酒を交わして語り合えるように、きちんと調理ができるキッチンが設けられています。 三軒茶屋駅からは徒歩約12分と少し歩きますが、上は下北沢、下は学芸大学エリアあたりの方であれば、自転車で気軽に通勤できる範囲内。世田谷線も使えることを踏まえると、小田急線沿いの方も意外とアクセスしやすい立地かと思います。 オフィスのような、自分達の秘密基地のような。雰囲気よく使えて、アットホームな居心地の良さもあるアジトを構えてみるのはいかがでしょう。 ※5,490万円(税込)で販売も可能 ※写真は全て前回募集時のもの |
![]() |
|
| 梁や柱もなく、レイアウトしやすいワークスペース |
|
| 梁や柱もなく、レイアウトしやすいワークスペース |
|
| 出入り口を入るとすぐに、モルタル土間仕上げのミーティングスペース |
|
| ミーティングスペースとしてはもちろんのこと、撮影機材を置いたり、デスクを置いてアトリエスペースにしても良いかも |
|
|
| 賃料 | 28万4,900円(税込) | 専有面積 | 62.83㎡ |
| 敷金 | 2ヶ月 | 礼金 | 1ヶ月 |
| 償却 | なし | 共益費 | 13,079円(税込) |
| 所在地 | 世田谷区三軒茶屋 | ||
| 交通 |
東急田園都市線「三軒茶屋」駅 徒歩12分 世田谷線「若林」駅 徒歩8分 山手線「渋谷」駅 バス18分 「駒留」バス停 徒歩2分 |
||
| 建物構造 | 鉄骨鉄筋コンクリート造 8階建て | 所在階 | 1階 |
| 築年 | 1974年 | 取引態様 | 媒介 |
| 設備 | エアコン2基/シャワー/ウォシュレット/2口ガスコンロ | ||
| 備考 | ペット不可/保証会社利用必須(初回保証料:月支払い総額の70%、更新料:年額29,798円)/駐車場空き無し/駐輪場空き無し/要火災保険契約 | ||
| 情報修正日時 | 2025年10月22日 | 情報更新予定日 | 2025年12月22日 |
あなたにおすすめの物件


