![]() |
![]() |
![]() ![]() |
||||||||||||||||||||
やっぱり古ビルが好き |
||||||||||||||||||||||
|
||||||||||||||||||||||
|
||||||||||||||||||||||
|
||||||||||||||||||||||
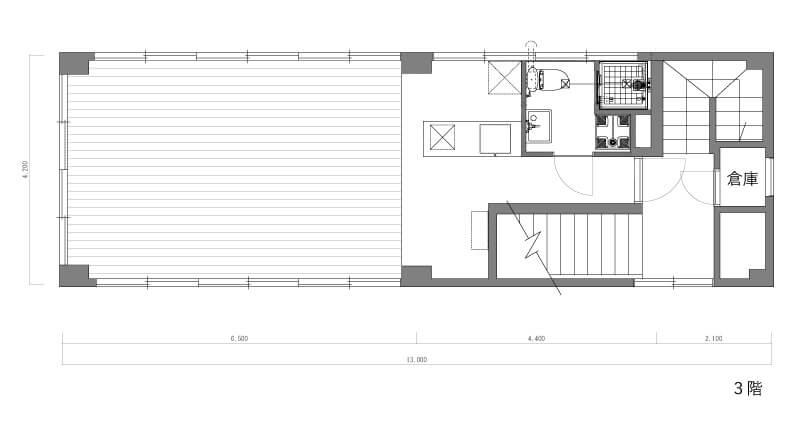
古ビル暮らし。一度は夢見たことがあるのではないでしょうか? 実際にはそんな物件なかなか無いし、色々とハードル高そう、と二の足を踏んでしまいますが、そんな悩みをこの物件が解決してくれると思います。 築50年以上になる建物ですが、一棟まるごとリノベーション済みで安心感があります。1階はいつも良い香りがするパン屋さんで、2階と4階はデザイン系の会社が入居中。今回ご紹介するのは3階のお部屋です。 約40㎡の広めなワンルーム。内装はシンプルに仕上がっていて、躯体現しの武骨な天井はリノベーションならでは。天井のアンカーから吊り下げれたパイプは高さや位置を調整できるのと、追加で増やすこともできるので、物をぶら下げるだけでなく、カーテンみたいな布をぶら下げれば緩やかに部屋を仕切ることもできます。 玄関からキッチンまでは土間仕上げになっていて、床の事を気にせずガシガシと使えそう。オープンなキッチンは楽しく料理ができそうで、置き型のIHコンロは、邪魔な時はしまっておくこともできます。 トイレ、洗面所などの水回りはコンパクトに一室にまとまっていて便利に使えそうですが、シャワーのみでバスタブがありません。なので、ゆっくりお湯に浸かりたいときは近くの銭湯がおすすめです。それから玄関を出て正面におまけの倉庫が付いていて、普段使わない物はここにしまっておけるのも便利です。 ビルが角地に建っていて3面が窓になっているので、明るく開放的で、風の抜ける気持ちの良い部屋です。ワンフロアに一世帯しかないので、お隣さんに気を使うこともありません。これもビル暮らしならでは。 スカイツリーから直線距離で約250mの場所にあります。周辺は下町風情が残るものの、新しいお店も増え、街が大きく様変わりしました。夜にライトアップされたスカイツリーを見つければ、そこが我が家の目印になるので、どこからでもちゃんと家に帰ることができます。 最寄りの押上駅まで徒歩2分という近さなので、雨でも傘無しで行けそうな距離感。スカイツリーの開発と合わせてきれいに整備され大きくて立派な駅になりました。渋谷や大手町、羽田にも一本で行けます。 事務所利用も可能で、4~5人くらいの会社にはちょうどいい大きさだと思います。大通りから少し入った落ち着いた場所なので、こもってデスクワークするのにもよさそうです。住居でも事務所でも、あるいは住居兼事務所でも、いろいろな使い方ができる物件だと思いますよ。 ※写真は前回募集時のものです。 |
![]() |
![]() |
約40平米の大きめワンルーム |
![]() |
水回りの床は土間仕上げ |
![]() |
キッチンの奥にトイレ、洗面スペースがまとまっています |
![]() |
角地に建つ良い雰囲気のビル |
|
賃料 | 12万5,000円 | 専有面積 | 42.79㎡ |
敷金 | 1ヶ月 | 礼金 | 1ヶ月 |
償却 | なし | 管理費 | 8,000円 |
所在地 | 墨田区業平 | ||
交通 |
半蔵門線「押上<スカイツリー前>」駅 徒歩2分 都営浅草線・東武伊勢崎線・京成本線「押上」駅 徒歩2分 |
||
建物構造 | 鉄筋コンクリート造 4階建て | 所在階 | 3階 |
築年 | 1971年 | 取引態様 | 該当せず |
設備 | IHコンロ/エアコン/シャワーのみ/エレベーターなし | ||
備考 | ペット不可/定期借家契約(期間:3年/再契約:相談)/事務所利用の場合、敷金3ヶ月、償却1ヶ月となります/賃料、管理費、償却に別途消費税がかかります/本物件は仲介手数料は発生しませんが、契約時に事務手数料1ヶ月分が必要です/保証会社利用必須(初回保証委託料:月支払い総額の50%~、更新保証料:年額10,000円)/住居兼事務所可/要火災保険契約 | ||
情報修正日時 | 2025年10月21日 | 情報更新予定日 | 2025年11月4日 |
