![]() |
![]() |
![]() |
||||||||||||||||||||
絵画のような窓 |
||||||||||||||||||||||
|
||||||||||||||||||||||
|
||||||||||||||||||||||
|
||||||||||||||||||||||
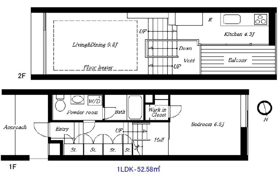
3.8m超えの高い天井に、壁一面の大きな窓。まるで絵画のような景色が広がるリビングは、なんとも気持ちがいい空間でした。 杉並区保護樹林に指定されている広大な庭を、存分にめでることができる集合住宅。玄関と水まわりのある階から上に向けて、寝室、リビング、キッチンの順に4層のフロアが互い違いに重なる、スキップフロアの間取りです。 なんといっても魅力的なのはリビング。眠気まなこをこすりながら階段を上がると、たっぷり差し込む光と、爽やかな景色が迎えてくれる朝。なんだか、すてきな一日が始まりそうじゃありませんか? リビングから一段上がった先には、キッチンとバルコニーが。洗濯物を干すのにちょうどいいバルコニーですが、気持ちいい場所なので、家事の合間にくつろげる居場所として使うのもよさそうです。 場所は荻窪駅の北東側にある静かな住宅街。少し駅から歩きますが、自転車があれば5分ほどですし、阿佐ヶ谷や西荻窪の方にも気軽に行けます。 それにしてもこれだけ居心地が良いと、用事がなければ家から出たくなくなってしまいそうです。 ※写真は全て原状回復前のもの ※現在居住中につき、下見は11月20日からの予定 ※お引き渡しは12月中旬以降の予定 ※下見前の先行申し込み可能(契約するか否かは下見後に決定) ※先行申込→退去後下見→審査→契約という流れ |
![]() |
![]() |
目の前に広がる、緑豊かな庭 |
![]() |
上下階に視線が抜ける空間。夕方になればバルコニーからも光が差し込みます |
![]() |
寝室。リビングと違ってこもり感のある空間 |
![]() |
外観 |
|
賃料 | 16万円 | 専有面積 | 52.58㎡ |
敷金 | 1ヶ月 | 礼金 | 1ヶ月 |
償却 | 1ヶ月 | 共益費 | 5,000円 |
所在地 | 杉並区天沼 | ||
交通 | 中央線・丸ノ内線「荻窪」駅 徒歩14分 | ||
建物構造 | 鉄筋コンクリート造 2階建て | 所在階 | 1~2階 |
築年 | 2004年 | 取引態様 | 媒介 |
設備 | エアコン/3口ガスコンロ/グリル/床暖房/浴室乾燥機/追いだき | ||
備考 | ペット不可/保証会社利用必須(初回保証料:月支払い総額の50%、更新料:年額10,000円~)/駐輪無料/要火災保険契約 | ||
情報修正日時 | 2025年10月21日 | 情報更新予定日 | 2025年11月4日 |
