![]() |
![]() |
![]() |
||||||||||||||||||||
小商いをはじめよう! |
||||||||||||||||||||||
|
||||||||||||||||||||||
|
||||||||||||||||||||||
|
||||||||||||||||||||||
いつかは自分の店を持ちたい!と願う人を応援したいという想いで企画された、小商いのスタートにぴったりな小振りな店舗ビル。 もとは洋服の型紙裁断の会社の一棟オフィスだったところを丸ごとリノベーションして、小振りな店舗区画からなる4フロアに改修。 2,900mmと高さのある天高に、エイジングされた錆止め塗装のデッキプレート現し、墨色のモルタル床にギャラリー然とした白壁、そしてtoolboxのアイアンスタンドシンクとアイアン塗装されたドアという内装。 特別な改装工事をしなくても、什器を置くだけで店が始められる。そんな手軽でシンプルな箱になっています。 遠くからでも目を引く、黒い鉢に生えたサボテンのような配色の外観で、1階にはスペインワインバー、2階には新しくブックストアが近々オープン予定、3階には北欧のビンテージ陶磁器ギャラリーと、ビル全体が素敵な雰囲気です。 今回募集する4階の区画には、これまで現代アートギャラリーや、ビカクシダ専門店が入居されていました。 馬喰町駅からが徒歩3分と一番近いですが、浅草橋駅からも神田川を渡ってすぐ。”イーストエリア”と呼ばれる周辺は、おしゃれなショップやギャラリー、飲食店などがひしめく人気エリアになっています。 すでに店をお探しの方も、いつかは!と思っていた方も。このビルの存在が誰かの背中を押すキッカケになったらうれしいです。 *事務所のみでのご利用は不可。店舗的な要素のある業種限定での募集となります *写真は全て前回募集時のもの |
![]() |
![]() |
写真で見ると細長いですが、実際は結構使いやすいスペースです |
![]() |
アイアン塗料で塗られた鉄扉 |
![]() |
こちらのエントランスから階段で4階へ |
![]() |
黒い鉢に植えられたサボテンみたいな外観 |
|
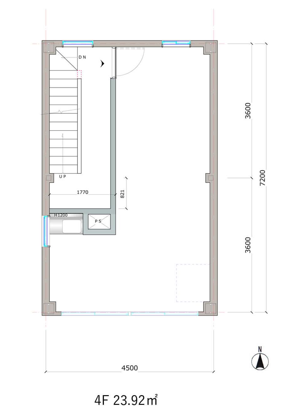
賃料 | 14万3,000円(税込) | 専有面積 | 23.92㎡ |
敷金 | 3ヶ月 | 礼金 | 1ヶ月 |
償却 | なし | 管理費 | なし |
所在地 | 中央区日本橋馬喰町 | ||
交通 |
総武快速線「馬喰町」駅 徒歩3分 総武線「浅草橋」駅 徒歩4分 都営浅草線「浅草橋」駅 徒歩7分 都営新宿線「馬喰横山」駅 徒歩8分 都営浅草線「東日本橋 」駅 徒歩9分 日比谷線「小伝馬町」駅 徒歩10分 |
||
建物構造 | 鉄骨造 4階建て | 所在階 | 4階 |
築年 | 1970年 | 取引態様 | 媒介 |
設備 | エレベーターなし/共用トイレ2カ所(2、3階)/エアコン/流し(給湯なし) | ||
備考 | ペット不可/定期借家契約(期間:2年/再契約:相談)/再契約料無料/保証会社利用必須(初回保証料:賃料の1ヶ月分/年間保証料:年額10,000円)/室内禁煙/本物件は仲介手数料は発生しませんが、契約時に事務手数料1ヶ月分が必要です/店舗利用限定(飲食を伴う業種、騒音・臭気を発する業種、美容院・サロン系業種不可)/ビルとの相性を考慮しての入居者様決定となり、お申し込みの先着順ではありません/事務所利用不可/要火災保険契約 | ||
情報修正日時 | 2025年10月20日 | 情報更新予定日 | 2025年11月4日 |
