|
|
|||||||||||||||||||||
造形作家の美学が宿る戸建 |
||||||||||||||||||||||
|
||||||||||||||||||||||
|
||||||||||||||||||||||
|
||||||||||||||||||||||
|
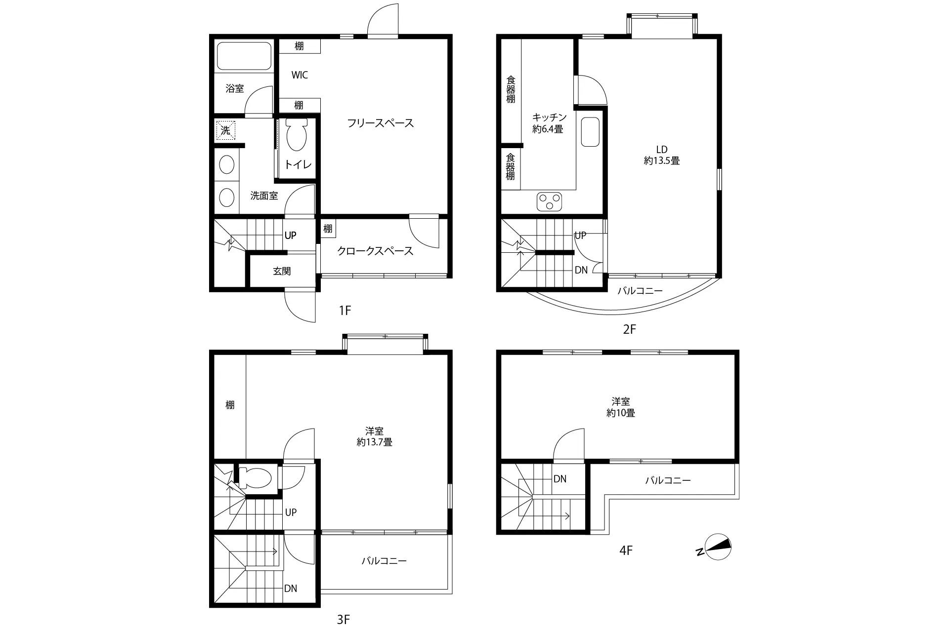
造形作家の水田典寿氏のディレクションにより改装された戸建。 アーチ状の梁や、日本ではあまり見かけないフローリングの施工法、この部屋のために造作したキャビネットや建具など、水田さんの世界観で溢れています。 外観を彩るのはテイカカズラ。毎年5〜6月になると小さな白い花を咲かせるそうで、他植物も育てつつ色とりどりの植栽を楽しんで頂けたらうれしいです。 間取りは、1階がフリースペースと水まわり、2階にLDK、3・4階が寝室やワークスペースという構成。上階に行くにつれ日当たりと眺望が良くなり、神宮前という都心の立地であることを忘れてしまうほど、開放的で気持ちのよい空間が広がります。 3階へと続く階段に差し掛かると大きな天窓から気持ちのいい光が降り注ぎ、まるで空と一体になったような感覚に包まれます。 階段そのものも見どころの一つ。木工・鉄工どちらのプロでもある水田さんが制作したもので、縁にモールディングを施し、真鍮の滑り止めを加えた精巧な仕上がり。階段と手すりの美しいディテールに思わず見惚れてしまいます。 用途は、住居または事務所として。事務所利用は不特定多数の出入りがなく、騒音や振動などのない業種に限定されます。 立地は、新国立競技場のすぐそば。話題のカフェやレストランが続々とオープンしている「都立明治公園」まで徒歩2分。スターバックスやBLUE SIX COFFEE、Parklet、Parklet Kiosk、Baby J’sなどの人気店が並びます。さらに、ナチュラルワインの名店「Virtus Wine」へも徒歩1分という好ロケーションです。 注意点としては、駐車場と駐輪スペースともに無しという点。敷地内への駐輪は可能ですが、自転車を道路にはみ出して駐輪するのはNGです。また、駐車場は空きが非常に少ないため、事前にご確認ください。 ■募集条件 【住居】賃料650,000円、敷金1ヶ月、礼金1ヶ月 【事務所】賃料748,000円(税込)、敷金4ヶ月、礼金1ヶ月 ※不特定多数の出入りがなく、騒音や振動などのない業種に限る |
![]() |
|
| 2階:造形作家の水田典寿氏の制作した内装が独特な世界観を作っています |
|
| 4階のバルコニーからの眺め。神宮前の立地とは思えない抜けが広がる |
|
| 4階:最上階は特に明るくて気持ちのいい空間。アールがかった天井が印象的な細長い洋室です |
|
| 3階:気持ちのいいウッドデッキに面した3階部分。電動オーニングにより日射しと視線をシャットアウトでき、真夏でも快適に過ごせます。 |
|
|
| 賃料 | 65万円 | 専有面積 | 125.73㎡ |
| 敷金 | 1ヶ月 | 礼金 | 1ヶ月 |
| 償却 | なし | 管理費 | なし |
| 所在地 | 渋谷区神宮前 | ||
| 交通 |
銀座線「外苑前」駅 徒歩9分 中央線「千駄ヶ谷」駅 徒歩11分 千代田線・副都心線「明治神宮前<原宿>」駅 徒歩12分 都営大江戸線「国立競技場」駅 徒歩9分 副都心線「北参道」駅 徒歩10分 |
||
| 建物構造 | 鉄筋コンクリート造 4階建て | 所在階 | |
| 築年 | 1990年 | 取引態様 | 媒介 |
| 設備 | 追焚機能/浴室乾燥機/トイレ2箇所/ウォシュレット/モニター付インターホン | ||
| 備考 | ペット不可/定期借家契約(期間:2年/再契約:相談)/募集条件:【住居】賃料650,000円、敷金1ヶ月、礼金1ヶ月、【事務所】賃料748,000円(税込)、敷金4ヶ月、礼金1ヶ月(不特定多数の出入りがなく、騒音や振動などのない業種に限る)/保証会社利用必須(初回保証委託料:【住居】月額賃料の0.5ヶ月分、【事務所】1ヶ月分/年間保証料:契約後1年毎に1万円)/室内禁煙/鍵交換代 27,500円(契約時)/住居兼事務所可/要火災保険契約/貸主インボイス未登録 | ||
| 情報修正日時 | 2025年10月21日 | 情報更新予定日 | 2026年2月26日 |
あなたにおすすめの物件


