![]() |
![]() |
![]() |
||||||||||||||||||||
午後の居場所を見つけた |
||||||||||||||||||||||
|
||||||||||||||||||||||
|
||||||||||||||||||||||
|
||||||||||||||||||||||
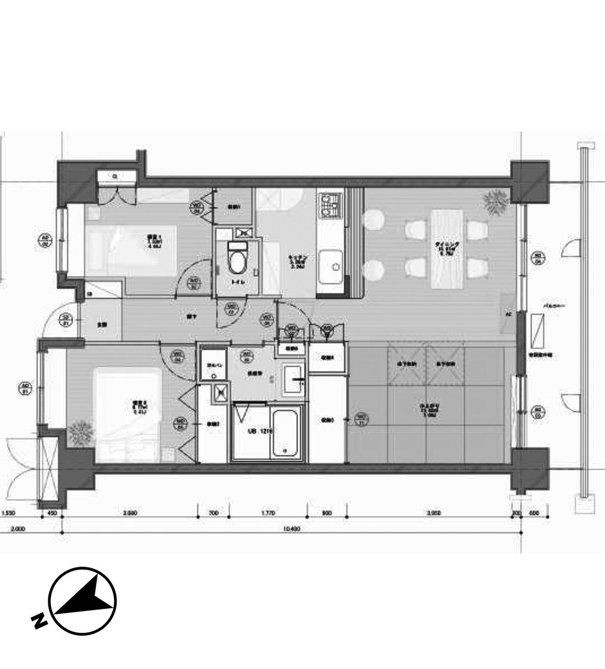
ぽかぽかと日が差し込むリビング。その半分が畳のスペース、この部屋のいちばんのやすらぎスポットです。 お昼ご飯を食べた後畳にごろんと寝転がって、ふと気づけば、春の午後の光に包まれてウトウト…。そんな瞬間がここでは、自然と日常の一部になりそうです。 キッチンの前にはカウンター。ここで軽く食事をとったり、料理を並べたり。カウンター越しに会話が生まれる、あたたかい距離感がいい。 内装は清潔感があって、全体的に新しめ。床や建具は木目調のフロアシート。1段上がった畳の縁や床框(ゆかかまち)は木製で、本物の素材のぬくもりを感じます。 リビングの他に北側に2部屋。どちらも収納があり、個室としてしっかり使えます。エアコンは未設置のため、必要に応じてご用意をお願いします。 そして、立川という街。駅からマンションまでは大通りを1本。 アクセスの良さと同時に、休日の楽しみもたくさん。IKEAで家具を選んだり、昭和記念公園でピクニックをしたり、歩いてるだけでワクワクする。この街そのものが、日常をちょっと楽しくしてくれます。 |
![]() |
![]() |
南側からしっかりと日の光が入ってきます |
![]() |
前の建物とは少し距離がありますが、時間帯によっては高い建物に日が遮られてしまいそうです。 |
![]() |
ベランダ |
![]() |
ゴロンと寝転びたくなる畳のスペース |
|
賃料 | 20万9,000円 | 専有面積 | 66.72㎡ |
敷金 | 1ヶ月 | 礼金 | 1ヶ月 |
償却 | なし | 管理費 | 13,000円 |
所在地 | 立川市高松町 | ||
交通 | 中央線「立川」駅 徒歩7分 | ||
建物構造 | 鉄骨鉄筋コンクリート造 12階建て | 所在階 | 5階 |
築年 | 1997年 | 取引態様 | 媒介 |
設備 | エアコン3基/追いだき/ウォシュレット/エレベーター/オートロック | ||
備考 | ペット不可/保証会社利用必須(初回保証料:月支払い総額の50%、更新料:年額10,000円)/鍵交換代:22,000円/要火災保険契約 | ||
情報修正日時 | 2025年10月17日 | 情報更新予定日 | 2025年11月1日 |
