![]() |
![]() |
![]() |
||||||||||||||||||
のびのびポカポカハウス |
||||||||||||||||||||
|
||||||||||||||||||||
|
||||||||||||||||||||
|
||||||||||||||||||||
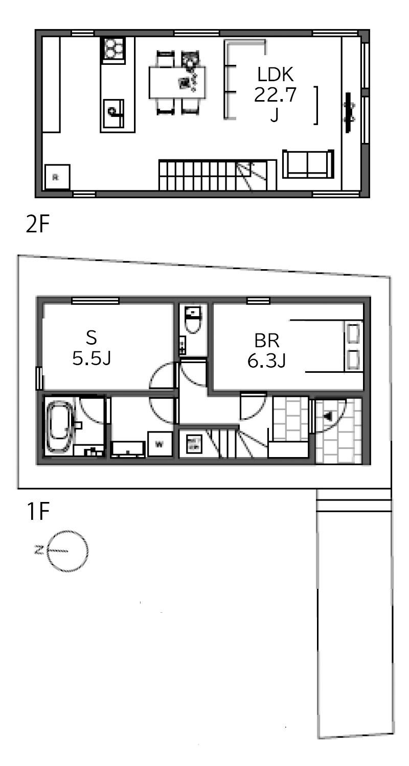
見上げるほど高い天井高に、たっぷりと光が入るリビング。見た目にも性能にもこだわって、住宅を供給する工務店さんが造り上げた新築の戸建て。 天井高は一番高いところで約4.8m。普通の住宅の2倍近くあり、広さも相まって開放感がすごいです。晴れた日には南向きのハイサイドライトからこれでもかと陽光が入り、室内からは青空が楽しめるはず。 旗竿地で周囲を戸建てに囲まれているのですが、そのデメリットを全く感じさせない家づくり。隣家の目線が気になる窓はすりガラスにして、視線が気にならない窓はクリアガラスにすることで、カーテンを開け放してのびのびと暮らせる設計です。 全ての窓に使用されているペアガラスの木製サッシは、部材にこだわる売主のオリジナル。見た目の良さだけではなく、断熱性が高いうえに、結露が発生しにくいといったように機能面でも優れています。 残念ながらバルコニーはありませんが、洗濯物対策としてガス乾燥機の乾太君(6kgモデル)が備え付け。6kgの洗濯物が1時間で乾燥できるうえ、乾燥中は洗濯機を回せるといったように、ドラム式洗濯機1台に比べて洗濯の効率が飛躍的に上がる優れもの。大切な衣類は室内干しですが、サーキュレーター等で風を当てて乾かすことで、しっかりと乾くのでご心配なく。 物件が立つのは車通りが少ない、とても静かな住宅街。最寄りの経堂駅は急行の停車駅で、たくさんの店があることから小田急線内でも人気の駅です。夫婦でも、お子さんのいる家族でも、一度この街に住んでしまうと離れ難くなるくらいに住み良い街です。 デザインにこだわりを持って物件を探している方にも、すっと心になじむ潔いシンプルさ。新築の戸建てで、立地も良いとなると、次に出会えるのはいつになるのか、いやもう出会えないかも!?運命の出会いを逃さず、ものにしていただけたら。 |
![]() |
![]() |
木製のサッシが良い雰囲気 |
![]() |
旗竿地で周囲を戸建てに囲まれているものの、窓が多く明るい室内。ハイサイドライトは南向きで、晴れていれば綺麗な空が眺められる |
![]() |
この天井高、どんな家具を置こうか妄想するだけで楽しみになってきます |
![]() |
外観。飛び石にバークチップが敷き詰められたアプローチも良い雰囲気 |
|
価格 | 8,550万円(税込) | 建物面積 | 72.61㎡ |
管理費 | なし | 修繕積立金 | なし |
所在地 | 世田谷区経堂 | ||
交通 |
小田急線「経堂」駅 徒歩10分 小田急線「千歳船橋」駅 徒歩14分 |
||
建物構造 | 木造 2階建て | 所在階 | |
築年 | 2025年 | 土地権利 | 所有権 |
敷地面積 | 73.52㎡ | 都市計画 | 市街化区域 |
用途地域 | 第一種低層住居専用地域 | 建蔽率/容積率 | 60%/150% |
その他費用 | 取引態様 | 媒介 | |
設備 | 3口ガスコンロ/グリル/食洗機/追いだき/浴室乾燥機/ガス乾燥機 | ||
備考 | ペット可/地目:宅地/現況:空室/引渡時期:相談/接道:西側道路(幅員3.3m)に2m接道/住居兼事務所可/新築/楽器演奏可 | ||
情報修正日時 | 2025年10月14日 | 情報更新予定日 | 2025年10月29日 |
