|
|
|||||||||||||||||||||
古ビルにひっそり大空間 |
||||||||||||||||||||||
|
||||||||||||||||||||||
|
||||||||||||||||||||||
|
||||||||||||||||||||||
|
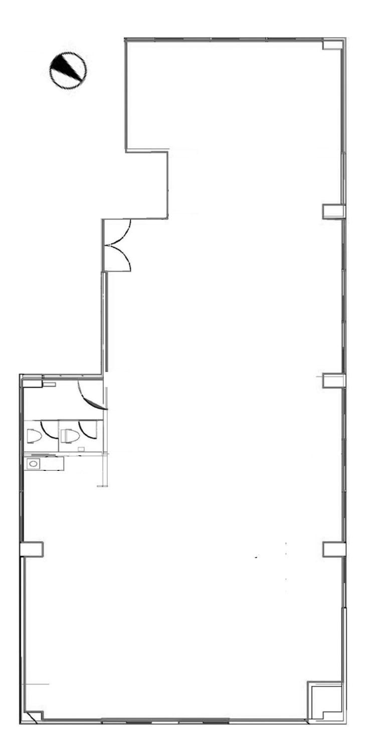
すてきな店が誕生する予感。 どんな店へ行った時に心が震えたか。自らに問いかけると、自然と浮かんでくるのは古いビルの一室にある店ばかりでした。 ほこり混じりの古びた階段を上り、扉を開けた時に目に飛び込んでくる、建物の古さを生かした店。好みもあるのでしょうが、僕はそんなひっそりと営まれるいくつかの店に、心を震わされてきました。 そしてそんな店たちはなぜか天井が高いのです。この物件も例に漏れず、天井高3.2m。今でこそ天井が高いのがデザイン的に良いと認識されていますが、きっとこの建物が設計された当時、そんなことを考える人はいなかったはず。計算されていない偶然生まれた空間だからこそ、心惹かれるのかもしれません。 200㎡近くにもなる巨大な空間は、飲食業以外であれば、ギャラリーや物販店舗、スタジオなど幅広い業種が相談可能。 今は天井がグレーに塗装されていて、床もグレーのタイルカーペットのため、少し重い印象ですが、このあたりの色味を変えるだけでがらりと印象は変わってくると思います。 うれしいことにエアコンが4基設置済みなので、年季の入ったトイレを改装したり、壁や天井の塗り替えをしたりと、エアコン設置費用が浮いた分を他の工事に回せそうです。 建物は神保町駅のすぐ近く。久しぶりにこのあたりを歩きましたが、古くて渋い建物を生かしたすてきな店がポツポツとできていて、非常にポテンシャルを感じました。 一等地に飽き飽きして、もう少しひっそりとしたエリアに移りたいと考えている方、路面より空中階にこそ魅力を感じてしまう方には、声を大にしておすすめしたいです。 |
![]() |
|
| 天井高は約3.2mとかなり高め。壁と天井の塗装、床の張り替えでかなり良くなりそうな空間 |
|
| 直射日光が入るのは、通りに面した南西側の窓のみ。他の窓は隣の建物が近く、ふわりと光が入る程度 |
|
| 渋い外観。あまりメンテナンスされていない、リアルな古さが良いです |
|
| 中央の自動ドアが階段への出入り口 |
|
|
| 賃料 | 76万8,240円(税込) | 専有面積 | 192.42㎡ |
| 保証金 | 8ヶ月 | 礼金 | なし |
| 償却 | 2ヶ月 | 共益費 | 64,020円(税込) |
| 所在地 | 千代田区神田神保町 | ||
| 交通 |
半蔵門線・都営新宿線・都営三田線「神保町」駅 徒歩3分 中央線「水道橋」駅 徒歩9分 |
||
| 建物構造 | 鉄筋コンクリート造 4階建て | 所在階 | 2階 |
| 築年 | 1962年 | 取引態様 | 媒介 |
| 設備 | エアコン4基 | ||
| 備考 | ペット不可/保証会社利用必須(初回保証委託料:月支払い総額の100%、年間保証料:月支払い総額の10%〜)/要火災保険契約 | ||
| 情報修正日時 | 2025年10月11日 | 情報更新予定日 | 2025年12月15日 |
あなたにおすすめの物件


