|
|
|||||||||||||||||||||
素足のまま、ひと仕事 |
||||||||||||||||||||||
|
||||||||||||||||||||||
|
||||||||||||||||||||||
|
||||||||||||||||||||||
|
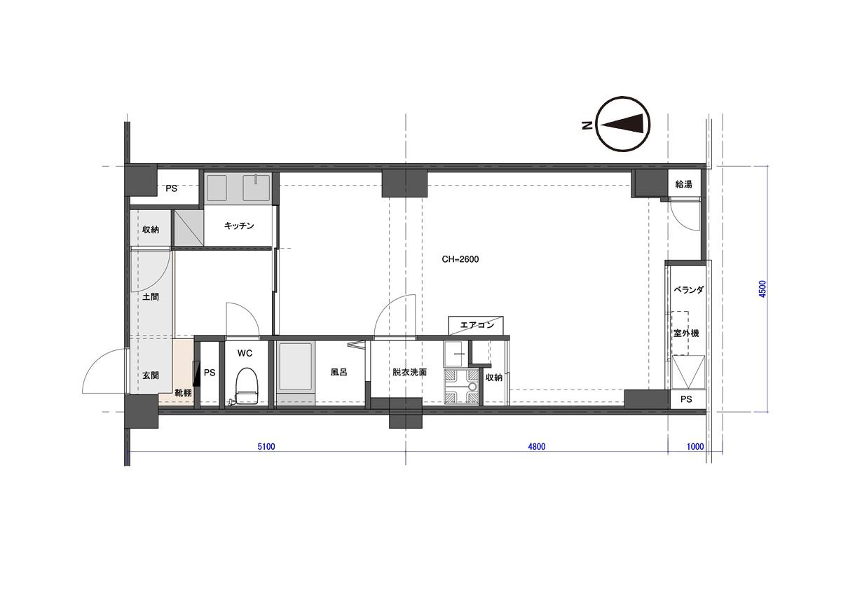
スタイリッシュでありながら、自然素材の温もりを感じられるリノベーション。なんだか毎日通うのが楽しみになりそうな、雰囲気のいいオフィスです。 なんといっても、ヘリンボーン張りの無垢フローリングが魅力の空間。あらゆる家具と相性が良さそうな色味、つい靴下を脱いで裸足で歩きたくなる肌触り。無垢材はやっぱり良いなって、つくづく思います。 窓の先に建物がないので、自然光は十分に入ります。また大通りに面した建物ながら、道路側から少し奥まったところにある区画のため、車の走行音が気になりにくいです。 そして玄関まわりの間取りが、地味に良い働きをしてくれています。キッチン横に引き戸があるため、トイレ側と居室側で空間を隔てることができます。また生活感が出やすいキッチンが、目立たない位置にあるのも好印象です。 どの駅からも少し歩きますが、最寄りの国立競技場駅や、足を延ばせば原宿駅まで、合わせて5つの駅が使えます。近くにランチや息抜きに使える店はたくさんありますし、つい長居したくなる魅力的なサウナも歩いてすぐ。 空間と環境、どちらも申し分なし。気になった方は、ぜひお早めに。 ※写真の家具は付帯しません |
![]() |
|
| スタイリッシュとナチュラルが良い塩梅にマッチした空間 |
|
| 視線が抜けるため、引き戸を閉めても圧迫感はありません |
|
| 色味のいい無垢床 |
|
| 外観。通りから奥まったところにエントランスがあります |
|
|
| 賃料 | 25万3,000円(税込) | 専有面積 | 46.40㎡ |
| 敷金 | 2ヶ月 | 礼金 | 1ヶ月 |
| 償却 | なし | 管理費 | 27,500円(税込) |
| 所在地 | 渋谷区神宮前 | ||
| 交通 |
銀座線「外苑前」駅 徒歩11分 都営大江戸線「国立競技場」駅 徒歩10分 中央線「千駄ヶ谷」駅 徒歩13分 |
||
| 建物構造 | 鉄骨鉄筋コンクリート造 7階建て | 所在階 | 5階 |
| 築年 | 1977年 | 取引態様 | 媒介 |
| 設備 | エアコン/ 2口IHコンロ/ウォシュレット/エレベーター | ||
| 備考 | ペット不可/定期借家契約(期間:3年/再契約:相談)/保証会社利用必須(初回保証料:月支払い総額の100%、更新料:年額10,000円~)/住居利用の場合(賃料、管理費は非課税、敷金:1ヶ月)/住居兼事務所可/要火災保険契約 | ||
| 情報修正日時 | 2025年10月6日 | 情報更新予定日 | 2025年12月15日 |
あなたにおすすめの物件


